Last updated: Mar 30, 2026













Land Parcel
Towers
Floors
Config
Carpet Area
RERA NO.
Possession Status
Target Possession
RERA Possession
Litigation
GVP Ghatkopar East Project Overview
GVP 72 ParkSyde will be constructed on uner 0.65 acre of land parcel, 1 tower with 1B+G+20 floors having 1 BHK, 2 BHK, 3 BHK premium residences.
GVP 72 ParkSyde location
Project is Near Ambedkar Chowk, Ghatkopar East, Mumbai -
Ghatkopar Railway Station -700m
Eastern Express Highway -1.8km
DMart - 3.3km
GVP 72 ParkSyde Ghatkopar East Project Amenities
First is Internal amenities -
Granite Kitchen, Vitrified tiles, Stainless steel sink, DG Back up, CCTV & many more
GVP Realty Ghatkopar East Amenities
Project has 15+ amenities with likes of -
Gymnasium
Jogging Track
Kid's Play area
Meditation deck
Yoga deck & Many More
GVP Realty 72 ParkSyde Ghatkopar East Parking -
Project has one type of car parking facility -
1) Basement
GVP 72 ParkSyde Possession -
Rera Possession - Ready To Move In
Target Possession - Ready To Move In
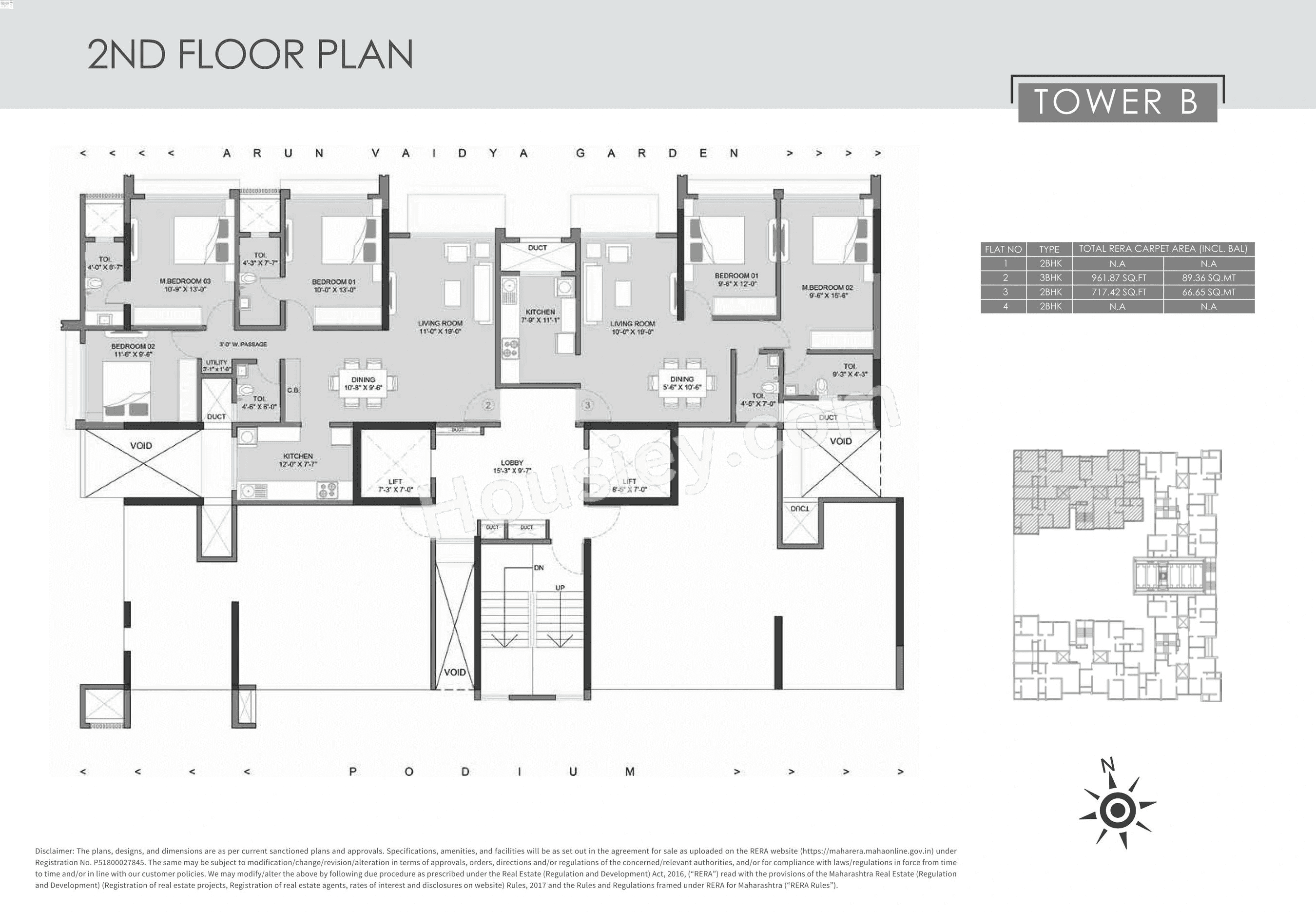
Carpet Area & Floor Plan
72 ParkSyde project has 1BHK, 2BHK, 3BHK premium residences with -
1BHK - 404 sqft
2BHK - (601 to 830) sqft
3BHK - (962 to 1030) sqft
GVP 72 ParkSyde floor plan
Tower floor plan will have 4 flats 2 lifts & 1 staircases on each floor
72 ParkSyde Ghatkopar East project sample flat is ready to view at the site.
GVP 72 ParkSyde Mumbai Prices & its details can be found in the price section & GVP 72 ParkSyde Ghatkopar East brochure can be downloaded from the link mentioned below. Project has been praised by the home buyers & GVP Realty Ghatkopar East review is 4 out of 5 from over all the clients who have visited the site.
Near Ambedkar Chowk, Ghatkopar East, Mumbai

Pros
Cons
Video Door Phone
Vitrified Tiles
Granite Kitchen Platform
Stainless Steel Sink
Wooden Flooring
Kids Play Area
Senior Citizen Area
Yoga Zone
Meditation Zone
Indoor games
Landscaped Garden
Fitness Studio
Multi purpose hall











| Carpet Area | All Inc. Price (Inc. of Taxes & Charges) | Min Downpayment (Inc. Taxes) | Parking | Unit Plan |
|---|---|---|---|---|
404 sqftLimited | 1.27 Cr All In | 19.00 Lacs | 1 | ![]() |

Is there any litigation against this proposed project:
NoGVP 72 ParkSyde Proforma Sale Agreement
GVP 72 ParkSyde Proforma Allotment Letter
GVP 72 ParkSyde Building Plan/Layout Plan Approval
Note: You can download more detailed documents by following this link
GVP Realty

1 CityLocations
Mumbai suburban















828 - 1533 sqft
Arihant Realtors
Developer




Housiey Legal: Free Real Estate Legal Consultation
Get Expert Advice on RERA, Builder Refunds, Area Mismatch, Stuck Projects & More - at No Cost!