Last updated: Mar 6, 2026












Land Parcel
Towers
Floors
Config
Carpet Area
RERA NO.
Possession Status
Target Possession
RERA Possession
Litigation
DD Ghatkopar East Project Overview
DD Om Neeldhara will be constructed on under 0.37 acre of land parcel, 1 tower with 2B+G+14 floors having 2 BHK, 3 BHK premium residences.
DD Om Neeldhara location
Project is Located Near ghatkopar Rly Stn, Ghatkopar East, Mumbai -
LBS Road - 1.3km
Eastern Express Highway - 2km
Dmart - 2.7km
DD Om Neeldhara Ghatkopar East Project Amenities
First is Internal amenities -
Granite Kitchen, Vitrified tiles, Stainless steel sink, & many more
DD Group Ghatkopar East Amenities
Project has amenities with likes of -
Gymnasium
Yoga Deck
Walking Track
Meditation Area & Many More
DD Om Neeldhara Ghatkopar East Parking -
Project has one type of car parking facility -
1) Basement
DD Om Neeldhara Possession -
Rera Possession - December 2028
Target Possession - December 2026
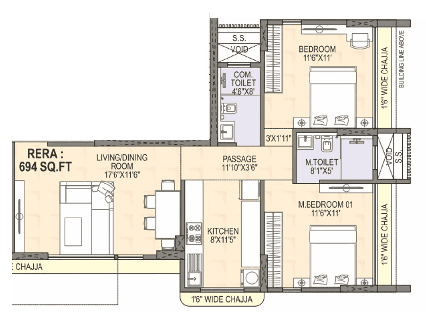
Carpet Area & Floor Plan
DD Om Neeldhara project has 2BHK, 3BHK premium residences with -
2BHK - (640 to 694) sqft
3BHK - (875 to 1088) sqft
DD Om Neeldhara floor plan
Tower floor plan will have 4 flats 4 lifts & 2 staircases on each floor
DD Om Neeldhara Mumbai Prices & its details can be found in the price section & DD Group DD Om Neeldhara Ghatkopar East brochure can be downloaded from the link mentioned below. Project has been praised by the home buyers & DD Group Ghatkopar East review is 4 out of 5 from over all the clients who have visited the site.
Near Ghatkopar Rly Stn, Ghatkopar East, Mumbai

Pros
Cons
Video Door Phone
Vitrified Tiles
Granite Kitchen Platform
Stainless Steel Sink
Garden
Outdoor Chess
Box Cricket
Meditation Zone
Seating Area
Yoga Deck
Gymnasium
Terrace Garden
Walking Track





| Carpet Area | All Inc. Price (Inc. of Taxes & Charges) | Min Downpayment (Inc. Taxes) | Parking | Unit Plan |
|---|---|---|---|---|
640 sqft | 2.59 Cr All In | 39.00 Lacs | 1 | ![]() |
694 sqft | 2.79 Cr All In | 42.00 Lacs | 1 | ![]() |

Is there any litigation against this proposed project:
NoDD Om Neeldhara Proforma Sale Agreement
DD Om Neeldhara Proforma Allotment Letter
DD Om Neeldhara Building Plan/Layout Plan Approval
Note: You can download more detailed documents by following this link
DD Group

2 CitiesLocations
Mumbai City, Mumbai suburban















828 - 1533 sqft
Arihant Realtors
Developer




Housiey Legal: Free Real Estate Legal Consultation
Get Expert Advice on RERA, Builder Refunds, Area Mismatch, Stuck Projects & More - at No Cost!