







Land Parcel
Towers
Floors
Config
Carpet Area
RERA NO.
Possession Status
Target Possession
RERA Possession
Litigation
Rajveer Wakad Project Overview
Rajveer Garima will be constructed on 3.5 acres of land parcel, 3 towers with B+G+13/18/22 floors having 2BHK, 3BHK premium residences .
Rajveer Garima location
Project is located Near Shankar Kalat Nagar, Wakad, Pune with-
Mumbai - Pune Highway - 1.5km
Phoenix Mall of the Millennium - 2.2km
Balaji Law College - 4.8km
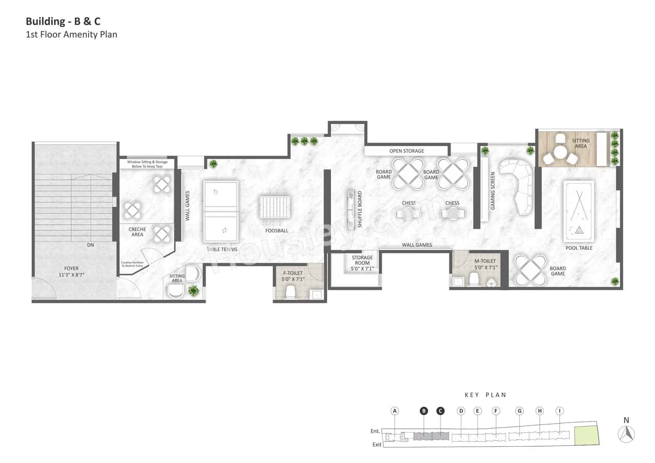
Rajveer Garima Wakad Project Amenities
First is Internal amenities -
Vetrified floor, Anti skid tiles, Metal false ceiling, Solar water, Main door biometric lock, internal door mostise lock, D.G backup, Earthquake resistant, Gas pipeline, RCC Structure, MS Grills, SS Sink, CPVC & UPVC Pipes, CP Fittings, FireFighting Systeam etc & Many more
Rajveer Realty Wakad External Amenities
Project has 30+ luxurious amenities with likes of -
Swimming Pool
Multipurpose Court
Gymnasium
Childrens Play Area,
Yoga Meditation Area & Many More
Rajveer Realty Garima Wakad Parking -
Project has two types of car parking facilities -
1) Basement
2) Ground
Rajveer Garima Possession -
Rera Possession - December 2029
Target Possession - December 2028
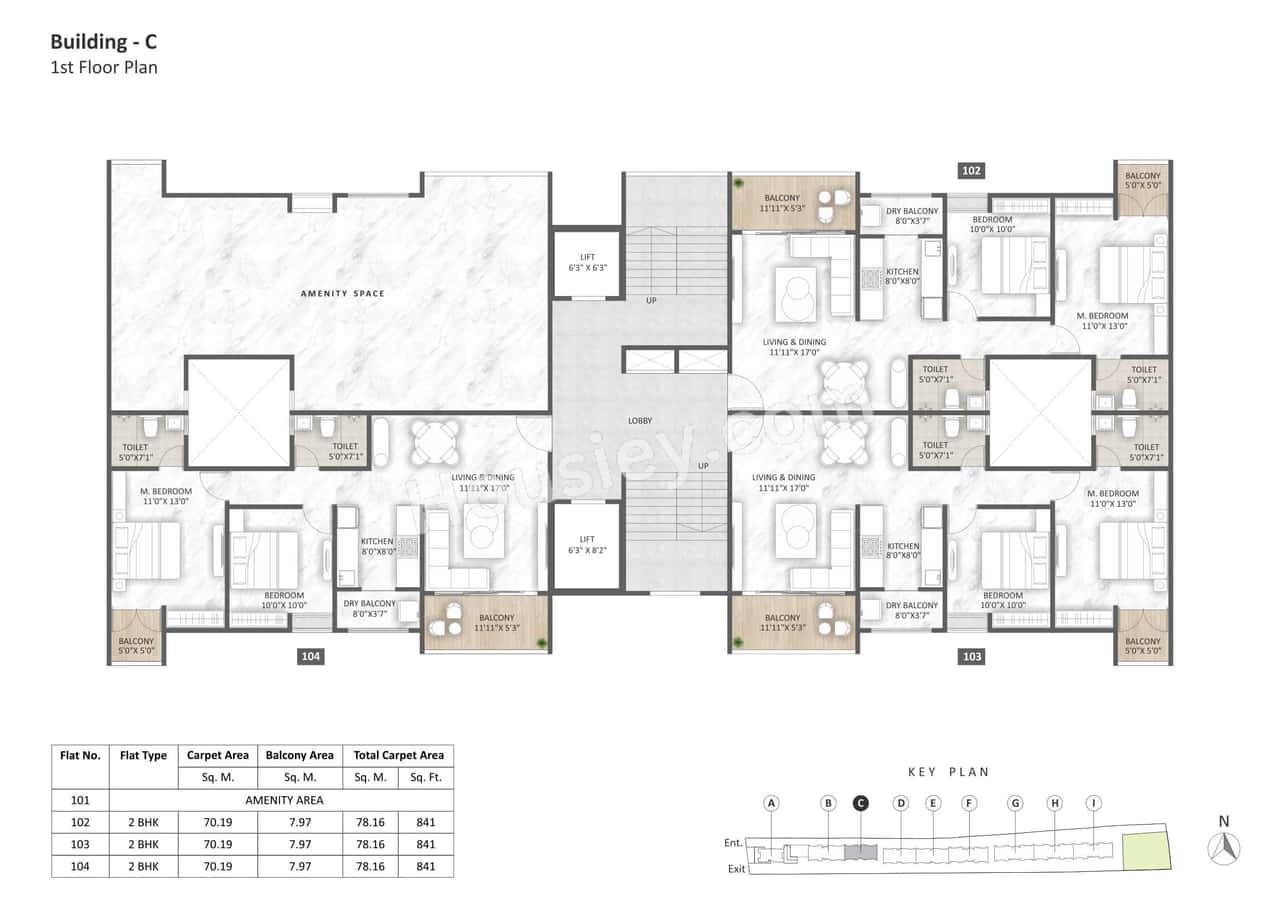
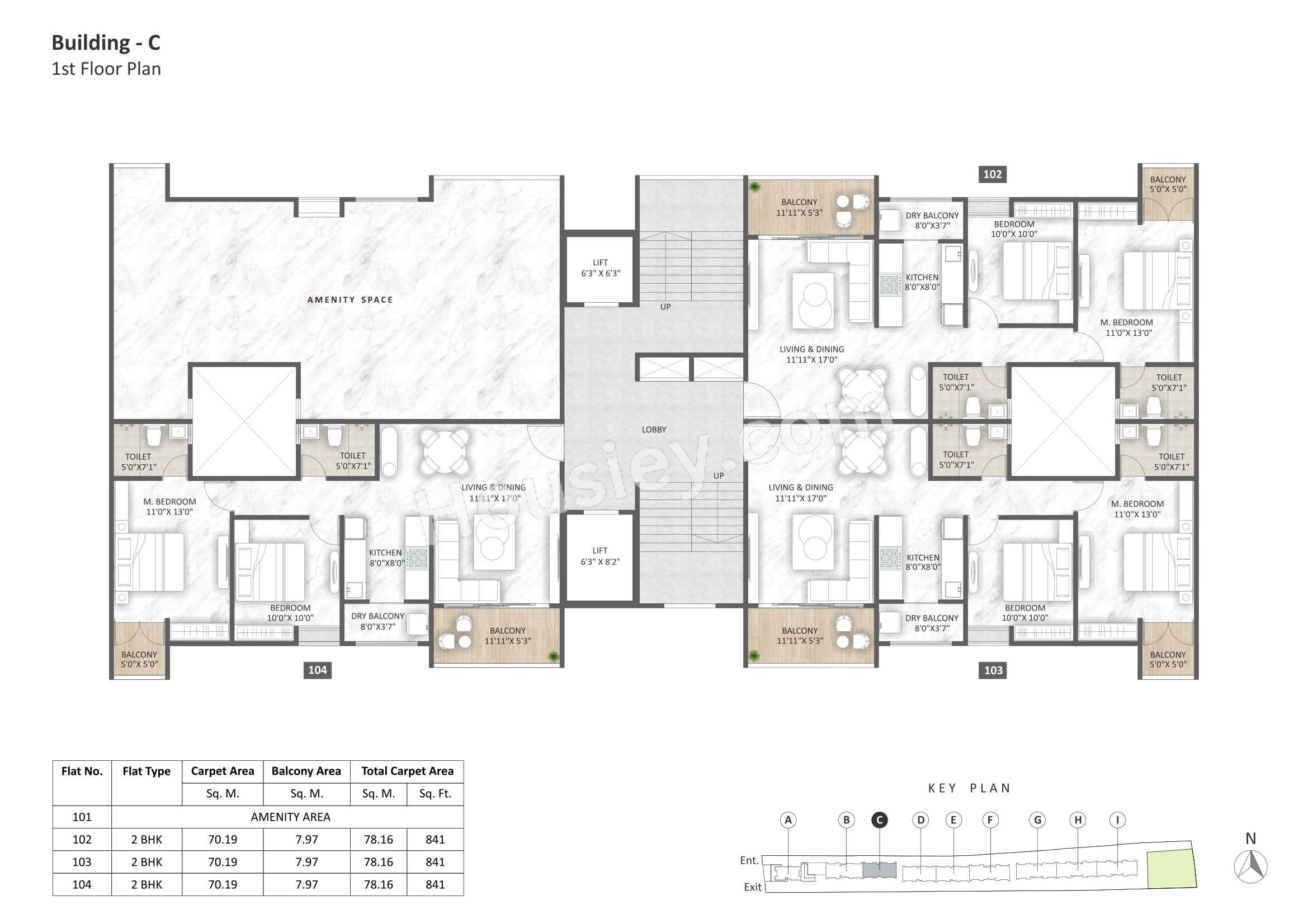
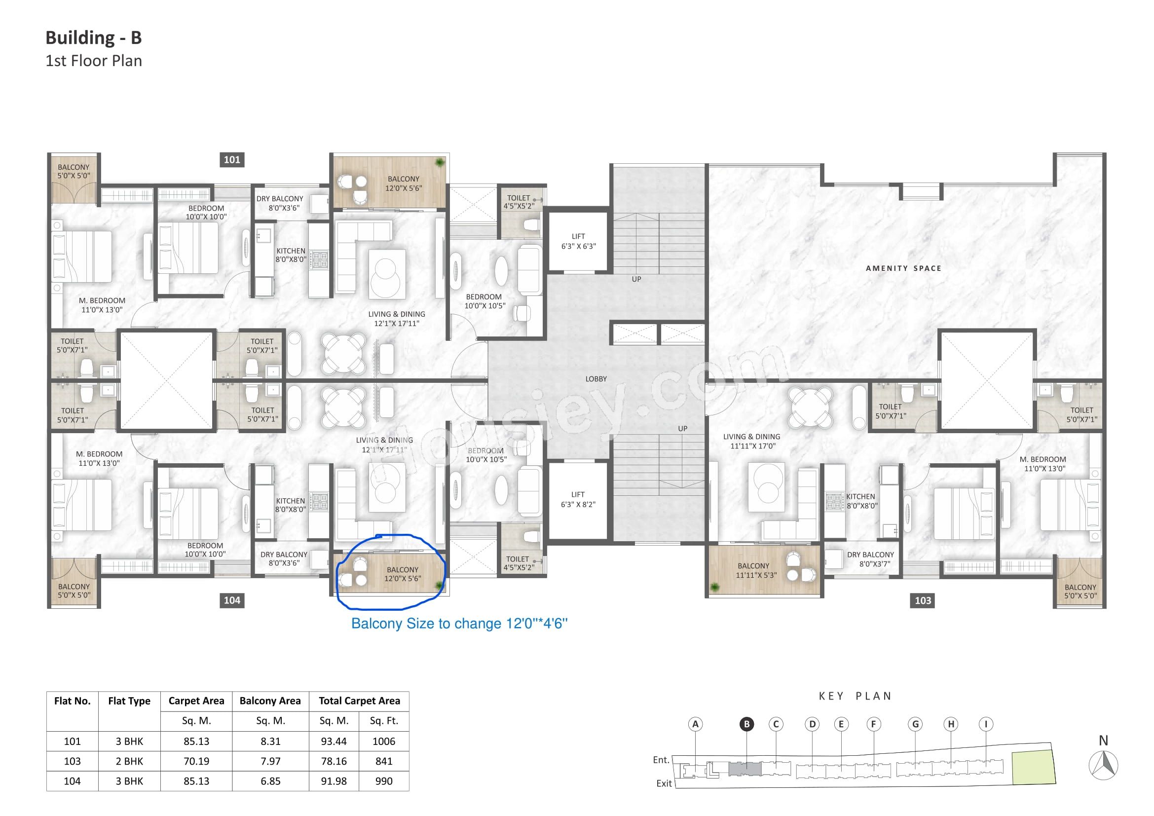
Carpet Area & Floor Plan
Rajveer Garima Wakad project has 2BHK, 3BHK premium residences with -
2BHK - (765 - 952) sqft
3BHK - 1006 sqft
Rajveer Garima Floor plan
Tower floor plan will have 4 flats 2 lifts & 2 staircases on each floor
Maintenance -
Rajveer Garima Pune Project maintenance varies with the configuration and the carpet area which are as follows-
2BHK - Rs (3000 - 3800) per month
3BHK - Rs 4000 per month
Garima Wakad project sample flat is ready to view at the site.
Garima Wakad Prices & its details can be found in the price section & Rajveer Garima Wakad brochure can be downloaded from the link mentioned below. Project has been praised by the home buyers & Rajveer Realty Wakad review is 4 out of 5 from over all the clients who have visited the site.
Near Shankar Kalat Nagar, Wakad, Pune


Pros
Cons
Vitrified Tiles
Granite Kitchen Platform
Stainless Steel Sink
D.G Backup
Solar Water Heater
Fire Fighting
Gas pipe Line
Swimming Pool
Kids Play Area
Multi Purpose Court
Senior Citizen Area
Kids Pool
Tennis Court
Co Working Spaces
Outdoor Chess
Library
Amphitheater
Meditation Zone
Temple Complex
Rock Climbing
Toddlers Play Area
Seating Area
+16 More








| Carpet Area | All Inc. Price (Inc. of Taxes & Charges) | Min Downpayment (Inc. Taxes) | Parking | Unit Plan |
|---|---|---|---|---|
841 sqft | 1.18 Cr All In | 17.00 Lacs | 1 | ![]() |
765 sqft | 1.07 Cr All In | 16.00 Lacs | 1 | ![]() |
952 sqft | 1.36 Cr All In | 20.00 Lacs | 1 | ![]() |

Is there any litigation against this proposed project:
NoCommencement Certificate Rajveer Garima
Legal Title Report Rajveer Garima
Layout Plan Rajveer Garima
Note: You can download more detailed documents by following this link
Rajveer Realty

1 CityLocations
Pune

445 - 734 sqft
Paranjape Schemes
Developer
681 - 737 sqft
Sonigara Realcon
Developer


752 - 1244 sqft
Kohinoor Group
Developer


722 - 999 sqft
Avneesh Realty Group
Developer
1081 - 1587 sqft
Shree Sonigara Realcon
Developer

725 - 1286 sqft
Vilas Javdekar Developers
Developer
717 - 1457 sqft
Siddhivinayak Group
Developer


725 - 1291 sqft
Vilas Javdekar Developers
Developer




785 - 1178 sqft
Sukhwani Constructions
Developer
Housiey Legal: Free Real Estate Legal Consultation
Get Expert Advice on RERA, Builder Refunds, Area Mismatch, Stuck Projects & More - at No Cost!