Last updated: Mar 22, 2026







Land Parcel
Towers
Floors
Config
Carpet Area
RERA NO.
Possession Status
Target Possession
RERA Possession
Litigation
Omsai Chembur East Project Overview
Omsai Deepjyoti Project will be constructed on 0.34 acres of land parcel, 1 tower with G+15 floors having 2 BHK, 3 BHK premium residences.
Omsai Deepjyoti location
Project is located Near Ramesh Atmaram Ground, Chembur East, Mumbai with -
Chembur East Railway Station - 950m
Zen Hospital - 1.2km
Eastern Express Highway - 1.5km
Omsai Deepjyoti Chembur East Project Amenities
First is Internal amenities -
Vitrified tiles, Granite Kitchen, SS link & many more
Omsai Group Chembur East External Amenities
Project has 30+ luxurious amenities with likes of -
Gymnasium
Yoga Deck
Childrens Play Area
Senior Citizen Sitout
Omsai Group Sky Supreme Chembur East Parking -
Project has one type of car parking facility -
1)Ground
Omsai Deepjyoti Possession -
Rera Possession - July 2026
Target Possession - December 2025
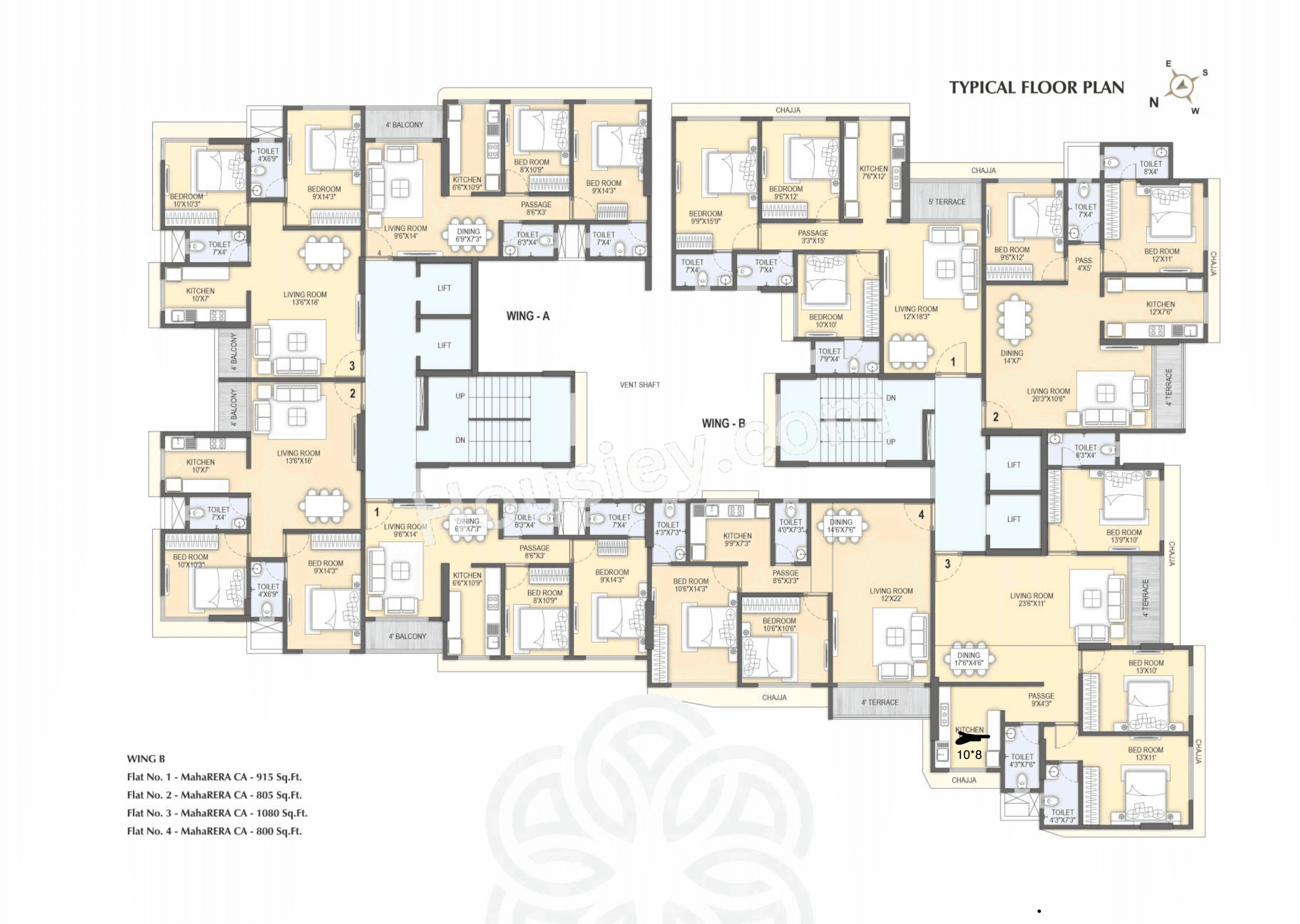
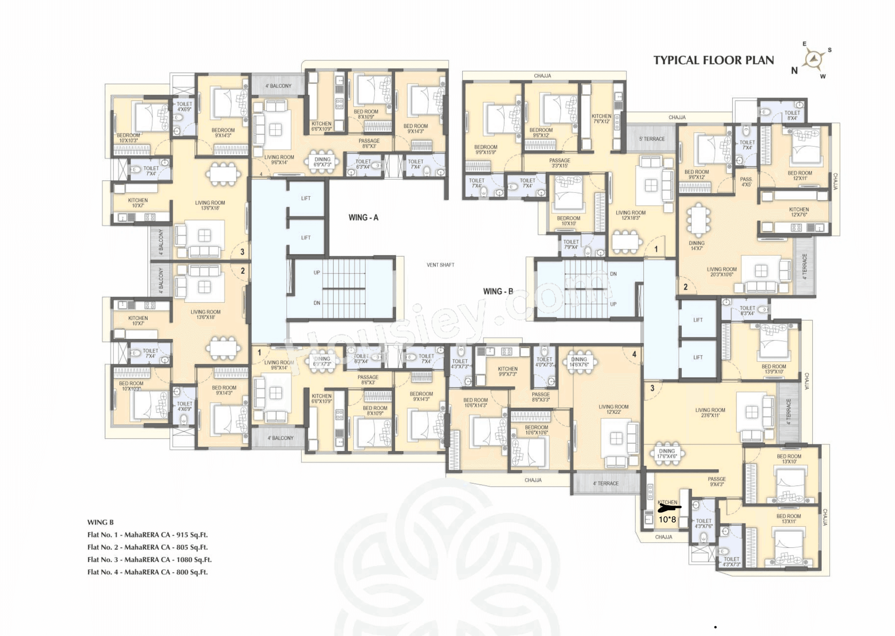
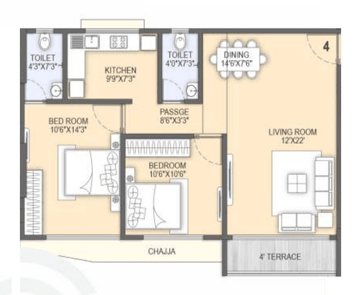
Carpet Area & Floor Plan
Omsai Deepjyoti project has 2BHK, 3BHK premium residences with -
2BHK - (575 - 805) sqft
3BHK - (915 -1080) sqft
Omsai Deepjyoti floor plan
Tower floor plan will have 4 flats 2 lifts & 1 staircase on each floor
Maintenance -
Omsai Deepjyoti Mumbai Project maintenance varies with the configuration and the carpet area which are as follows-
2BHK - Rs(4600 - 6400) per month
3BHK - Rs(7300 - 8600) per month
Omsai Deepjyoti Prices & its details can be found in the price section & Omsai Deepjyoti Chembur East brochure can be downloaded from the link mentioned below. Project has been praised by the home buyers & Omsai Group Chembur East review is 4 out of 5 from over all the clients who have visited the site.
Near Ramesh Atmaram Ground, Chembur East, Mumbai

Pros
Cons
Vitrified Tiles
Granite Kitchen Platform
Stainless Steel Sink
Kids Play Area
Senior Citizen Area
Yoga Deck
Gymnasium



| Carpet Area | All Inc. Price (Inc. of Taxes & Charges) | Min Downpayment (Inc. Taxes) | Parking | Unit Plan |
|---|---|---|---|---|
575 sqftLimited | 1.70 Cr All In | 25.00 Lacs | 1 | ![]() |
750 sqftSold Out | ![]() | - | - | ![]() |
805 sqftSold Out | ![]() | - | - | ![]() |

Is there any litigation against this proposed project:
NoOmsai Deepjyoti Proforma Allotment Letter
Omsai Deepjyoti Layout Plan
Omsai Deepjyoti Legal Title Report
Note: You can download more detailed documents by following this link
Omsai Group

2 CitiesLocations
Mumbai City, Mumbai suburban




















Housiey Legal: Free Real Estate Legal Consultation
Get Expert Advice on RERA, Builder Refunds, Area Mismatch, Stuck Projects & More - at No Cost!