









Land Parcel
Towers
Floors
Config
Carpet Area
RERA NO.
Possession Status
Target Possession
RERA Possession
Litigation
Myhna Varthur Project Overview
Myhna Orchid Varthur will be constructed on 5.3 Acres of land parcel, 2 Towers with B+G+14 floors having 2BHK, 3BHK premium residences.
Myhna Orchid location
Project is located On Gunjur Road, Gunjur Village, Varthur, Bangalore with -
Varthur - Sarjapur Road - 600m
Apple City Mall - 1.8km
Belandur Road Station - 3.9km
Myhna Orchid Varthur Project Amenities
First is Internal amenities -
Vitrified tiles, Granite Kitchen Platform, SS Sink, Branded fitting & many more
Myhna Properties Varthur External Amenities
Project has 35+ luxurious amenities with likes of -
Clubhouse
Multipurpose Play Field
Viewing Gallery
Outdoor Exercise
Seating Area & Many More
Myhna Properties Orchid Varthur Parking -
Project has One type of car parking facility
Basement
Myhna Orchid Possession -
Rera Possession - December 2027
Target Possession - June 2027
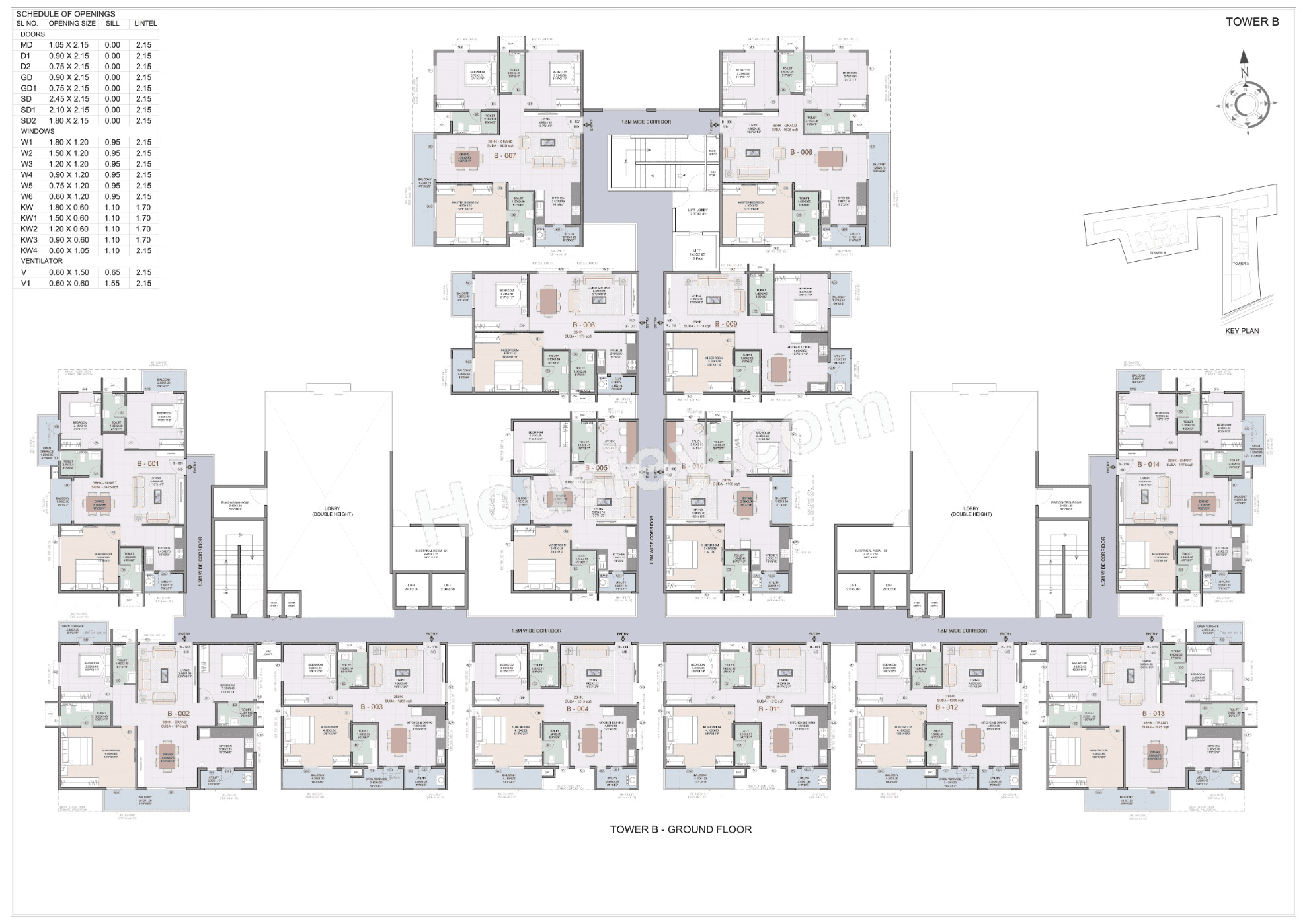
Built-up Area & Floor Plan
Myhna Orchid project has 2BHK, 3BHK premium residences with -
2BHK - (1170 to 1290) sqft
2.5BHK - 1265 sqft
3BHK - (1470 to 1720) sqft
Myhna Orchid Floor plan -
Tower Floor Plan will have 6 flats 2 Lifts & 1 Staircases on each Floor
Maintenance -
Myhna Orchid Bangalore Project maintenance varies with the configuration and the carpet area which are as follows-
2BHK - Rs (4700 - 5200) per month
2.5BHK - Rs 5100 per month
3BHK - Rs (5900 - 6900) per month
Myhna Orchid Varthur sample flat is ready to view at the site.
Myhna Orchid Prices & its details can be found in the price section & Myhna Orchid Varthur brochure can be downloaded from the link mentioned below. Project has been praised by the home buyers & Myhna Properties Varthur review is 4 out of 5 from over all the clients who have visited the site.
On Gunjur Road, Gunjur Village, Varthur, Bangalore

Pros
Cons
Vitrified Tiles
Granite Kitchen Platform
Stainless Steel Sink
Branded Fittings
Swimming Pool
Club House
Jogging Track
Multi Purpose Court
Senior Citizen Area
Outdoor Gym
Flower Garden
Net Cricket
Tennis Court
Skating Rink
Cricket Pitch
Outdoor Chess
Basketball Court
Amphitheater
Yoga Zone
+10 More



| Build-up Area | Carpet Area | All Inc. Price (Inc. of Taxes & Charges) | Min Downpayment (Inc. Taxes) | Parking | Unit Plan |
|---|
Is there any litigation against this proposed project:
NoMyhna Properties

2 CitiesLocations
Bangalore Rural, Bangalore Urban



3400 - 3400 sqft
Hatha Group
Developer
1230 - 1685 sqft
Sapthagiri Developers
Developer
1553 - 1789 sqft
Sobha Developers
Developer
1130 - 1645 sqft
Mathapathi Constructions Pvt Ltd
Developer
1495 - 1790 sqft
Candeur Constructions
Developer
1385 - 1830 sqft
Udbhav Builders And Developers
Developer



1255 - 1653 sqft
Sentient Developers
Developer




1280 - 2345 sqft
Green Edge Ventures
Developer


Housiey Legal: Free Real Estate Legal Consultation
Get Expert Advice on RERA, Builder Refunds, Area Mismatch, Stuck Projects & More - at No Cost!