





Land Parcel
Towers
Floors
Config
Carpet Area
RERA NO.
Possession Status
Target Possession
RERA Possession
Litigation
Lodha Kothrud Project Overview
Lodha Palais Project will be constructed on 1.14acre of land parcel, 2 towers with G+5P+21 floors having 3BHK, 4BHK, 5BHK Townhouse, 6BHK Penthouse premium residences.
Lodha Palais Location
Project is located Near Sangeetkar Shrikant Thakare Road, Chaitanya Nagar, Kothrud, Pune with -
Swami Vivekanand chowk - 500m
Croma - Kothrud - 3.3km
D Mart - 3.6km
Lodha Palais Kothrud Project Amenities
First is Internal amenities -
Vitrified Tiles, Granite Kitchen Platform, Aluminium Sliding Windows, Anti Skid Flooring, SS Sink, MS Safety, Mosquito Mesh, Earthquake Safety, Fire Fighting System, Rainwater Harvesting & many more
Lodha Group Kothrud External Amenities
Project has 20+ ultra luxurious amenities with likes of -
Gymnasium
Meditation/Yoga Area
Senior Citizen Sitting Area
Children's Play Area
Swimming Pool & many more
Lodha Group Palais Kothrud Parking -
Project has one type of car parking facility -
1) Ground
Lodha Palais Possession -
Rera Possession - September 2029
Target Possession - March 2028
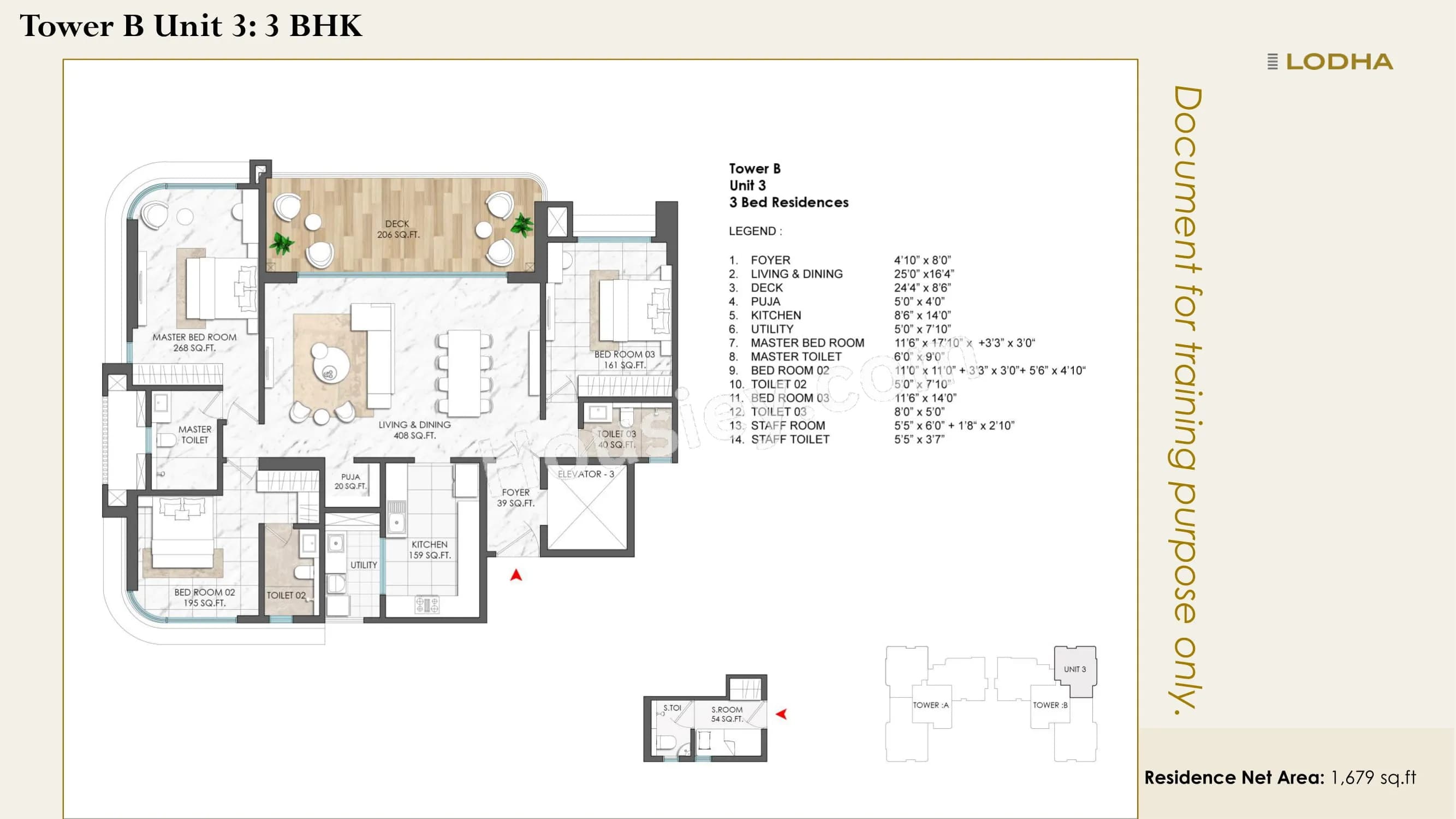
Carpet Area & Floor Plan
Lodha Palais Kothrud project has 3BHK, 4BHK, 5BHK Townhouse, 6BHK Penthouse premium residences with -
3BHK - (1679 to 1728)sqft
4BHK - (2023 to 2025)sqft
5BHK Townhouse - (4264 to 5350)sqft
6BHK Penthouse - (4285 to 4290) sqft
Lodha Palais floor plan
Tower floor plan will have 3 flats 3 lifts & 2 staircases on each floor
Maintenance -
Lodha Palais Pune Project maintenance varies with the configuration and the carpet area which are as follows-
3BHK - Rs (6700 - 7000) per month
4BHK - Rs (8000 - 8100) per month
5BHK Townhouse - Rs (17000 - 21400) per month
6BHK Penthouse - Rs (17000 - 17200) per month
Palais Kothrud Prices & its details can be found in the price section & Lodha Palais Kothrud brochure can be downloaded from the link mentioned below. Project has been praised by the home buyers & Lodha Group Kothrud review is 4 out of 5 from over all the clients who have visited the site
Near Sangeetkar Shrikant Thakare Road, Chaitanya Nagar, Kothrud, Pune


Pros
Cons
Video Door Phone
Vitrified Tiles
Granite Kitchen Platform
Stainless Steel Sink
Exhaust Fan
Solar Water Heater
Swimming Pool
Kids Play Area
Jogging Track
Garden
Multi Purpose Court
Senior Citizen Area
Green Space
Meditation Zone
Temple Complex
Banquet Hall
Entrance Gate
Exit Gate
Pool deck
Drop Of Canopy
Indoor games
+4 More



| Carpet Area | All Inc. Price (Inc. of Taxes & Charges) | Min Downpayment (Inc. Taxes) | Parking | Unit Plan |
|---|---|---|---|---|
1679 sqft | 4.05 Cr All In | 61.00 Lacs | 2 | ![]() |
1681 sqft | 4.05 Cr All In | 61.00 Lacs | 2 | ![]() |
1726 sqft | 4.15 Cr All In | 62.00 Lacs | 2 | ![]() |
1728 sqft | 4.16 Cr All In | 62.00 Lacs | 2 | ![]() |

Is there any litigation against this proposed project:
NoCommencement Certificate Lodha Palais
Legal Title Report Lodha Palais
Layout Plan Lodha Palais
Note: You can download more detailed documents by following this link
Lodha Group

7 CitiesLocations
Hyderabad, Ahmedabad, Bangalore Rural, Bangalore Urban, Mumbai City, Mumbai suburban, Pune


780 - 1777 sqft
Majestique Landmarks
Developer




864 - 3905 sqft
Deshpande Realty
Developer

825 - 1257 sqft
Vilas Javdekar Developers
Developer

Housiey Legal: Free Real Estate Legal Consultation
Get Expert Advice on RERA, Builder Refunds, Area Mismatch, Stuck Projects & More - at No Cost!