











Land Parcel
Towers
Floors
Config
Carpet Area
RERA NO.
Possession Status
Target Possession
RERA Possession
Litigation
Kumar Hadapsar Project Overview
Kumar Placida Project will be constructed on 2.08 acres of land parcel, 1 tower with 3B+G+16 floors having 2 BHK, 3 BHK, 4 BHK, 5.5 BHK premium residences.
Kumar Placida location
Project is located Near Kumar Purab Road, Hadapsar, Pune with -
Hadapsar Gadital Bus Stand - 2.5km
Magarpatta Circle - 2.7km
Seasons Mall - 3.2km
Kumar Placida Hadapsar Project Amenities
First is Internal amenities -
Vitrified Tiles, Granite Kitchen, SS Sink, Earthquake Resistant RCC Frame Structure, Gypsum Finish Internal Wall, Safety Grills In Windows For Security, Aluminium Windows With Mosquito Mesh, Ms Railing & many more
Kumar World Hadapsar External Amenities
Project has 30+ luxurious amenities with likes of -
Club House
Children's Play Area
Gazebo
Box Cricket
Rooftop Meditation Area & Many More
Kumar World Placida Hadapsar Parking -
Project has one type of car parking facility -
1) Basements
Kumar Placida Possession -
Rera Possession - December 2027
Target Possession - December 2026
Carpet Area & Floor Plan
Placida project has 2BHK, 3BHK, 4BHK, 5.5BHK premium residences with -
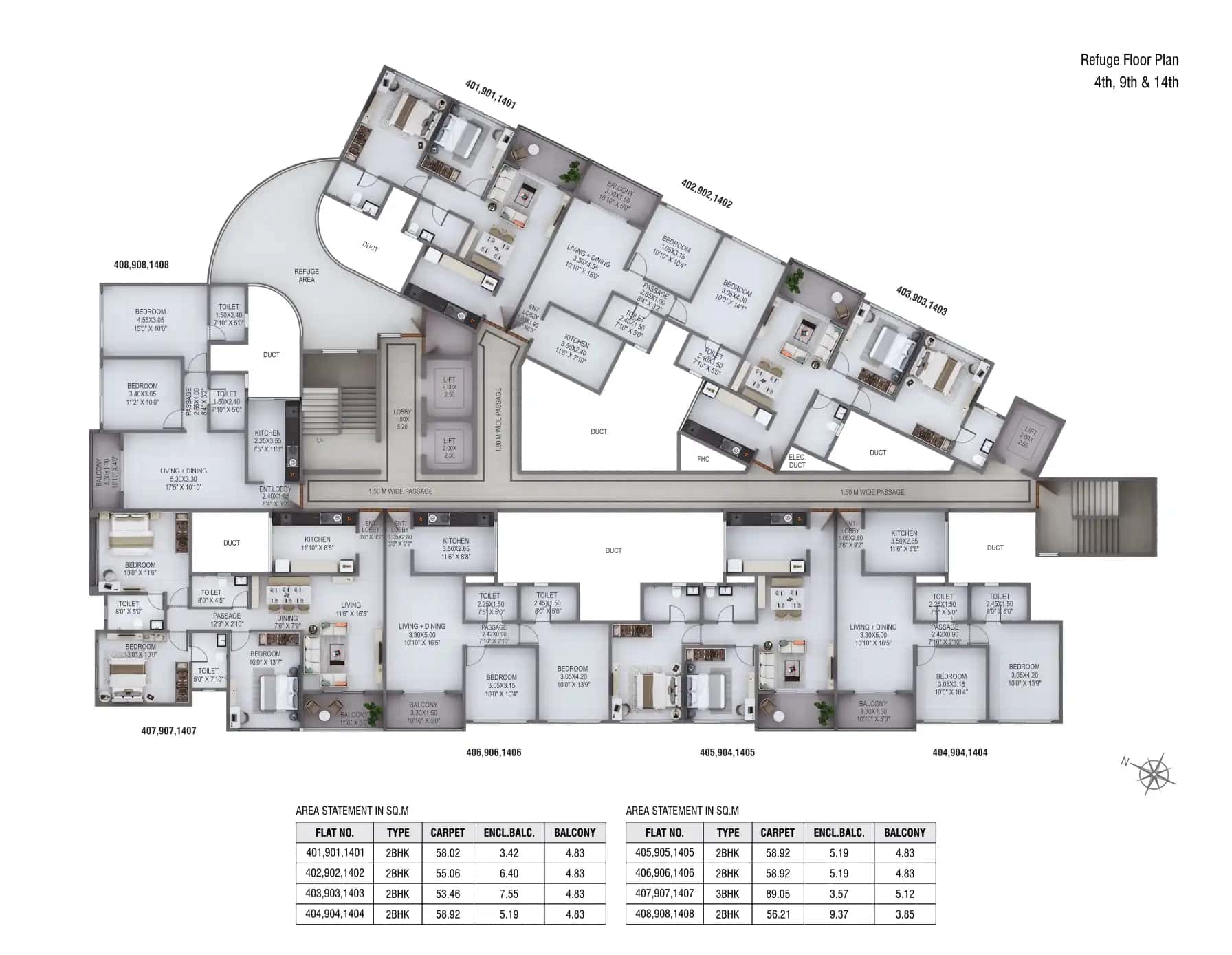
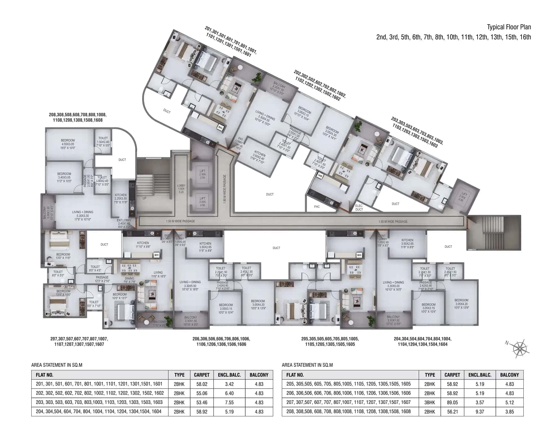
2BHK - (709 to 747) sqft
3BHK - 1052 sqft
4BHK - 1428 sqft
5.5BHK - 1794 sqft
Kumar Placida floor plan
Tower floor plan will have 8 flats 3 lifts & 2 staircases on each floor
Maintenance -
Kumar Placida Pune Project maintenance varies with the configuration and the carpet area which are as follows-
2BHK - (1700 - 1800) per month
3BHK - 2600 per month
4BHK - (3500 - 3700) per month
5.5BHK - 4400 per month
Placida Prices & its details can be found in the price section & Placida Hadapsar brochure can be downloaded from the link mentioned below. Project has been praised by the home buyers & Kumar World Hadapsar review is 4 out of 5 from over all the clients who have visited the site.
Near Kumar Purab Road, Hadapsar, Pune

Pros
Cons
Vitrified Tiles
Granite Kitchen Platform
Stainless Steel Sink
Mosquito Mesh Windows
Safety Doors
Club House
Kids Play Area
Outdoor Gym
Rooftop Amenities
Outdoor Chess
Box Cricket
Meditation Zone
BBQ Lawn
Gazebo
Star Gazing
party lawn
Yoga Deck
Landscaped Garden




| Carpet Area | All Inc. Price (Inc. of Taxes & Charges) | Min Downpayment (Inc. Taxes) | Parking | Unit Plan |
|---|---|---|---|---|
709 sqftLimited | 85.00 Lacs All In | 13.00 Lacs | 1 | ![]() |
714 sqftLimited | 87.00 Lacs All In | 13.00 Lacs | 1 | ![]() |
742 sqftLimited | 90.00 Lacs All In | 13.50 Lacs | 1 | ![]() |
747 sqftLimited | 90.00 Lacs All In | 13.50 Lacs | 1 | ![]() |

Is there any litigation against this proposed project:
NoKumar Placida Commencement Certificate
Kumar Placida Legal Title Report
Kumar Placida Building Plan
Note: You can download more detailed documents by following this link
Kumar World

1 CityLocations
Pune

834 - 1168 sqft
Kumar Properties
Developer
668 - 892 sqft
Majestique Landmarks
Developer
5321 - 5321 sqft
Panchshil Realty
Developer
1270 - 1385 sqft
Shapoorji Pallonji Group
Developer


493 - 806 sqft
Ram India Group
Developer





468 - 773 sqft
New Front Group
Developer

773 - 968 sqft
Kamdhenu Realities
Developer
946 - 2500 sqft
Vyomsigma Buildzone LLP
Developer
732 - 1070 sqft
Lohia Jain Malpani Properties
Developer
829 - 1741 sqft
Mahavir Vishwakarma Properties
Developer

Housiey Legal: Free Real Estate Legal Consultation
Get Expert Advice on RERA, Builder Refunds, Area Mismatch, Stuck Projects & More - at No Cost!