





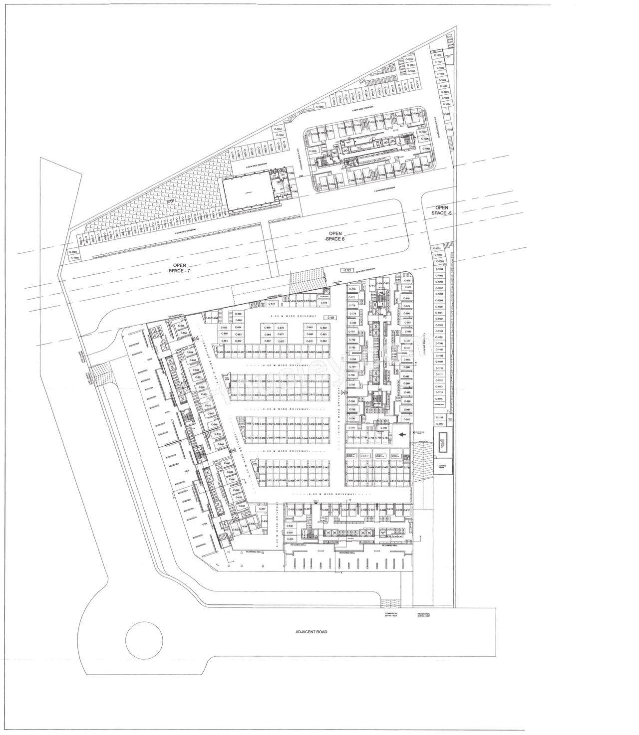
Land Parcel
Towers
Floors
Config
Carpet Area
RERA NO.
Possession Status
Target Possession
RERA Possession
Litigation
Kolte Patil Punawale Project Overview
Kolte Patil Echoes will be constructed on 5.89 Acres, 5 Towers, G+12/22/35 Floors, 2BHK, 2.5BHK premium residences .
Kolte Patil Echoes location
Project is located Near Marunji Road, Life Republic Township, Punawale, Pune with -
Marunji Road - 1.8km
Sai Balaji International Institute - 2.7km
18 Magnitude - 3.4km
Kolte Patil Echoes Punawale Amenities
First is Internal amenities -
All apartments are unfurnished with branded fittings and fixtures with
Vitrified Tiles, Branded Fittings, Kitchen Platform, SS Sink, Powder Coated Aluminum Sliding Windows, MS Grills Etc
Kolte Patil Developers Punawale External Amenities
Project has 35+ luxurious amenities with likes of -
Gymnasium
Indoor Games
Club House
Childrens Play Area
Senior Citizen Sitting Area many more.
Kolte Patil Developers EchoesPunawale Parking Punawale
Project has one type of car parking facility which are as follows -
1) Ground
Kolte Patil Echoes Possession -
Rera Possession - December 2029
Target Possession - December 29
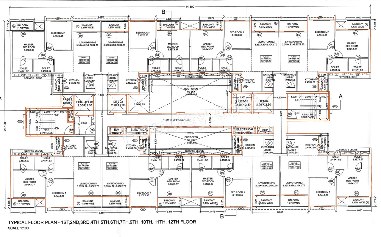
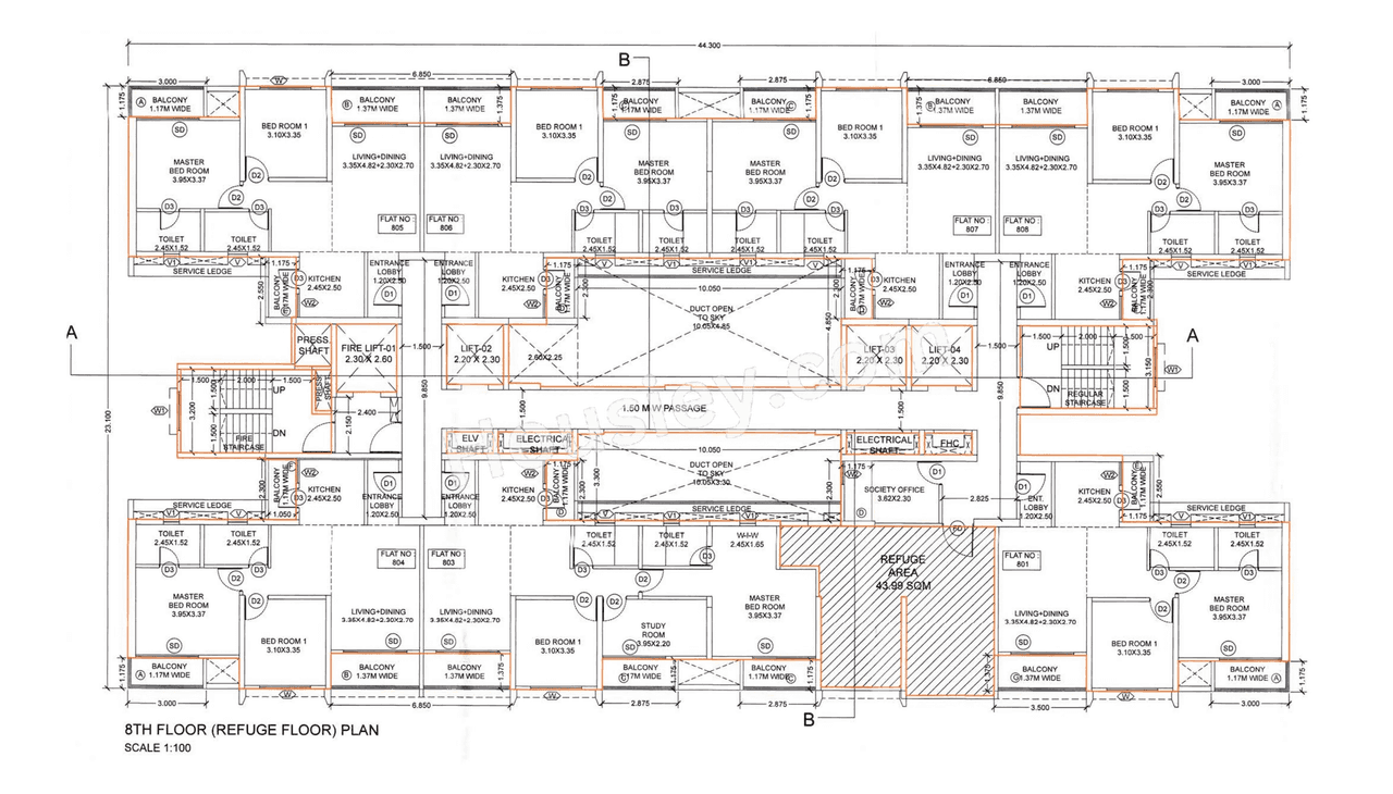
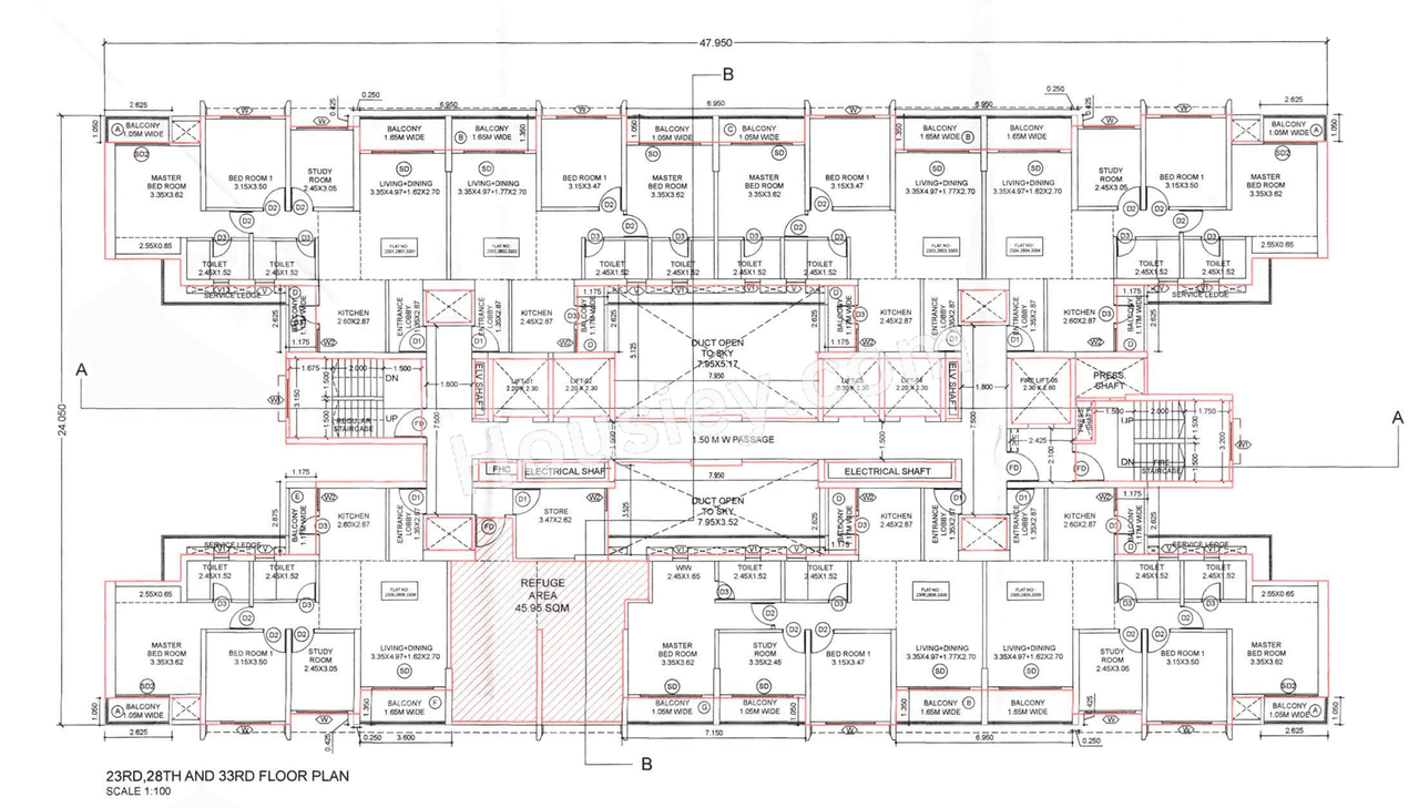
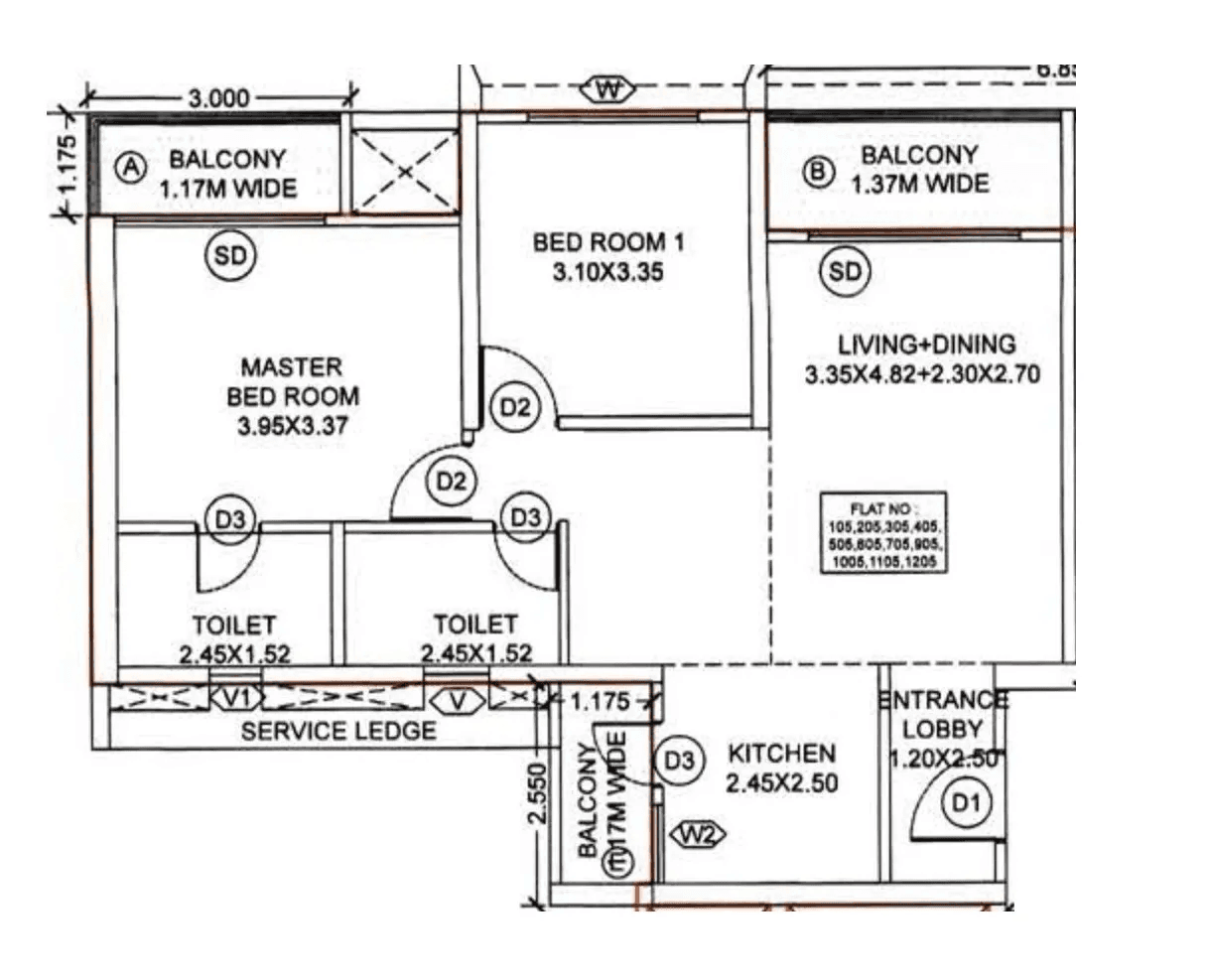
Carpet Area & Floor Plan
Kolte Patil Echoes Punawale 2BHK , 3BHK Apartment with -
2BHK - (838 to 840) sqft
3BHK - (963 to 1086) sqft
Kolte Patil Echoes floor plan
Tower floor plan will have 6 flats 2 lifts & 2 staircases on each floor
Maintenance -
Kolte Patil Echoes Pune project maintenance varies with the configuration and the carpet area which are as follows-
2BHK - Rs (3300 - 3400) per month
2.5BHK - Rs (3900 - 4300) per month
EchoesPunawale price & its details can be known at the price section & Kolte Patil Echoes Punawale brochure can be downloaded from the link mentioned below. Project has been praised by the home buyers & Kolte Patil Developers Punawale reviews is 4 out of 5 from over all the clients who have visited the site
Near Marunji Road, Life Republic Township, Punawale, Pune
Pros
Cons
Vitrified Tiles
Granite Kitchen Platform
Stainless Steel Sink
Branded Fittings
Swimming Pool
Club House
Kids Play Area
Garden
Multi Purpose Court
Kids Pool
Basketball Court
Seating Area
Acupressure Pathway
party lawn
Gymnasium
Multi purpose hall




| Carpet Area | All Inc. Price (Inc. of Taxes & Charges) | Min Downpayment (Inc. Taxes) | Parking | Unit Plan |
|---|---|---|---|---|
838 sqft | 83.00 Lacs All In | 14.00 Lacs | 1 | ![]() |
840 sqft | 83.60 Lacs All In | 15.00 Lacs | 1 | ![]() |

Is there any litigation against this proposed project:
NoCommencement Certificate Kolte Patil Echoes
Legal Title Report Kolte Patil Echoes
Layout Plan Kolte Patil Echoes
Note: You can download more detailed documents by following this link
Kolte Patil Developers

5 CitiesLocations
Bangalore Rural, Bangalore Urban, Mumbai City, Pune, Mumbai suburban


709 - 1172 sqft
Pharande Spaces
Developer


708 - 918 sqft
Krisala Developers
Developer
685 - 987 sqft
Life Craft Realty
Developer



--1702381504934-img.webp&w=1280&q=75)
836 - 1176 sqft
Kolte Patil Developers
Developer
753 - 1047 sqft
Silveroak Buildcon
Developer
685 - 1135 sqft
GD Square Spaces
Developer



723 - 1276 sqft
Kohinoor Group
Developer

740 - 1051 sqft
Gurudatta Developers
Developer
752 - 752 sqft
Pharande Spaces
Developer
Housiey Legal: Free Real Estate Legal Consultation
Get Expert Advice on RERA, Builder Refunds, Area Mismatch, Stuck Projects & More - at No Cost!