Last updated: Mar 30, 2026











Land Parcel
Towers
Floors
Config
Carpet Area
RERA NO.
Possession Status
Target Possession
RERA Possession
Litigation
Kolte Patil Santacruz East Project Overview
Kolte Patil Alora will be constructed on 1.34 acre of land parcel, 5 towers with 2B+G+11 floors having 1BHK, 2BHK, 3BHK premium residences.
Kolte Patil Alora location
Project is Off CST Road, Santacruz East, Mumbai with -
University of Mumbai - 800m
WEH - 2.0km
Santacruz Railway Stn - 3.0km
Kolte Patil Alora Santacruz East Project Amenities
First is Internal amenities -
Vitrified tiles, Granite Kitchen, SS Sink, CCTV, Video Door Phone, Intercom Systems,
Kolte Patil Developers Santacruz East Amenities
Project has 20+ amenities with likes of -
Infinity Edge Swimming Pool
Kids Pool
Pool Deck
Pool Shower
Jogging Track
Amphitheatre
Kids Play Area
Green Lawn & Many More
Kolte Patil Developers Patil Alora Santacruz East Parking -
Project has one type of car parking facility -
1) Basement
Kolte Patil Alora Possession -
Rera Possession - May 2027
Target Possession - December 2026
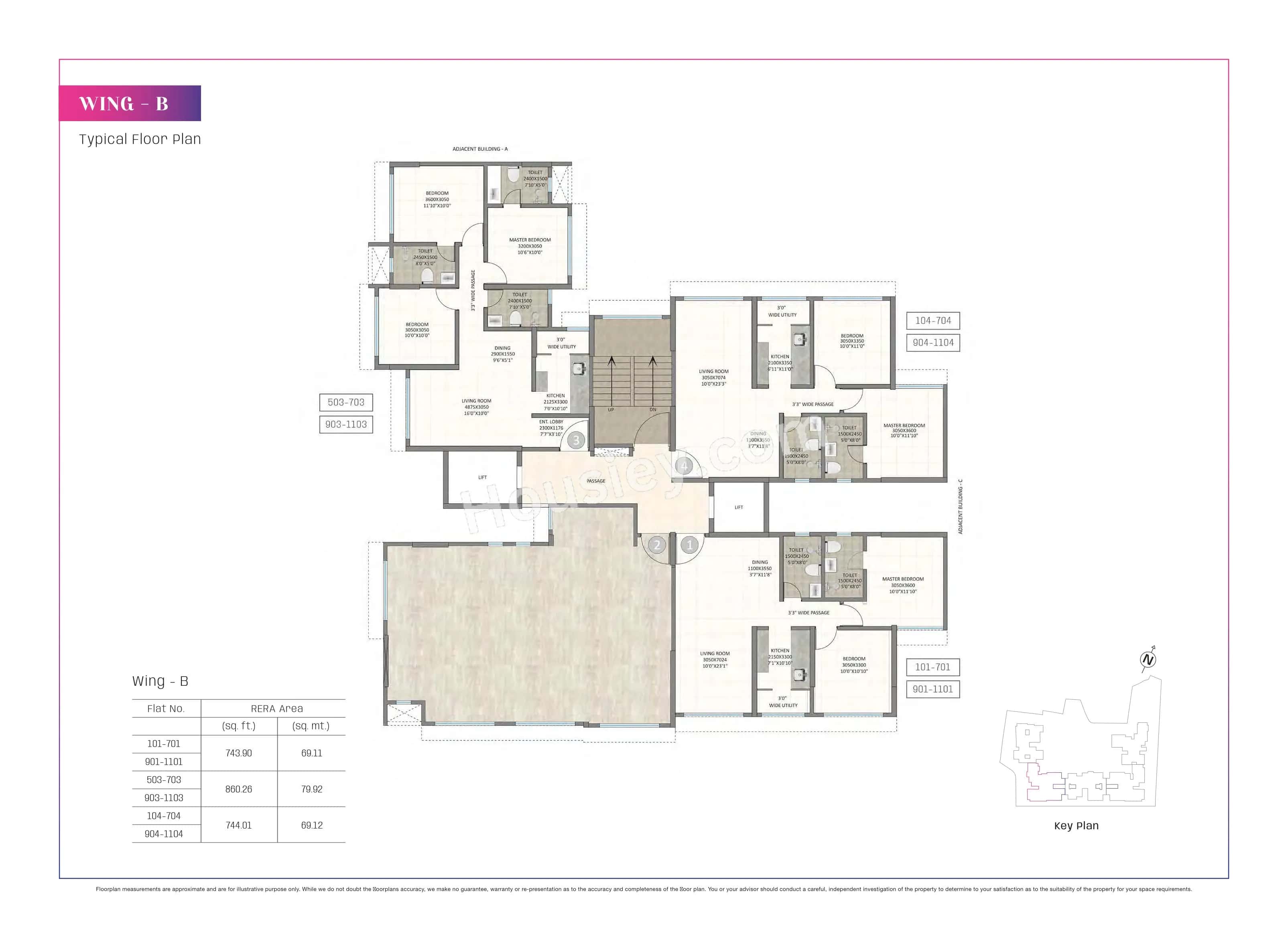
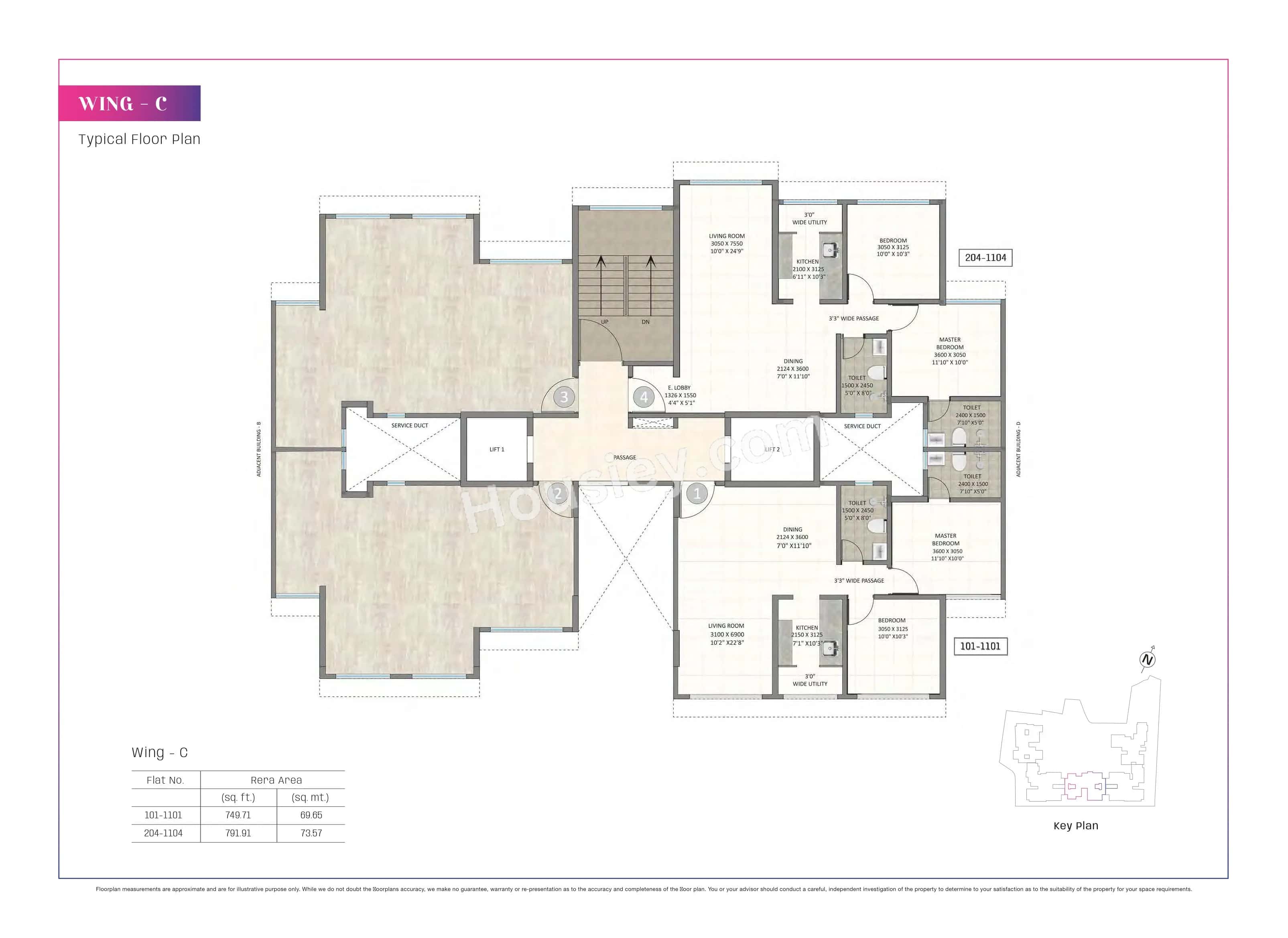
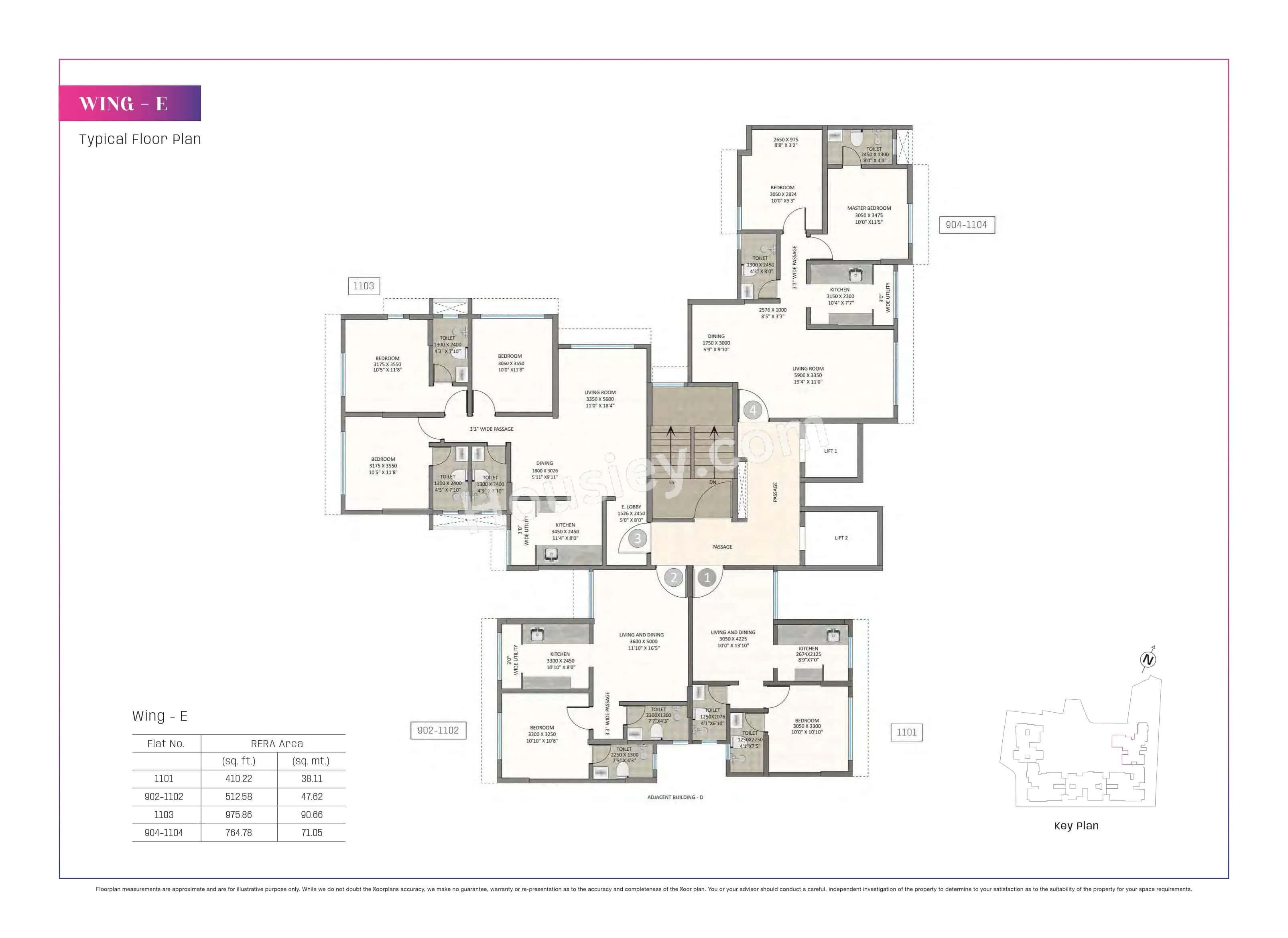
Carpet Area & Floor Plan
Alora project has 1BHK, 2BHK, 3BHK premium residences with -
1BHK - 410 sqft
2BHK - (744 to 792) sqft
3BHK - (860 to 995)sqft
Kolte Patil Alora floor plan
Tower floor plan will have 4 flats, 2 lift & 1 staircase on each floor
Maintenance -
Kolte Patil Alora Mumbai Project maintenance varies with the configuration and the carpet area which are as follows-
1BHK - Rs 3700 per month
2BHK - Rs (6700 - 7100) per month
3BHK - Rs (7700 - 8950) per month
Alora Prices & its details can be found in the price section & Kolte Patil Alora Santacruz East brochure can be downloaded from the link mentioned below. Project has been praised by the home buyers & Kolte Patil Developers Santacruz East review is 4 out of 5 from over all the clients who have visited the site.
Off CST Road, Santacruz East, Mumbai

Pros
Cons
Video Door Phone
Intercom Facility
Vitrified Tiles
Granite Kitchen Platform
Stainless Steel Sink
CCTV Camera
Swimming Pool
Kids Play Area
Jogging Track
Kids Pool
Infinity Pool
Green Space
Amphitheater
Pool deck
Indoor games
Fitness Deck
Multi purpose hall








| Carpet Area | All Inc. Price (Inc. of Taxes & Charges) | Min Downpayment (Inc. Taxes) | Parking | Unit Plan |
|---|---|---|---|---|
410 sqftSold Out | ![]() | - | - | ![]() |


Is there any litigation against this proposed project:
Yes| Court Name | City | Case Type | Petition | Case Number | Year | Case Status |
|---|---|---|---|---|---|---|
| Bombay High Court | Civil | Suit | 1488/1980 | 1980 | ||
| Bombay High Court | Civil | Suit | 2860/1996 and 2861/1996 | 1996 |
Kolte Patil Alora Commencement Certificate
Kolte Patil Alora Layout Plan
Kolte Patil Alora Legal Title Report
Note: You can download more detailed documents by following this link
Kolte Patil Developers

5 CitiesLocations
Bangalore Rural, Bangalore Urban, Mumbai City, Pune, Mumbai suburban








671 - 1338 sqft
Shapoorji Pallonji Group
Developer
Housiey Legal: Free Real Estate Legal Consultation
Get Expert Advice on RERA, Builder Refunds, Area Mismatch, Stuck Projects & More - at No Cost!