




Land Parcel
Towers
Floors
Config
Carpet Area
RERA NO.
Possession Status
Target Possession
RERA Possession
Litigation
Kohinoor Project Overview
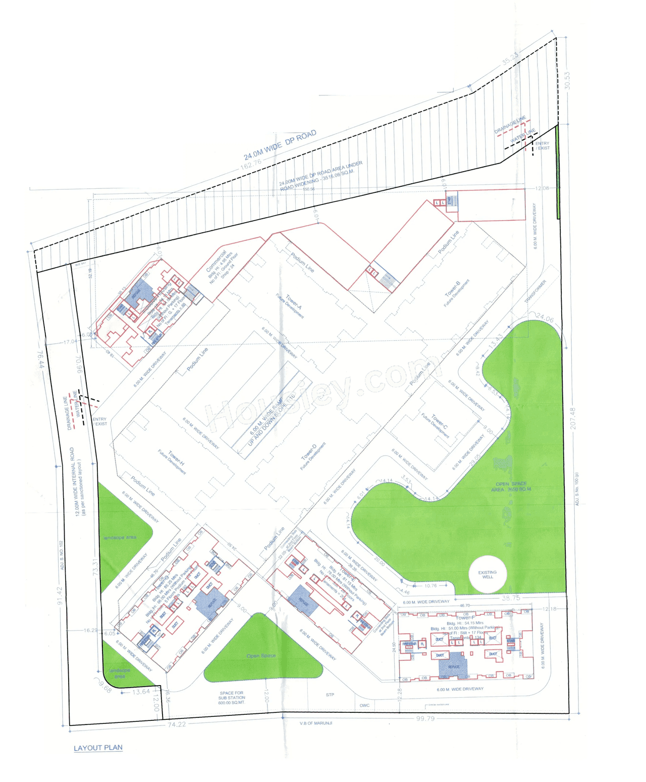
Kohinoor Avantara will be constructed on 8.66 acre of land parcel, 8 towers with B+G+5P+22/26 floors having 2BHK, 3BHK premium residences.
Kohinoor Avantara location
Project is located Near Shani Mandir Rd, Dattwadi, Wakad, Pune. with -
Mumbai-Bengaluru Highway - 1.5km
Bhumkar Chowk - 2km
D-Mart - 4km
Kohinoor Avantara Wakad Project Amenities
First is Internal amenities -
Vetrified tiles, Kitchen Platform, SS Sink, Aluminum Sliding window door etc & Many More
Kohinoor Group Wakad External Amenities
Project has 25+ luxurious amenities with likes of -
Swimming Pool
Club House
Multipurpose Hall
Senior Citizen Sit-Out Area & Many More
Kohinoor Group DownTown Wakad Parking -
Project has two types of car parking facilities -
1) Basement
2) Podium
Kohinoor Avantara Possession -
Rera Possession - March 2032
Target Possession - March 2032
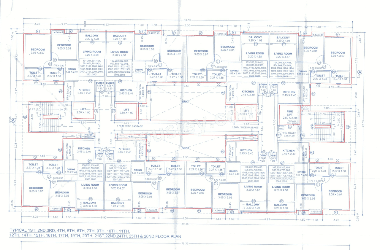
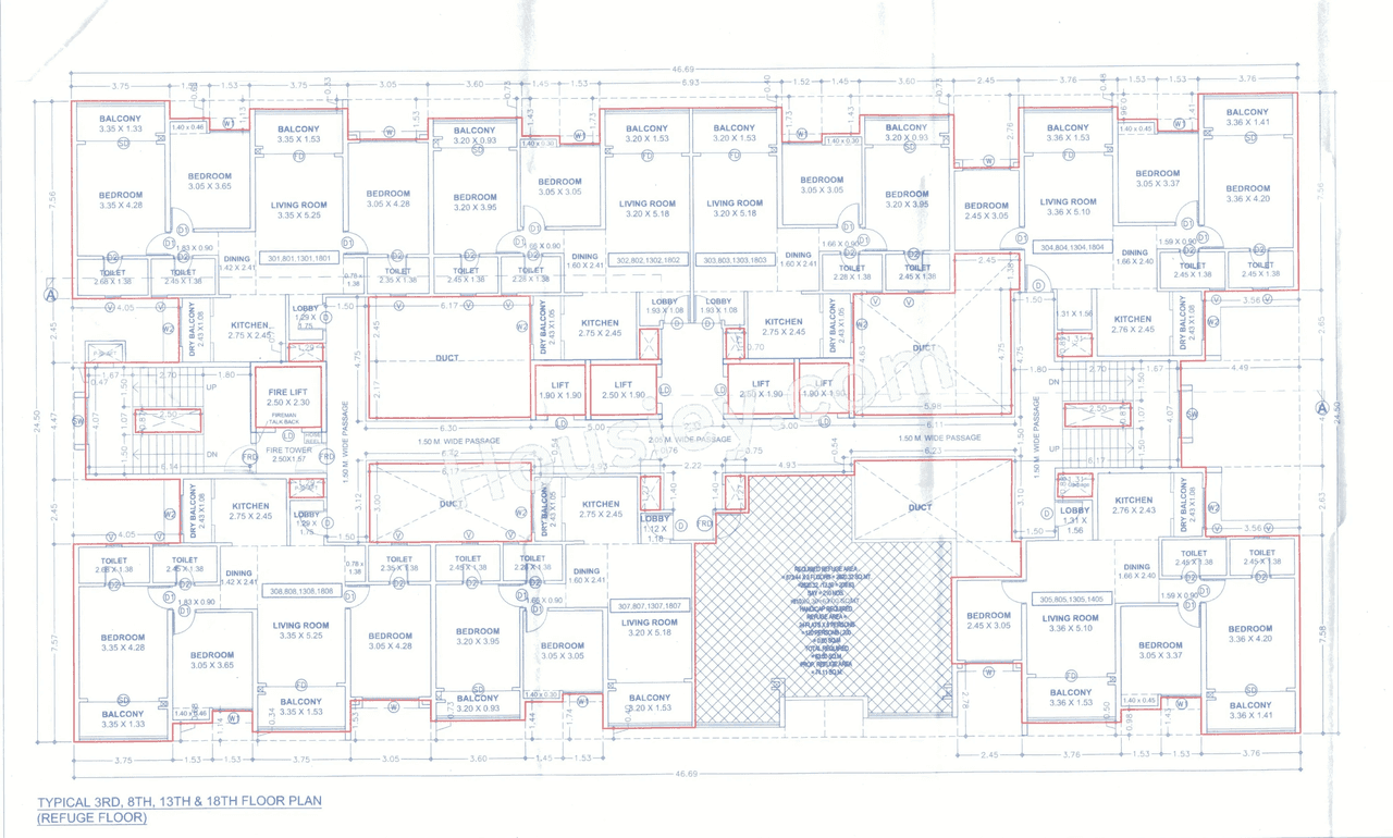
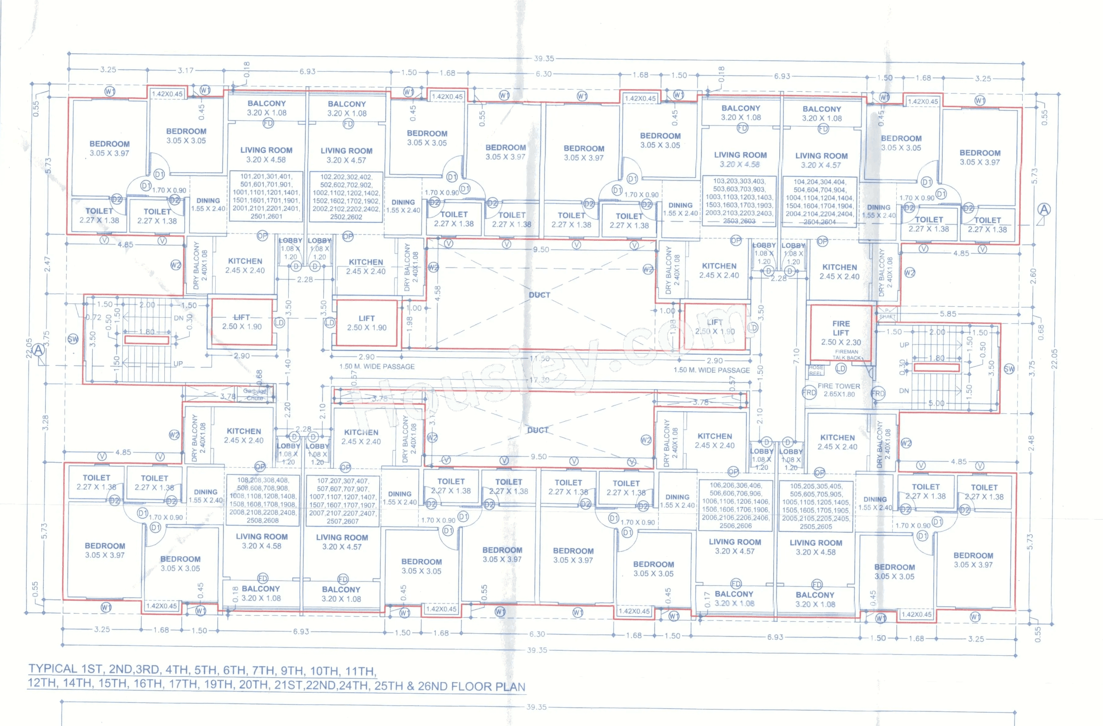
Carpet Area & Floor Plan
Kohinoor Avantara Wakad project has 2BHK,3BHK premium residences with -
2BHK - (704 - 803) sqft
3BHK - (956 - 1087) sqft
Kohinoor Avantara floor plan
Tower floor plans will have 8 flats, 4 lifts & 2 staircases on each floor
Maintenance -
Kohinoor Avantara Pune Project maintenance varies with the configuration and the carpet area which are as follows-
2BHK - Rs (2800 - 3200) per month
3BHK - Rs (3800 - 4400) per month
Kohinoor Downtown Wakad project sample flat is ready to view at the site.
Avantara Wakad price & its details can be found in the price section & Kohinoor Avantara Wakad brochure can be downloaded from the link mentioned below. Project has been praised by the home buyers & Kohinoor Group Wakad review is 4 out of 5 from over all the clients who have visited the site."
Near Shani Mandir Rd, Dattwadi, Wakad, Pune
Pros
Cons
Vitrified Tiles
Granite Kitchen Platform
Stainless Steel Sink
Swimming Pool
Club House
Kids Pool
Squash Court
Co Working Spaces
Cricket Pitch
Amphitheater
Rock Climbing
Seating Area
Pool deck
BBQ Lawn
Pet Park
Jacuzzi
Badminton Court
Fitness Studio
+1 More



| Carpet Area | All Inc. Price (Inc. of Taxes & Charges) | Min Downpayment (Inc. Taxes) | Parking | Unit Plan |
|---|---|---|---|---|
704 sqft | 89.90 Lacs All In | 13.00 Lacs | 1 | ![]() |
803 sqft | 99.90 Lacs All In | 15.00 Lacs | 1 | ![]() |

Is there any litigation against this proposed project:
NoCommencement Certificate Kohinoor Avantara
Legal Title Report Kohinoor Avantara
Layout Plan Kohinoor Avantara
Note: You can download more detailed documents by following this link
Kohinoor Group

5 CitiesLocations
Bangalore Rural, Bangalore Urban, Mumbai City, Mumbai suburban, Pune

445 - 734 sqft
Paranjape Schemes
Developer
681 - 737 sqft
Sonigara Realcon
Developer


752 - 1244 sqft
Kohinoor Group
Developer


722 - 999 sqft
Avneesh Realty Group
Developer
1081 - 1587 sqft
Shree Sonigara Realcon
Developer

725 - 1286 sqft
Vilas Javdekar Developers
Developer
717 - 1457 sqft
Siddhivinayak Group
Developer


725 - 1291 sqft
Vilas Javdekar Developers
Developer




785 - 1178 sqft
Sukhwani Constructions
Developer
Housiey Legal: Free Real Estate Legal Consultation
Get Expert Advice on RERA, Builder Refunds, Area Mismatch, Stuck Projects & More - at No Cost!