






Land Parcel
Towers
Floors
Config
Carpet Area
RERA NO.
Possession Status
Target Possession
RERA Possession
Litigation
JN Punawale Project Overview
JN AA Privilege Project will be constructed on 2.75 acres of land parcel, 4 towers with 4P+G+17 floors having 2BHK, 3BHK premium residences .
JN AA Privilege location
Project is located Near Gaikwad Nagar Road, Kate Wasti, Punawale, Pune with -
Zudio - 2.5km
Mumbai - Bangalore Highway- 2.7km
Dmart - 4.8km
JN AA Privilege Punawale Project Amenities
First is Internal amenities -
Vitrified tiles, Granite Kitchen, Earthsquake resistance, Power coated aluminium windown, Ms grill, SS sink, Video door phone, Gerator backup & many more
JN Realty & Homes Punawale External Amenities
Project has 30+ amenities with likes of -
Club house
Multipurpose court
Multipurpose hall
Multipurpose lawn
Gymnasium & Many More
JN Realty & Homes Aurigaa Punawale Parking -
Project has two types of car parking facilitis -
1) Podium
2) Ground
JN AA Privilege Possession -
Rera Possession - December 2028
Target Possession - March 2028
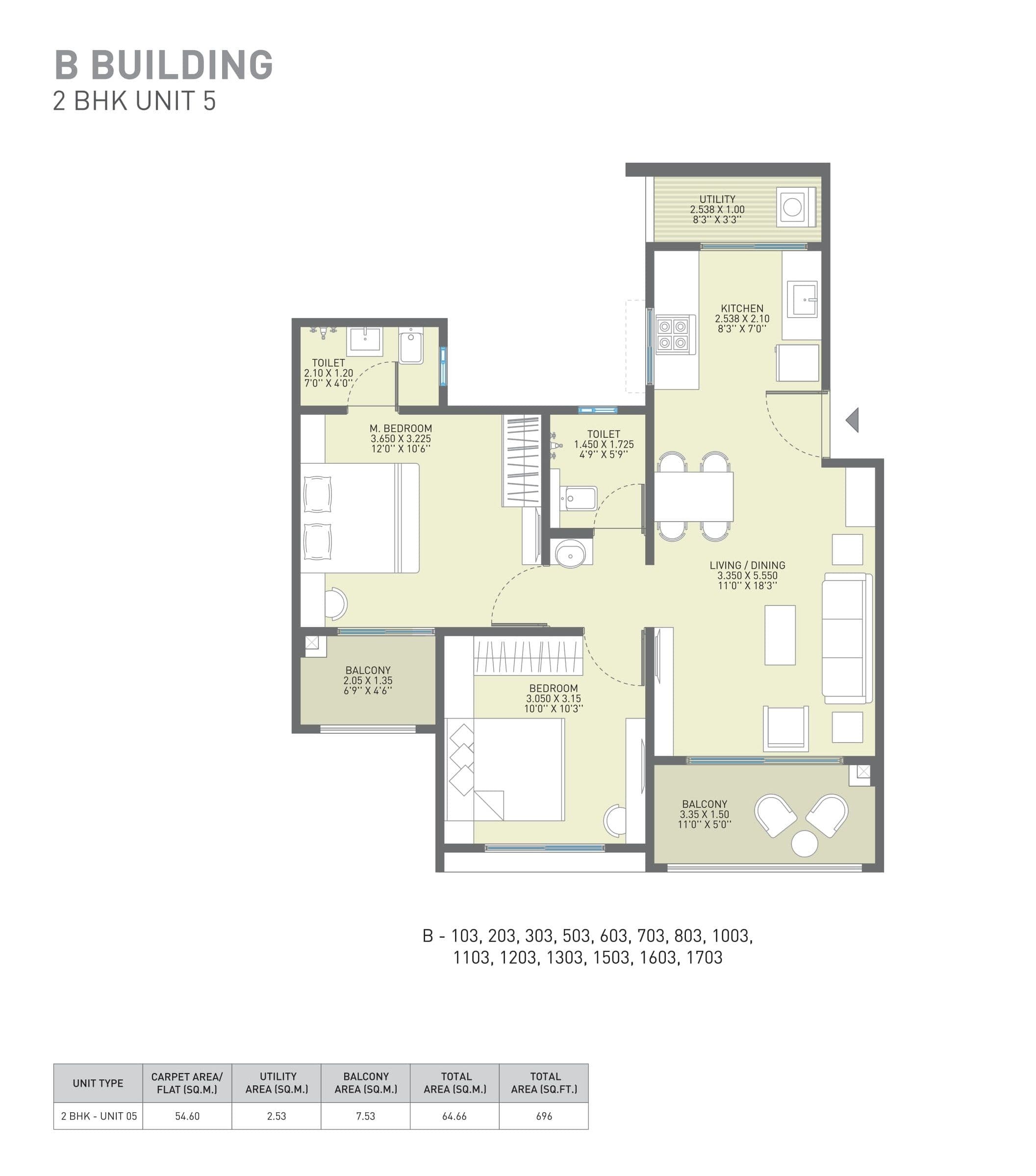
Carpet Area & Floor Plan
JN AA Privilege Punawale project has 2BHK, 3BHK premium residences with -
2BHK - (696 to 736) sqft
3BHK - (940 to 1081) sqft
JN AA Privilege floor plan
Tower floor plan will have 6 flats 2 lifts & 2 staircases on each floor
Maintenance -
JN AA Privilege Pune Project maintenance varies with the configuration and the carpet area which are as follows-
2BHK - Rs (2700 - 2900) per month
3BHK - Rs (3000 - 4300) per month
AA Privilege Punawale Project sample flat is ready to view at the site.
AA Privilege Prices & its details can be found in the price section & JN AA Privilege Punawale brochure can be downloaded from the link mentioned below. Project has been praised by the home buyers & JN Realty & Homes Punawale review is 4 out of 5 from over all the clients who have visited the site.
Near Gaikwad Nagar Road, Kate Wasti, Punawale, Pune
Pros
Cons
Video Door Phone
Vitrified Tiles
Granite Kitchen Platform
Stainless Steel Sink
Inverter Backup
Swimming Pool
Club House
Kids Play Area
Jogging Track
Multi Purpose Court
Senior Citizen Area
Kids Pool
Outdoor Gym
Multi Purpose Lawn
party lawn
Gymnasium
Multi purpose hall










| Carpet Area | All Inc. Price (Inc. of Taxes & Charges) | Min Downpayment (Inc. Taxes) | Parking | Unit Plan |
|---|---|---|---|---|
696 sqft | 69.00 Lacs All In | 10.00 Lacs | 1 | ![]() |
719 sqft | 71.29 Lacs All In | 11.00 Lacs | 1 | ![]() |
733 sqft | 77.94 Lacs All In | 12.00 Lacs | 1 | ![]() |
736 sqft | 78.24 Lacs All In | 12.00 Lacs | 1 | ![]() |

Is there any litigation against this proposed project:
NoCommencement Certificate JN AA Privilege
Legal Title Report JN AA Privilege
Layout Plan JN AA Privilege
Note: You can download more detailed documents by following this link
JN Realty and Homes

1 CityLocations
Pune


709 - 1172 sqft
Pharande Spaces
Developer


731 - 992 sqft
Ahura Builders
Developer
708 - 918 sqft
Krisala Developers
Developer
685 - 987 sqft
Life Craft Realty
Developer



--1702381504934-img.webp&w=3840&q=75)
836 - 1176 sqft
Kolte Patil Developers
Developer
753 - 1047 sqft
Silveroak Buildcon
Developer
685 - 1135 sqft
GD Square Spaces
Developer



723 - 1276 sqft
Kohinoor Group
Developer

740 - 1051 sqft
Gurudatta Developers
Developer
Housiey Legal: Free Real Estate Legal Consultation
Get Expert Advice on RERA, Builder Refunds, Area Mismatch, Stuck Projects & More - at No Cost!