Last updated: Apr 9, 2026


Land Parcel
Towers
Floors
Config
Carpet Area
RERA NO.
Possession Status
Target Possession
RERA Possession
Litigation
Haware Chembur East Project Overview
Haware Sky Project will be constructed on 0.25 Acre of land parcel, 1 tower with G+16 Floors having 1 BHK, 2 BHK, 3 BHK premium residences .
Haware Sky Location
Project is located Near EEH, Subhash Nagar, Chembur East, Mumbai with -
Chembur Railway Station - 850m
Cubic Mall - 2.5km
BARC Hospital - 2.7km
Haware Sky Chembur East Project Amenities
First is Internal amenities -
Vitrified Tiles, Granite Platform, SS sink & many more
Ujjwala Haware Chembur East External Amenities
Project has 15+ amenities with likes of -
Gymnasium
Jogging Track
Yoga
Meditation Area
Kids Play Area & Many more
Ujjwala Haware Sky Chembur East Parking -
Project has one type of car parking facility -
1) Tower Parking
Haware Sky Possession -
Rera Possession - February 2029
Target Possession - December 2026
Carpet Area & Floor Plan
Sky Mumbai project has 1BHK, 2BHK, 3BHK premium residences with -
1BHK - (372 - 395) sqft
2BHK - (547 - 609) sqft
3BHK - 765 sqft
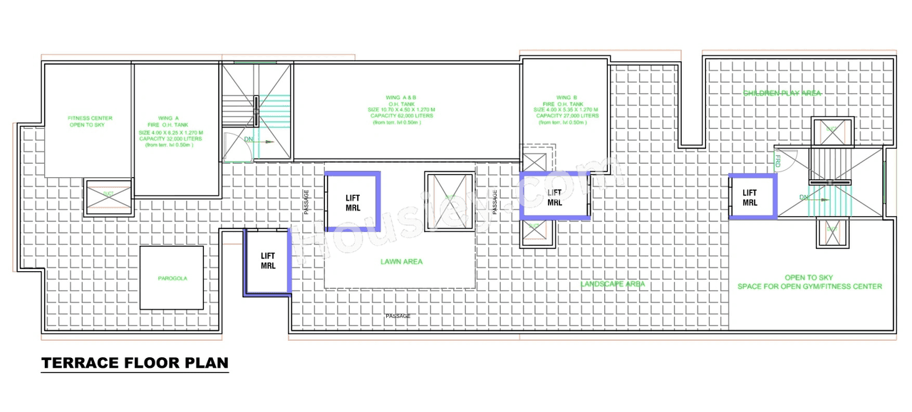
Haware Sky floor plan
Tower floor plan will have 8 flats 4 lifts & 2 staircases on each floor
Haware Sky Chembur East sample flat is ready to view at the site
Haware Sky Mumbai Prices & its details can be found in the price section & Haware Sky Chembur East brochure can be downloaded from the link mentioned below. Project has been praised by the home buyers & Ujjwala Haware Chembur East review is 4 out of 5 from over all the clients who have visited the site.
Near EEH, Subhash Nagar, Chembur East, Mumbai
Pros
Cons
Vitrified Tiles
Granite Kitchen Platform
Stainless Steel Sink
CCTV Camera
Kids Play Area
Open Gym
Indoor games







| Carpet Area | All Inc. Price (Inc. of Taxes & Charges) | Min Downpayment (Inc. Taxes) | Parking | Unit Plan |
|---|---|---|---|---|
372 sqftSold Out | ![]() | - | - | ![]() |
390 sqftSold Out | ![]() | - | - | ![]() |
395 sqftSold Out | ![]() | - | - | ![]() |


Is there any litigation against this proposed project:
NoHaware Sky Proforma Sale Agreement
Haware Sky Proforma Allotment Letter
Haware Sky Layout Plan
Note: You can download more detailed documents by following this link
Ujjwala Haware

3 CitiesLocations
Mumbai City, Mumbai suburban, Thane





















Housiey Legal: Free Real Estate Legal Consultation
Get Expert Advice on RERA, Builder Refunds, Area Mismatch, Stuck Projects & More - at No Cost!