Godrej Regal Pavilion Rajender Nagar
By Godrej Properties | Gaganpahad, Rajendra Nagar
1.11 Cr - 3.03 Cr All Inc.
Godrej Regal Pavilion Overview & Description
- 15Land Parcel
- 3Towers
- G+35Floors
- 2BHK, 3BHK, 3.5BHK, 4BHKConfig
- 1308-3572 Sq.ftBuild-up Area
- P02400009910RERA No.
- December 2028Target Possession
- December 2029RERA Possession
About Godrej Regal Pavilion
Godrej Regal Pavilion Project Overview
Godrej Regal Pavilion will be constructed on 15 acres of land parcel, 8 towers with G+35 floors having 2 BHK, 3 BHK, 3.5BHK, 4BHK premium residences.
Godrej Regal Pavilion location
Project is loc...
LocationView on Map
Near Srinagar - Kanyakumari Highway, Rajender Nagar, Hyderabad
- - Nehru Outer Ring Road - 4km
- - Escape Water Park - 7km
- - MPS Cricket Ground - 7.8km
Pros & Cons
Video
Amenities
Internal Amenities
Vitrified Tiles
Granite Kitchen Platform
Stainless Steel Sink
CC.TV Camera
External Amenities
Swimming Pool
Kids Play Area
Senior Citizen Area
Kids Pool
Outdoor Gym
Skating Rink
Rooftop Deck
Amphitheater
Seating Area
Gazebo
Indoor games
yoga deck
Badminton Court
Gymnasium
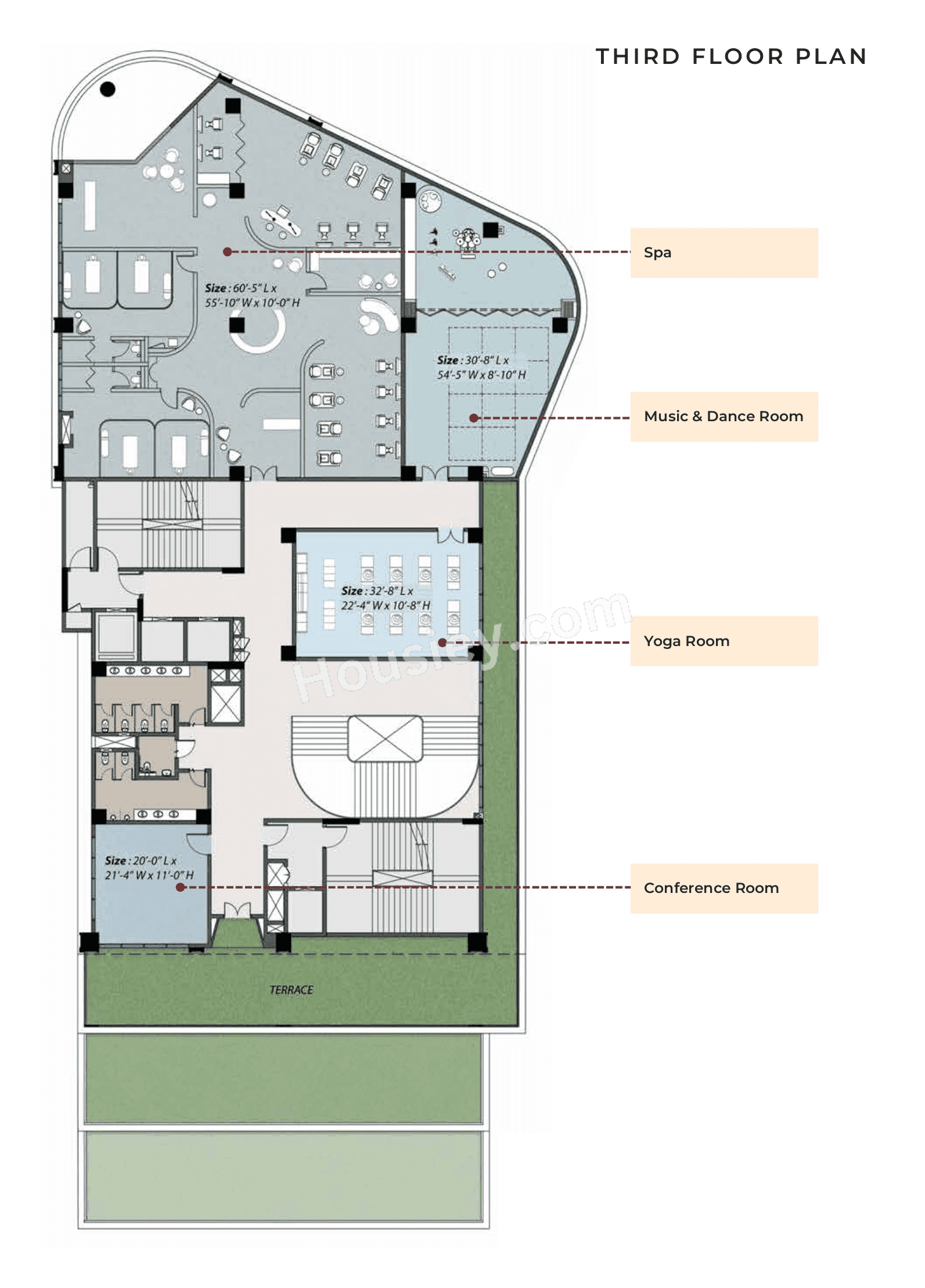
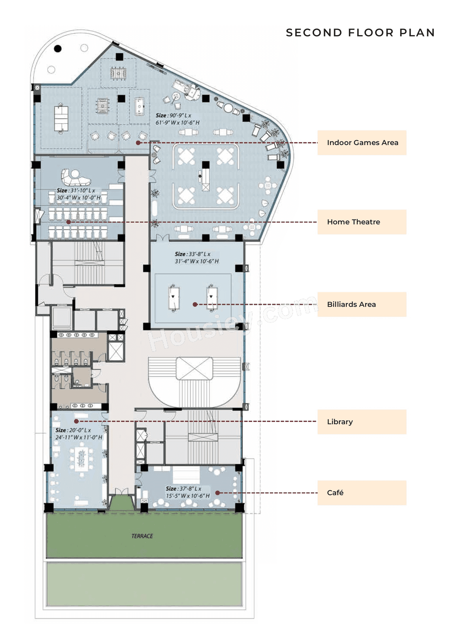
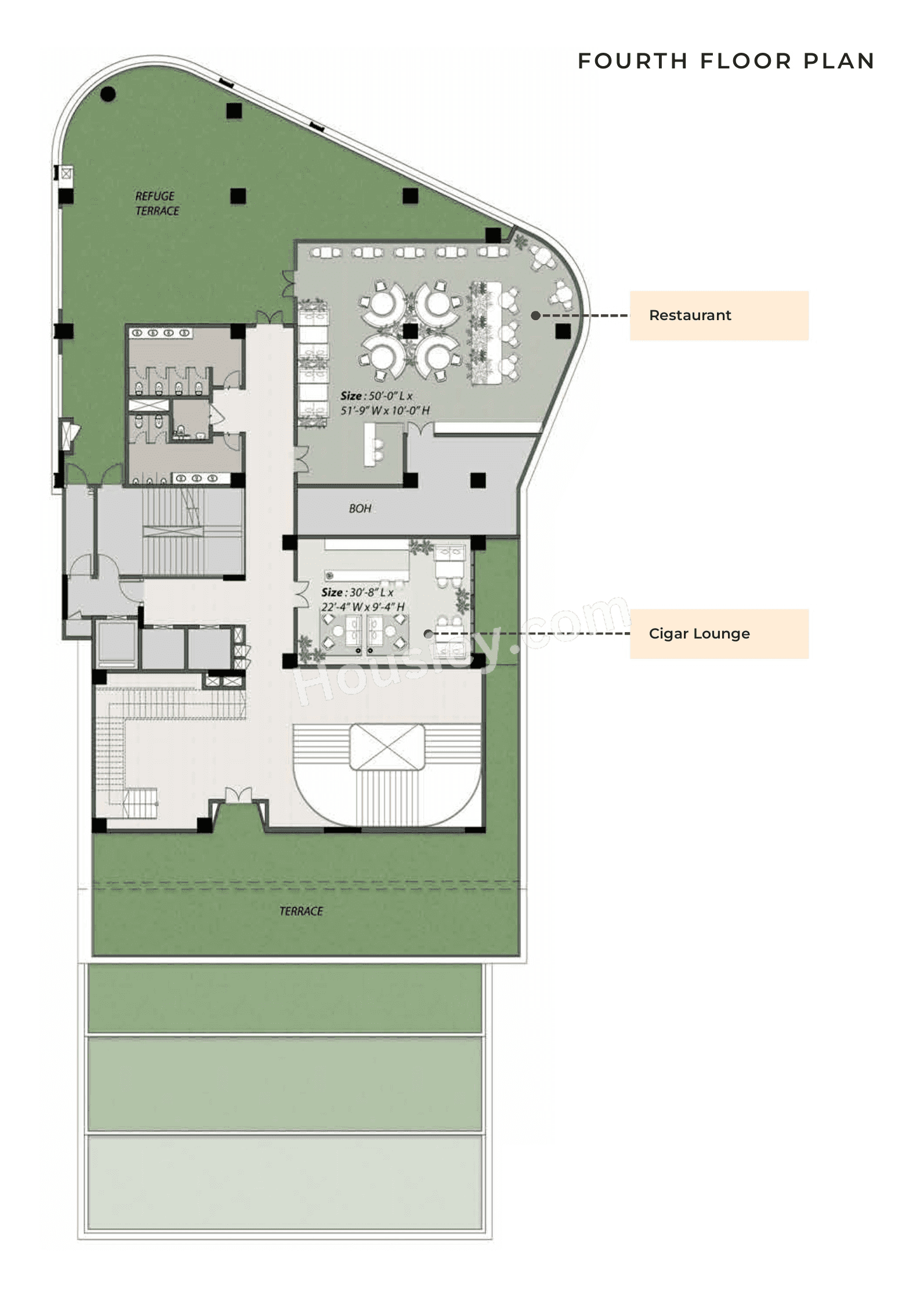
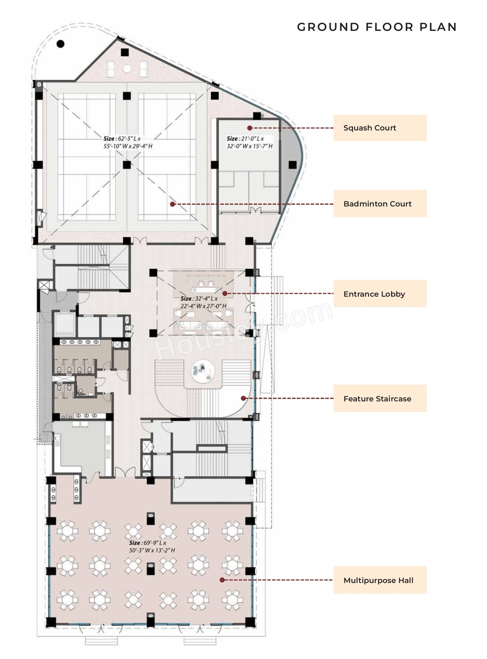
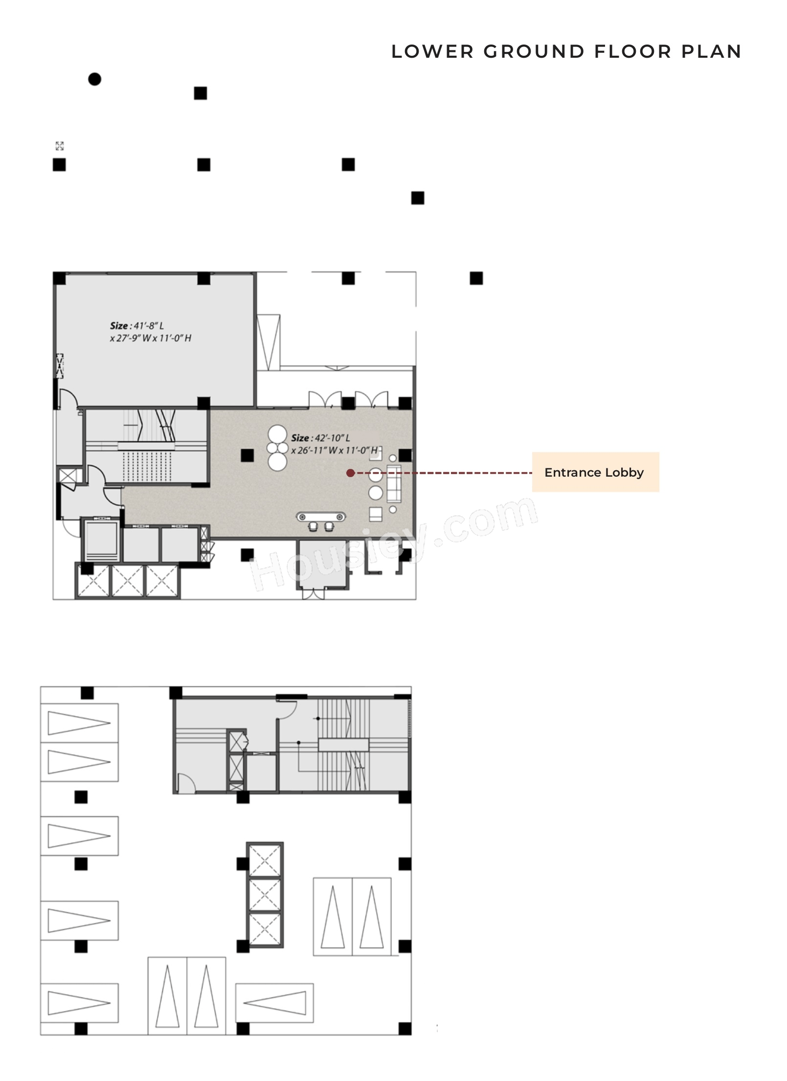
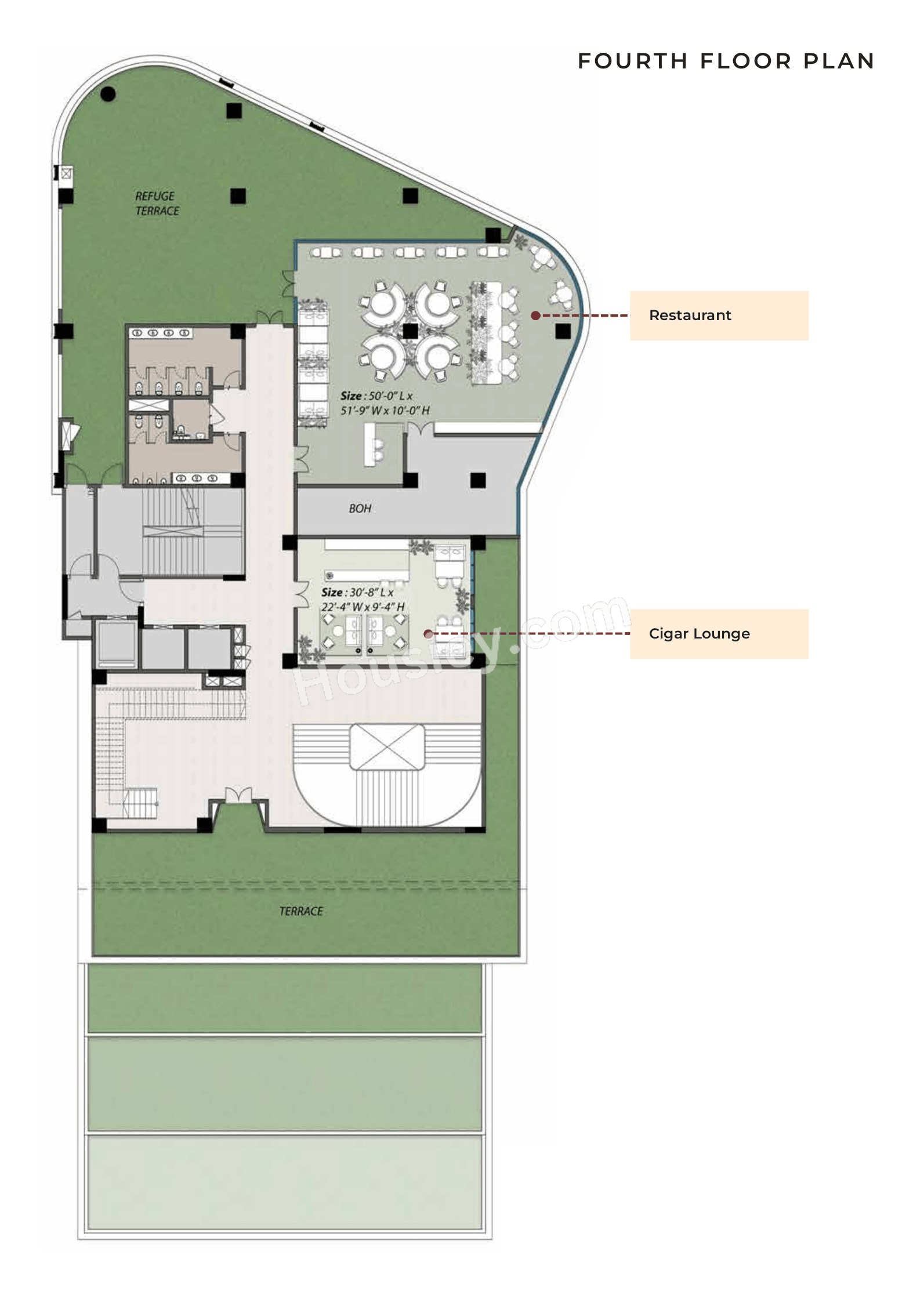
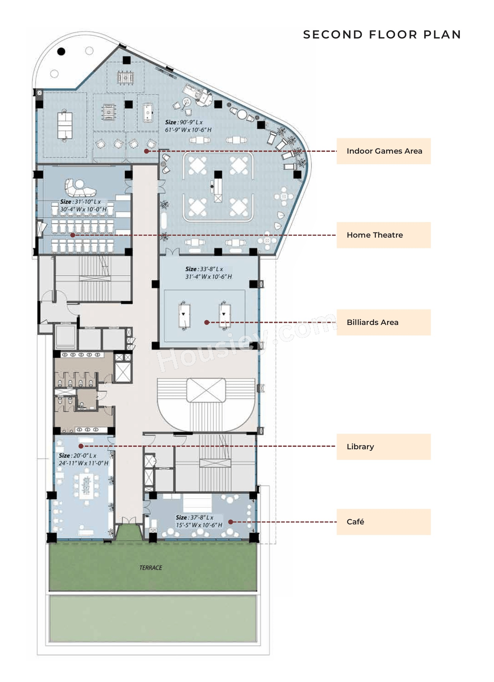
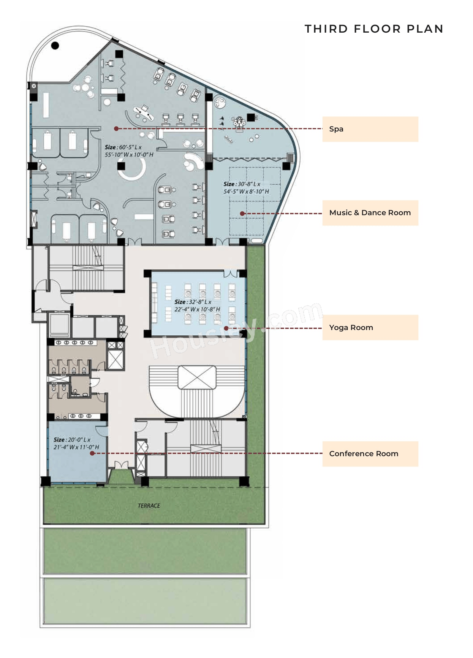
Master & Floor Plan
Godrej Regal Pavilion Pricing & Unit Plans
Godrej Regal Pavilion QR Codes
Payment Scheme
Project approved by




































