Last updated: May 1, 2026


Land Parcel
Towers
Floors
Config
Carpet Area
RERA NO.
Possession Status
Target Possession
RERA Possession
Litigation
Dhariwal Thirani Group Dahisar East Project Overview
DTG Avante Project will be constructed on 0.35 acre of land parcel, 1 tower with G+18 floors having 1 BHK, 2 BHK premium residences .
DTG Avante Location
Project is located Near SV Rd, Shiv Shakti Cmplx, Dahisar East, Mumbai with -
Ovari Pada Metro Station - 650m
Dahisar Railway Station - 650m
DMart - 3.1km
DTG Avante Dahisar East Project Amenities
First is Internal amenities -
Vitrified Tiles, Granite Platform, Aluminium sliding window, SS sink, Video Door Phone & many more
Dhariwal Thirani Group Dahisar East External Amenities
Project has 15+ amenities with likes of -
Gymnasium
Party Hall
Kids Play Area
Multipurpose Turf
Senior Citizen Corner & many more
Dhariwal Thirani Group Avante Dahisar East Parking -
Project has one type of car parking facility -
1) Tower Parking
DTG Avante Possession -
Rera Possession - July 2028
Target Possession - December 2027
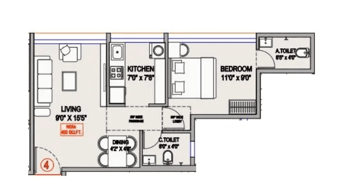
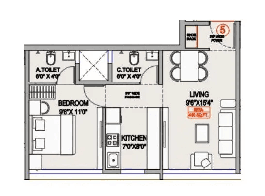
Carpet Area & Floor Plan
DTG Avante Dahisar East project has 1BHK, 2BHK premium residences with -
1BHK - (402 to 418) sqft
2BHK - ( 466 to 555) sqft
DTG Avante floor Plan
Tower floor plan will have 5 flats, 4 lifts & 1 Staircase on each floor
DTG Avante Mumbai Prices & its details can be found in the price section & DTG Avante Dahisar East brochure can be downloaded from the link mentioned below. Project has been praised by the home buyers & Dhariwal Thirani Group Dahisar East review is 4 out of 5 from over all the clients who have visited the site
Near SV Rd, Shiv Shakti Cmplx, Dahisar East, Mumbai

Pros
Cons
Video Door Phone
Vitrified Tiles
Granite Kitchen Platform
Stainless Steel Sink
Kids Play Area
Senior Citizen Area
Yoga Zone
Meditation Zone
Seating Area
Gazebo
Indoor games
party lawn
Gymnasium
Walking Track
Multi purpose hall


| Carpet Area | All Inc. Price (Inc. of Taxes & Charges) | Min Downpayment (Inc. Taxes) | Parking | Unit Plan |
|---|---|---|---|---|
402 sqft | 1.00 Cr All In | 15.00 Lacs | 10 Lacs | ![]() |
410 sqft | 1.01 Cr All In | 15.00 Lacs | 10 Lacs | ![]() |
418 sqft | 1.03 Cr All In | 15.00 Lacs | 10 Lacs | ![]() |

Is there any litigation against this proposed project:
NoDhariwal Thirani Group

2 CitiesLocations
Mumbai City, Mumbai suburban





310 - 537 sqft
Je and Vee Infrastructure
Developer

410 - 664 sqft
Shantee Group
Developer








Housiey Legal: Free Real Estate Legal Consultation
Get Expert Advice on RERA, Builder Refunds, Area Mismatch, Stuck Projects & More - at No Cost!