Last updated: Mar 23, 2026














Land Parcel
Towers
Floors
Config
Carpet Area
RERA NO.
Possession Status
Target Possession
RERA Possession
Litigation
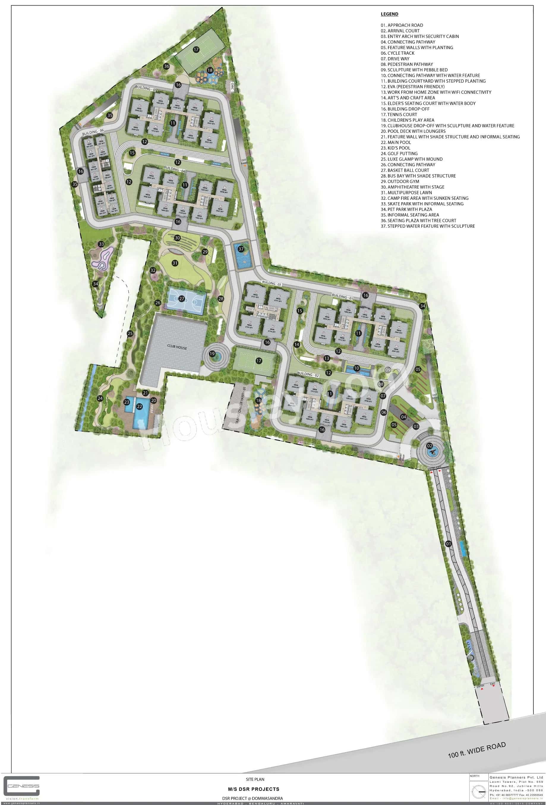
DSR Dommasandra Project Overview
DSR The Address will be constructed on 13.67 Acres of land parcel, 6 Towers with 3B+G+12/30 floors having 2BHK, 2.5BHK, 3BHK, 4BHK premium residences.
DSR The Address location
Project is located On Varthur - Sarjapur Road, Kachamaranahalli, Dommasandra, Bangalore with -
The International School Bangalore - 140m
International School of Management Excellence - 2.1km
DMart Sarjapur - 5.2km
DSR The Address Dommasandra Project Amenities
First is Internal amenities -
Vitrified tiles, Branded Fittings, Granite Kitchen, SS Sink, Power backup, CCTV & many more
DSR Group Dommasandra External Amenities
Project has 35+ luxurious amenities with likes of -
Clubhouse
Fully-equipped gym
Temperature Regulated Swimming Pool
Indoor Badminton Court & Many more.
DSR Group The Address Dommasandra Parking -
Project has one type of car parking facility
1) Basement
DSR The Address Possession -
Rera Possession - June 2029
Target Possession - December 2027
Built Up Area & Floor Plan
The Address project has 2BHK, 2.5BHK, 3BHK, 4BHK premium residences with -
2BHK - ( 1149 to 1283) sqft
2.5BHK - (1560 to 1608) sqft
3BHK - (1512 to 2049) sqft
4BHK - (2721 to 2735) sqft
DSR The Address Dommasandra floor plan
Tower floor plans will have 9 flats 6 lifts & 2 staircases on each floor
Maintenance -
DSR The Address Bangalore Project maintenance varies with the configuration and the carpet area which are as follows-
2BHK - Rs (4600 - 5100) per month
2.5BHK - Rs (6200 - 6400) per month
3BHK - Rs (6000 - 8200) per month
4BHK - Rs 10900 per month
DSR The Address Dommasandra project sample flat is ready to view at the site.
DSR The Address Prices & its details can be found in the price section & DSR The Address Dommasandra brochure can be downloaded from the link mentioned below. Project has been praised by the home buyers & DSR Group Dommasandra review is 4 out of 5 from over all the clients who have visited the site.
On Varthur - Sarjapur Road, Kachamaranahalli, Dommasandra, Bangalore
Pros
Cons
Vitrified Tiles
Granite Kitchen Platform
Stainless Steel Sink
Branded Fittings
CCTV Camera
Swimming Pool
Club House
Kids Play Area
Golf Course
Senior Citizen Area
Kids Pool
Outdoor Gym
Tennis Court
Skating Rink
Co Working Spaces
Green Space
Multi Purpose Lawn
Basketball Court
Amphitheater
Seating Area
+5 More







| Build-up Area | Carpet Area | All Inc. Price (Inc. of Taxes & Charges) | Min Downpayment (Inc. Taxes) | Parking | Unit Plan |
|---|---|---|---|---|---|
1149 sqft | 746 sqft | 1.26 Cr All In | 13.00 Lacs | 1 | ![]() |
1283 sqft | 833 sqft | 1.40 Cr All In | 14.00 Lacs | 1 | ![]() |

Is there any litigation against this proposed project:
NoDSR The Address Commencement Certificate
DSR The Address Legal Title Report
DSR The Address Layout Plan
Note: You can download more detailed documents by following this link

2400 - 2400 sqft
Diamond Developers
Developer
1045 - 1720 sqft
Khatushyam Builder and Developer
Developer
Housiey Legal: Free Real Estate Legal Consultation
Get Expert Advice on RERA, Builder Refunds, Area Mismatch, Stuck Projects & More - at No Cost!