







Land Parcel
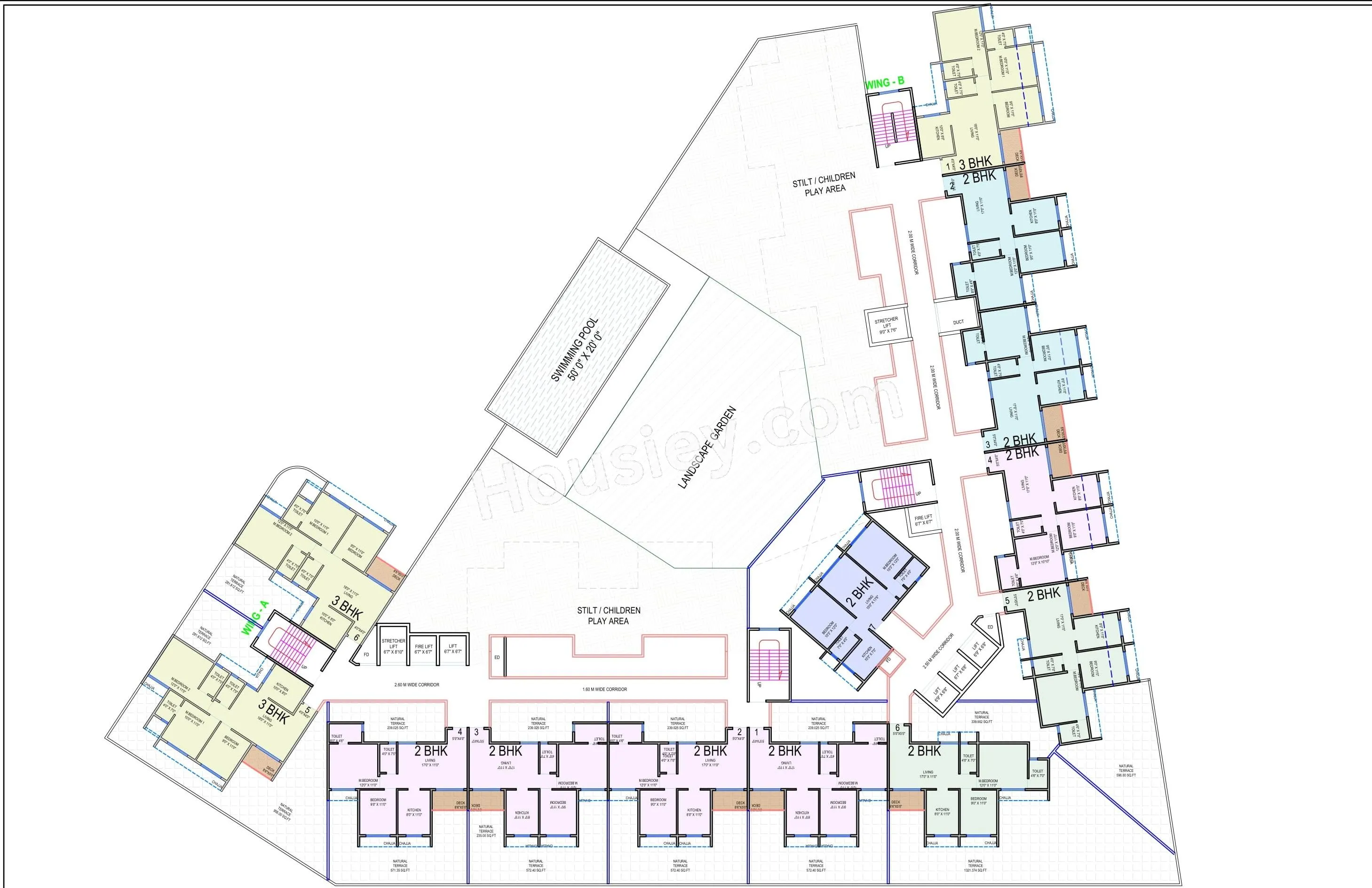
Towers
Floors
Config
Carpet Area
RERA NO.
Possession Status
Target Possession
RERA Possession
Litigation
Delta Ulwe Project Overview
Delta Palacio Project will be constructed on 1.5 acres of land parcel, 2 tower with B2+G+13 floors having, 2 BHK, 3 BHK premium residences .
Delta Palacio Ulwe location
Project is located Sector 26 , plot no.09, Ulwe, Navi Mumbai with -
Sau. Shakuntala Ramsheth Thakur School - 600m
Bamandongri Railway Station - 1.3km
Reliance Digital - 1.3km
Delta Palacio Ulwe Project Amenities
First is Internal amenities -
Vitrified Tiles, Granite Kitchen, Stainless Steel Sink, CCTV, Fire Fighter & many more
Delta Group Ulwe External Amenities
Project has 20+ amenities with likes of -
Swimming Pool
Children's Play Area
Gymnasium
Garden
Sit-Out Area & Many More
Delta Group Palacio Ulwe Parking -
Project has one type of car parking facility -
1) Basement
Delta Palacio Possession -
Rera Possession - July 2027
Target Possession - July 2026
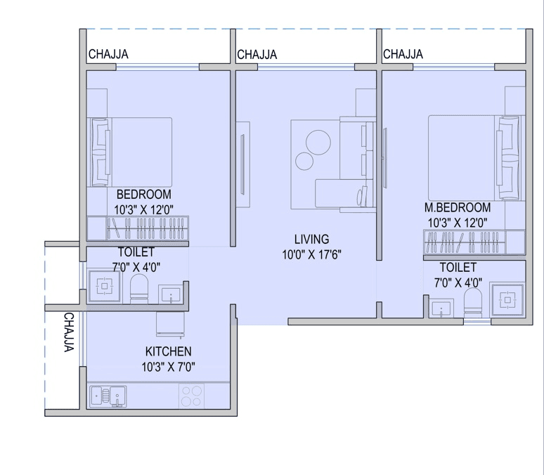
Carpet Area & Floor Plan
Palacio project has 2BHK, 3BHK premium residences with -
2BHK - 617 sqft
3BHK - 789 sqft
Delta Palacio floor plan
Tower floor plan will have 7 flats 3 lifts & 2 staircases on each floor
Maintenance -
Delta Palacio Navi Mumbai Project maintenance varies with the configuration and the carpet area which are as follows-
2BHK - Rs 1800 per month
3BHK - Rs 2300 per month
Palacio Ulwe project sample flat is ready to view at the site.
Palacio Prices & its details can be found in the price section & Delta Palacio Ulwe brochure can be downloaded from the link mentioned below. Project has been praised by the home buyers & Delta Group Ulwe review is 4 out of 5 from over all the clients who have visited the site.
Sector 26 , plot no.09, Ulwe, Navi Mumbai

Pros
Cons
Vitrified Tiles
Stainless Steel Sink
CCTV Camera
Fire Fighting
Swimming Pool
Kids Play Area
Garden
Entrance Gate
Gymnasium





| Carpet Area | All Inc. Price (Inc. of Taxes & Charges) | Min Downpayment (Inc. Taxes) | Parking | Unit Plan |
|---|---|---|---|---|
617 sqftLimited | 1.44 Cr All In | 21.00 Lacs | 5 lacs | ![]() |

Is there any litigation against this proposed project:
NoDelta Palacio Proforma Sale Agreement
Delta Palacio Proforma Allotment Letter
Delta Palacio Building Plan/Layout Plan Approval
Note: You can download more detailed documents by following this link
Delta Group

2 CitiesLocations
Mumbai City, Mumbai suburban

435 - 672 sqft
Bhaveshwar Constructions
Developer

474 - 770 sqft
Shreeji Lifespaces Group
Developer




Housiey Legal: Free Real Estate Legal Consultation
Get Expert Advice on RERA, Builder Refunds, Area Mismatch, Stuck Projects & More - at No Cost!