

Land Parcel
Towers
Floors
Config
Carpet Area
RERA NO.
Possession Status
Target Possession
RERA Possession
Litigation
Delta Ulwe Project Overview
Delta Flora will be constructed on 1.11 acres of land parcel, 1 tower with B+G+11 floors having 1BHK, 2BHK premium residences.
Delta Flora location
Project is located Plot No. 105 Sector No. 08 Pushpak Nagar, Ulwe, Navi Mumbai with -
Chaya Resorts - 2.8km
Mahatma Phule Arts Science and Commerce College - 3.7km
Reliance Smart - 4.7km
Delta Flora Ulwe Project Amenities
First is Internal amenities -
Vitrified Tile, Granite Kitchen, stainless steel sink, Brand Fitting & many more
Delta Group Ulwe External Amenities
Project has 10+ luxurious amenities with likes of -
Swimming Pool
Gymnasium
Kids Play Area
Outdoor Game
Jogging Track & Many More
Delta Group Flora Ulwe Parking -
Project has two type of car parking facility i.a
1) Basement
2) Ground
Delta Flora Possession -
Rera Possession - December 2028
Target Possession - December 2027
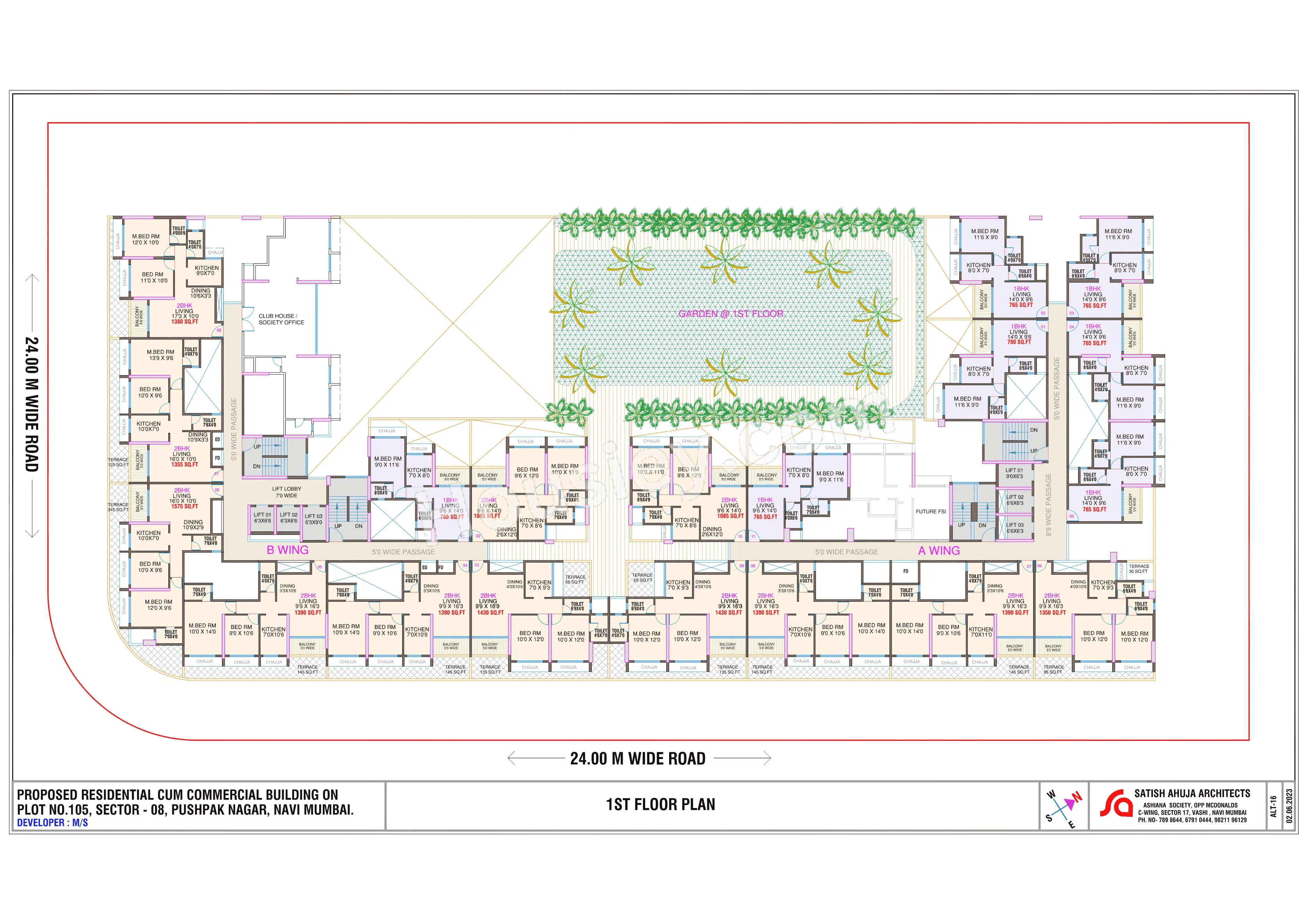
Carpet Area & Floor Plan
Flora project has 1BHK, 2BHK premium residences with -
1BHK - (460 to 470) sqft
2BHK - (650 to 750) sqft
Delta Flora floor plan
Tower floor plan will have 11 flats 3 lifts & 2 staircase on each floor
Maintenance -
Delta Flora Navi Mumbai Project maintenance varies with the configuration and the carpet area which are as follows-
1BHK - Rs (2300 - 2500) per month
2BHK - Rs (3200 - 3700) per month
Delta Flora Ulwe project sample flat is ready to view at the site.
Delta Flora project sample flat is ready to view at the site Flora Prices & its details can be found in the price section & Delta Flora brochure can be downloaded from the link mentioned below. Project has been praised by the home buyers & Delta Group Ulwe review is 4 out of 5 from over all the clients who have visited the site.
Plot No. 105 Sector No. 08 Pushpak Nagar, Ulwe, Navi Mumbai
Pros
Cons
Vitrified Tiles
Granite Kitchen Platform
Stainless Steel Sink
Swimming Pool
Kids Play Area
Jogging Track
Seating Area
Creche Play Area
Gymnasium






| Carpet Area | All Inc. Price (Inc. of Taxes & Charges) | Min Downpayment (Inc. Taxes) | Parking | Unit Plan |
|---|---|---|---|---|
460 sqft | 66.00 Lacs All In | 10.00 Lacs | 4 | ![]() |
470 sqft | 70.00 Lacs All In | 11.00 Lacs | 4 | ![]() |

Is there any litigation against this proposed project:
NoDelta Flora Proforma Sale Agreement
Delta Flora Proforma Allotment Letter
Delta Flora Layout Plan
Note: You can download more detailed documents by following this link
Delta Group

2 CitiesLocations
Mumbai City, Mumbai suburban

435 - 672 sqft
Bhaveshwar Constructions
Developer

474 - 770 sqft
Shreeji Lifespaces Group
Developer




Housiey Legal: Free Real Estate Legal Consultation
Get Expert Advice on RERA, Builder Refunds, Area Mismatch, Stuck Projects & More - at No Cost!