Last updated: Mar 14, 2026








Land Parcel
Towers
Floors
Config
Carpet Area
RERA NO.
Possession Status
Target Possession
RERA Possession
Litigation
Choice Ghatkopar East Project Overview
Choice Ambe Shraddha will be constructed on 0.21 Acre of land parcel, 1 Tower with 2B+G+16 floors having 1 BHK, 2 BHK, 3 BHK premium residences.
Choice Ambe Shraddha location
Project is Near Ambedkar Chowk, Pant Nagar, Ghatkopar East, Mumbai with -
Ghatkopar Railway Stn - 800m
R Odeon Mall - 900m
Eastren Express Hwy - 2.3km
Choice Ambe Shraddha Ghatkopar East Project Amenities
First is Internal amenities -
Modular kitchen, Granite Kitchen, Stainless steel sink, Vitrified tiles, CCTV & many more
Choice Developers Ghatkopar East Amenities
Project has 15+ amenities with likes of -
Gymnasium
Kids Play Area
Meditation
Jogging Track
Yoga Deck & Many More
Choice Developers Ambe Shraddha Ghatkopar East Parking -
Project has one type of car parking facility -
1) Basement
Choice Ambe Shraddha Possession -
Rera Possession - September 2028
Target Possession - March 2027
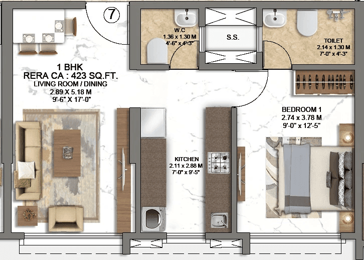
Carpet Area & Floor Plan
Ambe Shraddha project has 1BHK, 2BHK, 3BHK premium residences with -
1BHK - (423 - 433) sqft
2BHK - 632 sqft
3BHK - 1039 sqft
Choice Ambe Shraddha floor plan
Tower floor plan will have 8 flats 3 lifts & 1 staircase on each floors
Choice Ambe Shraddha Mumbai Prices & its details can be found in the price section & Choice Ambe Shraddha Ghatkopar East brochure can be downloaded from the link mentioned below. Project has been praised by the home buyers & Choice Developers Ghatkopar East review is 4 out of 5 from over all the clients who have visited the site.
Near Ambedkar Chowk, Pant Nagar, Ghatkopar East, Mumbai
Pros
Cons
Vitrified Tiles
Granite Kitchen Platform
Stainless Steel Sink
CCTV Camera
Modular Kitchen
Kids Play Area
Jogging Track
Roof Top Sky Garden
Yoga Zone
Meditation Zone
Gymnasium
Terrace Garden


| Carpet Area | All Inc. Price (Inc. of Taxes & Charges) | Min Downpayment (Inc. Taxes) | Parking | Unit Plan |
|---|---|---|---|---|
410 sqft | 1.10 Cr All In | 16.00 Lacs | 10 lacs | ![]() |
423 sqft | 1.05 Cr All In | 16.00 Lacs | 10 lacs | ![]() |
433 sqft | 1.15 Cr All In | 17.00 Lacs | 10 lacs | ![]() |

Is there any litigation against this proposed project:
NoChoice Ambe Shraddha Proforma Sale Agreement
Choice Ambe Shraddha Proforma Allotment Letter
Choice Ambe Shraddha Layout Plan
Note: You can download more detailed documents by following this link
Choice Developers

1 CityLocations
Mumbai suburban
















828 - 1533 sqft
Arihant Realtors
Developer




Housiey Legal: Free Real Estate Legal Consultation
Get Expert Advice on RERA, Builder Refunds, Area Mismatch, Stuck Projects & More - at No Cost!