










Land Parcel
Towers
Floors
Config
Carpet Area
RERA NO.
Possession Status
Target Possession
RERA Possession
Litigation
Adhiraj Constructions Pvt Ltd Kharghar Project Overview
Adhiraj Capital City Project will be constructed on 40 acre of land parcel, 10 tower with B+G+2P+54 floors having 2 BHK, 3 BHK premium residences .
Adhiraj Capital City Kharghar location
Project is located Off National Highway 48, Rohinjan , Sector 37, Kharghar, Navi Mumbai -
Amandoot Metro Station - 1.9km
Taloja Panchnand Metro Station - 2.2km
Tata Memorial Hospital - 4km
Adhiraj Capital City Kharghar Project Amenities
First is Internal amenities -
Vitrified Tiles, Stainless Steel Sink, CCTV, Fire Fighter & many more
Adhiraj Constructions Pvt Ltd Kharghar External Amenities
Project has 30+ amenities with likes of -
Club House
Swimming Pool
Indoor Game
Jogging Track
Cricket Ground & Many More
Adhiraj Constructions Pvt Ltd Adhiraj Capital City Kharghar Parking -
Project has two type of car parking facility -
1) Basement
2) Podium
Adhiraj Capital City Possession -
Rera Possession - December 2028
Target Possession - November 2025
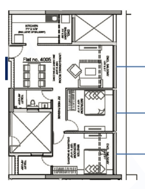
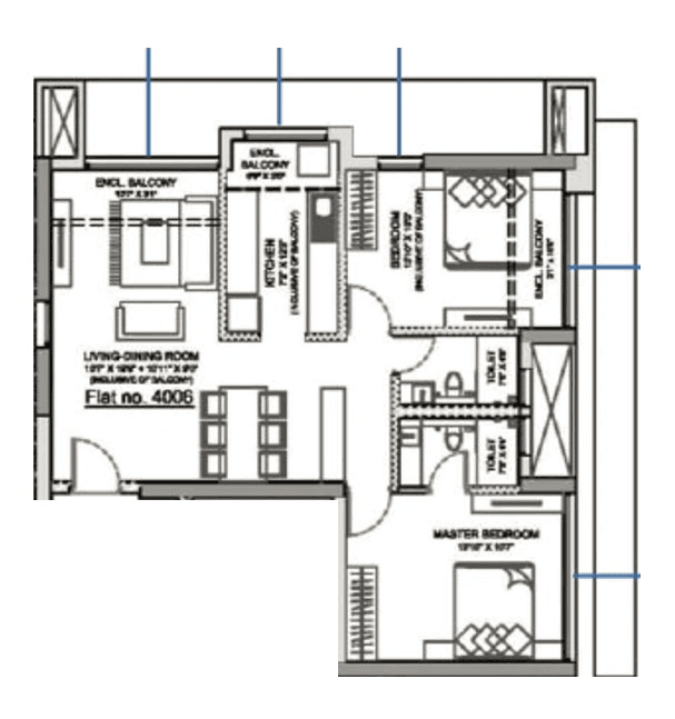
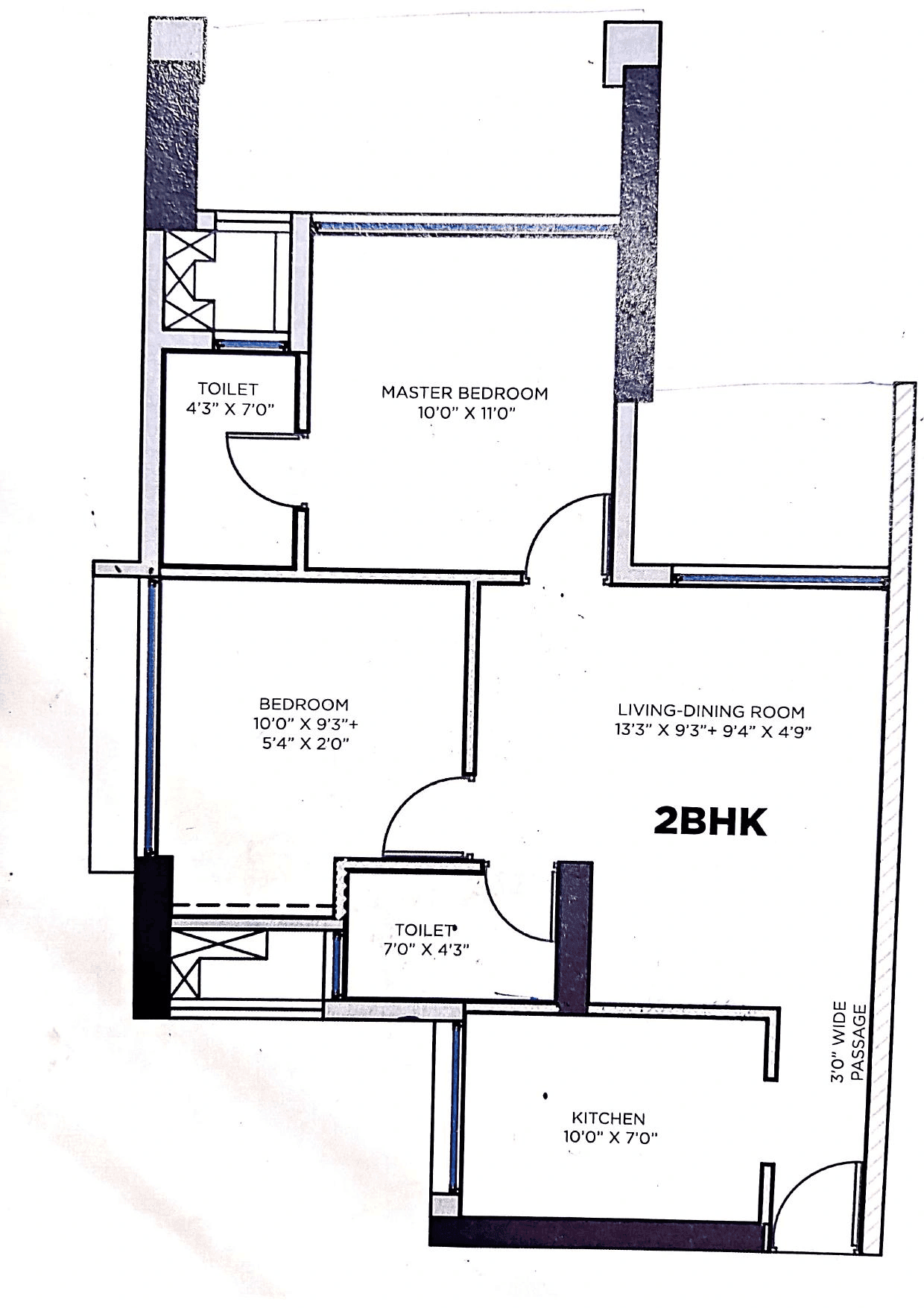
Carpet Area & Floor Plan
Adhiraj Capital City project has 2 BHK, 3 BHK premium residences with -
2BHK - (632 to 769) sqft
3BHK - 1206 sqft
Adhiraj Capital City floor plan
Tower floor plan will have 11 flats 4 lifts & 2 staircases on each floor
Maintenance -
Adhiraj Capital City Navi Mumbai Project maintenance varies with the configuration and the carpet area which are as follows-
2BHK - Rs (3800 - 4600) per month
3BHK - Rs 7200 per month
Capital City Kharghar project sample flat is ready to view at the site.
Capital City Prices & its details can be found in the price section & Adhiraj Capital City Kharghar brochure can be downloaded from the link mentioned below. Project has been praised by the home buyers & Adhiraj Constructions Pvt Ltd Kharghar review is 4 out of 5 from over all the clients who have visited the site.
Off National Highway 48, Sector 37, Kharghar, Navi Mumbai

Pros
Cons
Vitrified Tiles
Stainless Steel Sink
CCTV Camera
Fire Fighting
Swimming Pool
Club House
Kids Play Area
Jogging Track
Garden
Senior Citizen Area
Co Working Spaces
Cricket Pitch
Library
Yoga Zone
Meditation Zone
Toddlers Play Area
Seating Area
Wine & Cigar Lounge
Acupressure Pathway
+9 More






| Carpet Area | All Inc. Price (Inc. of Taxes & Charges) | Min Downpayment (Inc. Taxes) | Parking | Unit Plan |
|---|---|---|---|---|
632 sqft | 1.25 Cr All In | 19.00 Lacs | 1 | ![]() |
682 sqft | 1.30 Cr All In | 20.00 Lacs | 1 | ![]() |
769 sqft | 1.70 Cr All In | 26.00 Lacs | 1 | ![]() |

Is there any litigation against this proposed project:
Yes| Court Name | City | Case Type | Petition | Case Number | Year | Case Status |
|---|---|---|---|---|---|---|
| Senior Division Panvel | Panvel | Civil | Suit | 653 | 2007 | Ongoing |
| Senior Division Panvel | Panvel | Civil | Suit | 75 | 2014 | Ongoing |
| Senior Division Panvel | Panvel | Civil | Suit | 459 | 2021 | Closed |
| Senior Division Panvel | Civil | Suit | 5 | 2022 | ||
| Jt Civil Judge J D and J M F C Panvel | Panvel | Civil | Suit | 5 | 2022 | Ongoing |
Adhiraj Capital City Proforma Sale Agreement
Adhiraj Capital City Layout Plan
Adhiraj Capital City Legal Title Report
Note: You can download more detailed documents by following this link
Adhiraj constructions

2 CitiesLocations
Mumbai City, Mumbai suburban

404 - 678 sqft
Satyam Developers
Developer




406 - 856 sqft
Satyam Developers
Developer

509 - 1139 sqft
Arihant Superstructures
Developer









424 - 602 sqft
Mahaavir Superstructures
Developer


Housiey Legal: Free Real Estate Legal Consultation
Get Expert Advice on RERA, Builder Refunds, Area Mismatch, Stuck Projects & More - at No Cost!