


Land Parcel
Towers
Floors
Config
Carpet Area
RERA NO.
Possession Status
Target Possession
RERA Possession
Litigation
Adarsh Bellandur Project Overview
Adarsh Rosewood will be constructed on 1.85 Acres of land parcel, 1 Tower with B+G+4 floors having 2BHK & 3 BHK premium residences.
Adarsh Rosewood location
Project is located Off Ambalipura - Sarjapur road, Doddakannelli Rd, Bellandur, Bengaluru with -
Ambalipura - Sarjapur road - 1.5km
Dmart Sarjapur - 2.5Km
Decathlon Sarjapur - 3.3km
Adarsh Rosewood Bellandur Project Amenities
First is Internal amenities -
Vitrified tiles, Branded Fittings, Granite Kitchen, SS Sink, Power backup, CCTV & many more
Adarsh Group Bellandur External Amenities
Project has 30+ luxurious amenities with likes of -
Multipurpose hall
Gymnasium
Swimming pool
Kid's play area
Indoor games & Many more.
Adarsh Group Rosewood Bellandur Parking -
Project has one type of car parking facility i.e
Basement
Adarsh Rosewood Possession -
Rera Possession - December 2027
Target Possession - December 2027
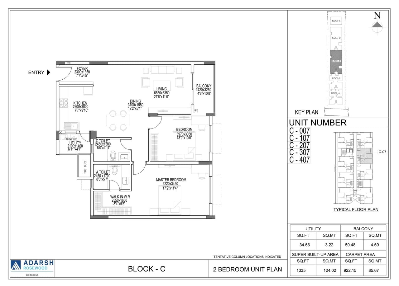
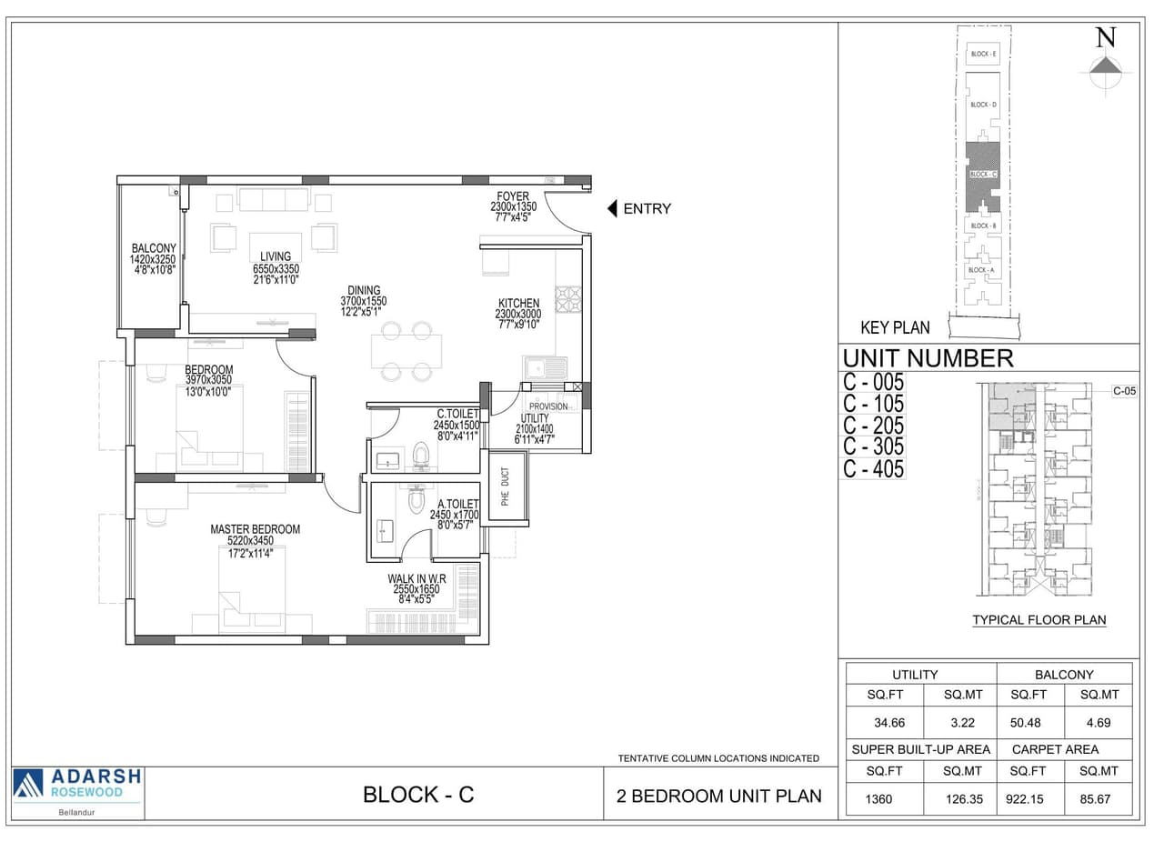
Built Up Area & Floor Plan
Rosewood project has 2BHK, 3BHK premium residences with -
2BHK- (1335 to 1360) sqft
3BHK - (1800 to 1900) sqft
Adarsh Rosewood Bellandur floor plan
Tower floor plans will have 4 flats 2 lifts & 1 staircases on each floor
Maintenance -
Adarsh Rosewood Bangalore Project maintenance varies with the configuration and the carpet area which are as follows-
2BHK - Rs (5340 - 5440) per month
3BHK - Rs (7200 - 7600) per month
Rosewood Prices & its details can be found in the price section & Adarsh Rosewood Bellandur brochure can be downloaded from the link mentioned below. Project has been praised by the home buyers & Adarsh Group Bellandur review is 4 out of 5 from over all the clients who have visited the site.
Off Ambalipura - Sarjapur road, Doddakannelli Rd, Bellandur, Bengaluru

Pros
Cons
1
Vitrified Tiles
Granite Kitchen Platform
Stainless Steel Sink
Branded Fittings
CCTV Camera
Swimming Pool
Club House
Garden
Multi Purpose Court
Outdoor Gym
Net Cricket
Cricket Pitch
Outdoor Chess
Cycle Station
Pet Park
party lawn
Yoga Deck
Open Air Cinema





| Build-up Area | Carpet Area | All Inc. Price (Inc. of Taxes & Charges) | Min Downpayment (Inc. Taxes) | Parking | Unit Plan |
|---|---|---|---|---|---|
1335 sqft | 921 sqft | 1.92 Cr All In | 19.00 Lacs | 1 | ![]() |
1360 sqft | 938 sqft | 2.10 Cr All In | 21.00 Lacs | 1 | ![]() |

Is there any litigation against this proposed project:
NoAdarsh Rosewood Commencement Certificate
Adarsh Rosewood Legal Title Report
Adarsh Rosewood Building Plan / Layout Plan Approval
Note: You can download more detailed documents by following this link
Adarsh Group

2 CitiesLocations
Bangalore Rural, Bangalore Urban




1667 - 1667 sqft
Saiven Developers
Developer


Housiey Legal: Free Real Estate Legal Consultation
Get Expert Advice on RERA, Builder Refunds, Area Mismatch, Stuck Projects & More - at No Cost!