













Land Parcel
Towers
Floors
Config
Carpet Area
RERA NO.
Possession Status
Target Possession
RERA Possession
Litigation
Vilas Javdekar Baner Project Overview
Vilas Javdekar Portia Grande will be constructed on 2 acres of land parcel, 2 towers with B+G+P+33 floors having 4.5 BHK premium residences.
Vilas Javdekar Portia Grande location
Project is located Near Old Baner - Balewadi Road, Laxmi Nagar, Baner, Pune with -
Baner Road - 1.6km
D-Mart Baner - 2.8km
Mumbai-Bangalore Highway - 3.3km
Vilas Javdekar Portia Grande Baner Project Amenities
First is Internal amenities -
Vitrified Tiles, Granite Kitchen, Italian Marble, Earthquake Resistant RCC frame structure, Modular Kitchen with Hop, Digital Door Lock, Video Door Phone & many more
Vilas Javdekar Developers Baner External Amenities
Project has 50+ luxurious amenities with likes of -
Multipurpose play court
Skating Rink
Covered swimming pool
Gymnasium
Kids Play area & Many More
Vilas Javdekar Developers Portia Grande Baner Parking -
Project has one type of car parking facility i.a Basement
Vilas Javdekar Portia Grande Possession -
Rera Possession - December 2027
Target Possession - December 2026
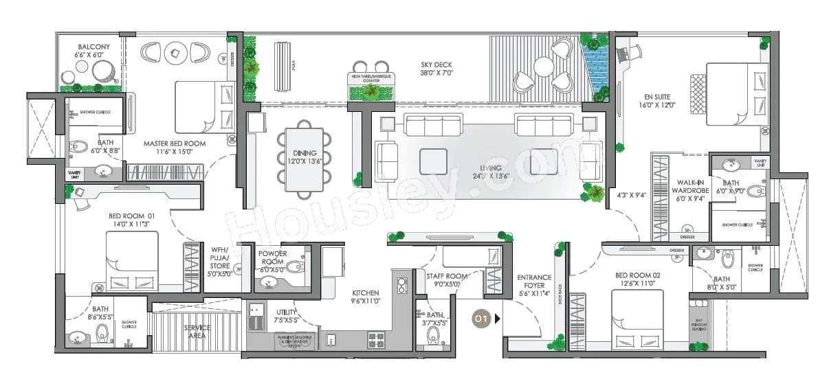
Carpet Area & Floor Plan
Vilas Javdekar Portia Grande Baner project has 4.5BHK premium residences with -
4.5BHK - 2245 sqft
Vilas Javdekar Portia Grande floor plan
Tower floor plan will have 2 flats 3 lifts & 2 staircases on each floor
Maintenance -
Vilas Javdekar Portia Grande Pune Project maintenance varies with the configuration and the carpet area which are as follows-
4.5BHK - 27700 per month
Portia Grande Baner project sample flat is ready to view at the site.
Portia Grande price & its details can be found in the price section & Vilas Javdekar Portia Grande Baner brochure can be downloaded from the link mentioned below. Project has been praised by the home buyers & Vilas Javdekar Developers Baner review is 4 out of 5 from over all the clients who have visited the site.
Near Old Baner - Balewadi Road, Laxmi Nagar, Baner, Pune


Pros
Cons
Digital Lock
Video Door Phone
Vitrified Tiles
Granite Kitchen Platform
Italian Marble
Modular Kitchen
Swimming Pool
Kids Play Area
Multi Purpose Court
Cardio Studio Gym
Table Tennis
Indoor games
Yoga Deck
Skating Ring
Gymnasium



| Carpet Area | All Inc. Price (Inc. of Taxes & Charges) | Min Downpayment (Inc. Taxes) | Parking | Unit Plan |
|---|---|---|---|---|
2245 sqftSold Out | ![]() | - | - | ![]() |


Is there any litigation against this proposed project:
NoVilas Javdekar Developers

1 CityLocations
Pune


1140 - 1841 sqft
Majestique Landmarks
Developer






1434 - 1434 sqft
Sukhwani Associates
Developer
350 - 1189 sqft
Kalpataru Group
Developer

1136 - 1733 sqft
Kolte Patil Developers
Developer
934 - 1460 sqft
Bluepearl Group
Developer


1343 - 1949 sqft
Space Builders Group
Developer




Housiey Legal: Free Real Estate Legal Consultation
Get Expert Advice on RERA, Builder Refunds, Area Mismatch, Stuck Projects & More - at No Cost!