Last updated: Mar 29, 2026











Land Parcel
Towers
Floors
Config
Carpet Area
RERA NO.
Possession Status
Target Possession
RERA Possession
Litigation
Techton Vasai East Project Overview
Techton Akhand will be constructed on 2.50 acres of land parcel, 9 towers with G+2P+22/33 floors having 1 BHK, 2 BHK, 3 BHK premium residences.
Techton Akhand location
Project is located Near Veer Savarkar Road, Vasai East, Mumbai with -
D-Mart- 3.1km
Golani Naka - 3.7km
Vasai Railway Station Road - 4.1km
Techton Akhand Vasai East Project Amenities
First is Internal amenities -
Vitrified tiles, Granite Kitchen, Anti skid tile, SS Sink & many more
Techton Lifespaces Vasai East External Amenities
Project has 25+ luxurious amenities with likes of -
Swimming Pool
Kid's pool
Gymnasium
Events Lawn
BBQ Plaza & Many More
Techton Lifespaces Akhand Vasai East Parking -
Project has one type of car parking facility.
1) Podium
Techton Akhand Possession -
Rera Possession - December 2027
Target Possession - December 2026
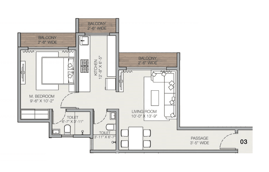
Carpet Area & Floor Plan
Akhand project has 1BHK, 2BHK, 3BHK premium residences with -
1BHK - (460 to 528) sqft
2BHK - (710 to 740) sqft
3BHK - (1030 to 1052) sqft
Maintenance -
Techton Akhand Vasai East Project maintenance varies with the configuration and the carpet area which are as follows-
1BHK - Rs (1800 - 2100) per month
2BHK - Rs (2800 - 3000) per month
3BHK - Rs 4100 per month
Akhand project sample flat is ready to view at the site.
Akhand price & its details can be found in the price section & Techton Akhand brochure can be downloaded from the link mentioned below. Project has been praised by the home buyers & Techton Lifespaces Vasai East review is 4 out of 5 from over all the clients who have visited the site.
Near Veer Savarkar Road, Vasai East, Mumbai

Pros
Cons
Vitrified Tiles
Granite Kitchen Platform
Stainless Steel Sink
Swimming Pool
Jogging Track
Multi Purpose Court
Senior Citizen Area
Kids Pool
Meditation Zone
Banquet Hall
Pool deck
BBQ Lawn
Indoor games
Gymnasium
Mini Theatre




| Carpet Area | All Inc. Price (Inc. of Taxes & Charges) | Min Downpayment (Inc. Taxes) | Parking | Unit Plan |
|---|---|---|---|---|
467 sqft | 45.68 Lacs All In | 7.00 Lacs | 5 lacs | ![]() |
468 sqft | 45.87 Lacs All In | 7.00 Lacs | 5 lacs | ![]() |
506 sqft | 49.39 Lacs All In | 7.00 Lacs | 5 lacs | ![]() |
522 sqft | 53.33 Lacs All In | 8.00 Lacs | 5 lacs | ![]() |
528 sqft | 54.33 Lacs All In | 8.00 Lacs | 5 lacs | ![]() |
460 sqft | 53.36 Lacs All In | 8.00 Lacs | 5 lacs | ![]() |
515 sqft | 59.71 Lacs All In | 9.00 Lacs | 5 lacs | ![]() |

Is there any litigation against this proposed project:
NoTechton Lifespaces

2 CitiesLocations
Mumbai suburban, Mumbai City



375 - 520 sqft
Suraksha Smart City
Developer
455 - 892 sqft
Imperial Lifestyle
Developer



475 - 484 sqft
Shree Krishna Construction
Developer






460 - 655 sqft
Skyland Structures
Developer
260 - 585 sqft
Shantee Group
Developer


Housiey Legal: Free Real Estate Legal Consultation
Get Expert Advice on RERA, Builder Refunds, Area Mismatch, Stuck Projects & More - at No Cost!