Last updated: Apr 9, 2026





Land Parcel
Towers
Floors
Config
Carpet Area
RERA NO.
Possession Status
Target Possession
RERA Possession
Litigation
Swamiraj Vartak Nagar Project Overview
Swamiraj Sky 2.0 will be constructed on 0.5 acre of land parcel, 1 tower with G+29 floors having 2 BHK premium residences.
Swamiraj Sky 2.0 location
Project is located Near Pokhran Rd 1, Mhadha Colony, Vartak Ngr, Thane with -
Viviana Mall - 1.9km
Jupiter Hospital - 2km
Thane Railway Station - 4km
Swamiraj Sky 2.0 Vartak Nagar Amenities
First is Internal amenities -
Vitrified Flooring, Internal walls finished gypsum, CP Fittings, Video door & many more
House of Swamiraj Vartak Nagar External Amenities
Project has 10+ luxurious amenities with likes of -
Swimming Pool
Gymnasium
Kids Play Area
Yoga Zone & Many More
House of Swamiraj Sky 2.0 Vartak Nagar Parking -
Project has one type of car parking facility:
1) Separate Tower
Swamiraj Sky 2.0 Possession -
Rera Possession - December 2028
Target Possession - December 2028
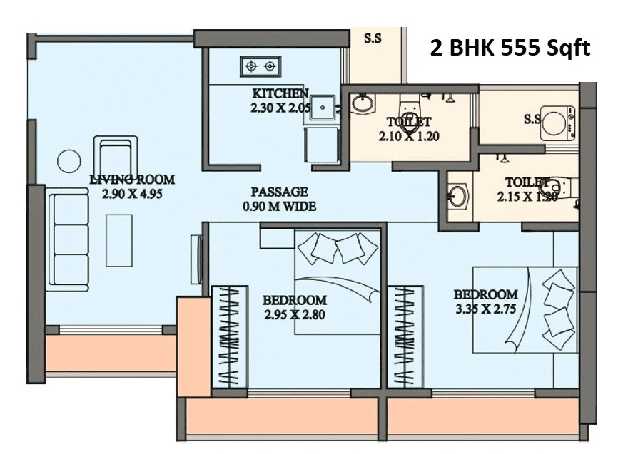
Carpet Area & Floor Plan
Swamiraj Sky 2.0 Vartak Nagar project has 2BHK premium residences with -
2BHK - (555 to 620) sqft
Swamiraj Sky 2.0 floor plan
Tower floor plan will have 4 flats 3 lifts & 2 staircases on each floor
Maintenance -
Swamiraj Sky 2.0 Thane Project maintenance varies with the configuration and the carpet area which are as follows-
2BHK - Rs (4400 - 5000) per month
Swamiraj Sky 2.0 Vartak Nagar project sample flat is ready to view at the site.
Sky 2.0 price & its details can be found in the price section & Swamiraj Sky 2.0 Vartak Nagar brochure can be downloaded from the link mentioned below. Project has been praised by the home buyers & House of Swamiraj review is 4 out of 5 from over all the clients who have visited the site.
Near Pokhran Rd 1, Mhada Colony, Vartak Ngr, Thane
Pros
Cons
Video Door Phone
Vitrified Tiles
Swimming Pool
Kids Play Area
Indoor Gym
Senior Citizen Area
Yoga Zone
Meditation Zone
Seating Area
Indoor games
Gymnasium
Mini Theatre





| Carpet Area | All Inc. Price (Inc. of Taxes & Charges) | Min Downpayment (Inc. Taxes) | Parking | Unit Plan |
|---|---|---|---|---|
555 sqft | 1.10 Cr All In | 17.00 Lacs | 1 | ![]() |
620 sqft | 1.20 Cr All In | 18.00 Lacs | 1 | ![]() |

Is there any litigation against this proposed project:
NoHouse Of Swamiraj

2 CitiesLocations
Mumbai City, Mumbai suburban




Housiey Legal: Free Real Estate Legal Consultation
Get Expert Advice on RERA, Builder Refunds, Area Mismatch, Stuck Projects & More - at No Cost!