











Land Parcel
Towers
Floors
Config
Carpet Area
RERA NO.
Possession Status
Target Possession
RERA Possession
Litigation
Sukhwani Thergaon Project Overview
Sukhwani Kingsley will be constructed on 5.5 acres of land parcel, 10 tower with G+2P+20 floors having 2 BHK, 3 BHK, 4 BHK premium residences.
Sukhwani Kingsley location
Project is located Near Rahatani Link Road, Thergaon, Pune with -
Dange Chowk - 1.7km
D-Mart Thergaon - 2.5km
Mumbai-Bangalore Highway - 3.5km
Sukhwani Kingsley Thergaon Project Amenities
First is Internal amenities -
Vetrified tiles, Earthquake resistane, Granite Kitchen, Part safety grill, 3 track powder coated aluminium sliding window, MS railing, Digital lock, Aluminium sliding door, Earthquake resistance, Video security & many more
Sukhwani Associates Thergaon External Amenities
Project has 30+ luxurious amenities with likes of -
Badminton Court
Gymnasium
Amphitheater
Indoor Game Area
Swimming Pool & Many More
Sukhwani Associates Kingsley Thergaon Parking -
Project has one type of car parking facility i.a Ground
Sukhwani Kingsley Possession -
Rera Possession - December 2028
Target Possession - March 2026
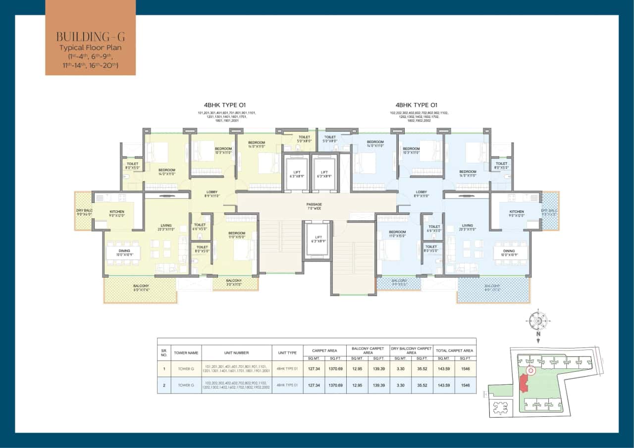
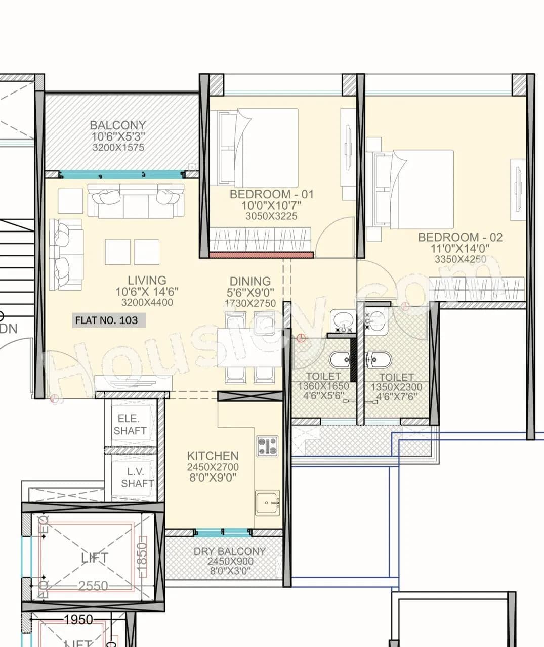
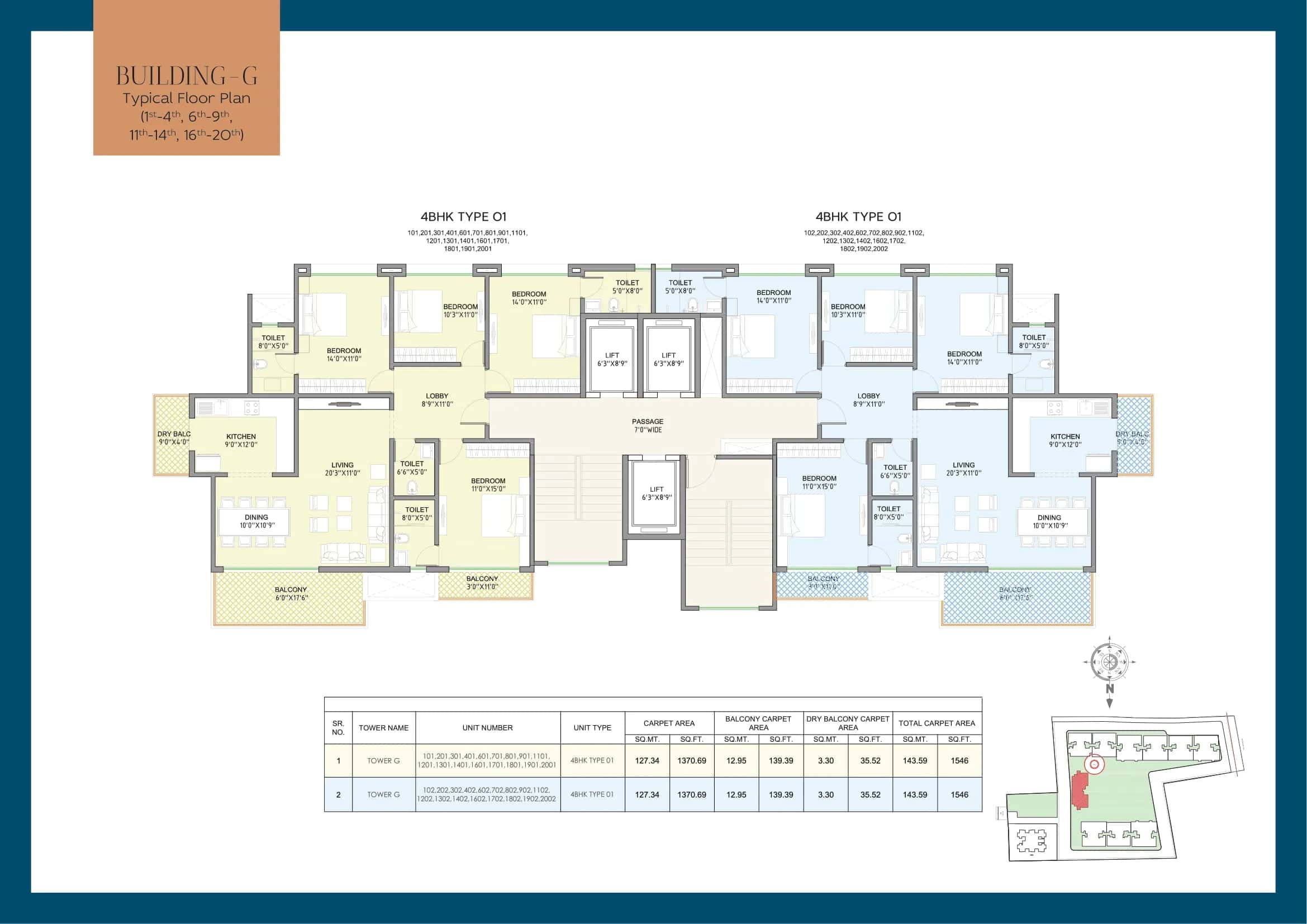
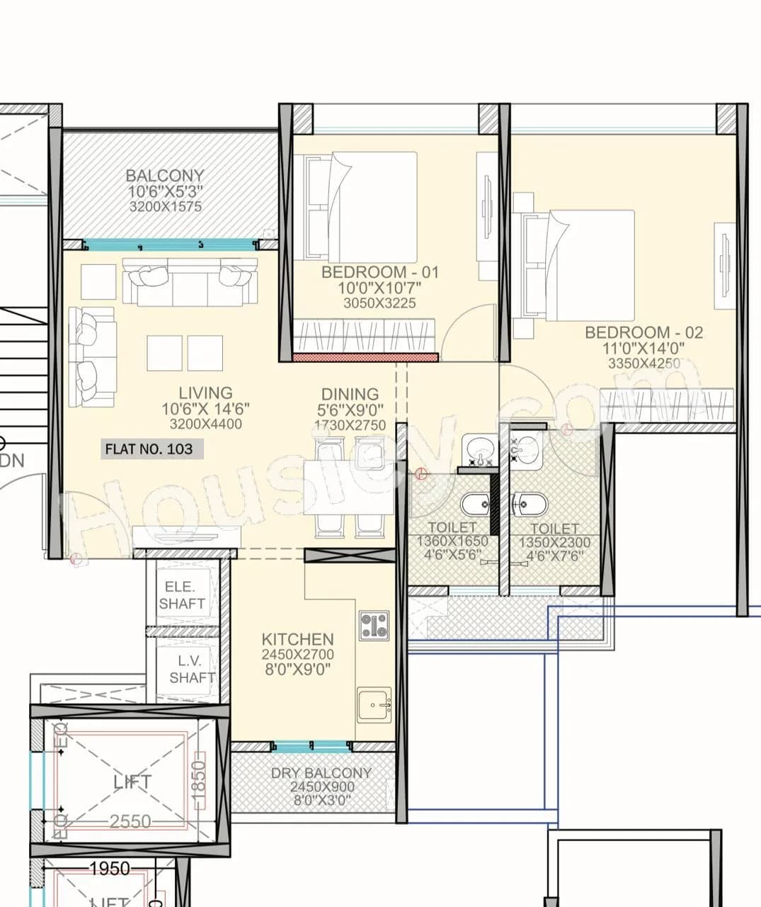
Carpet Area & Floor Plan
Kingsley project has 2BHK, 3BHK, 4BHK premium residences with -
2BHK - (737 to 785)sqft
3BHK - (909 to 994)sqft
4BHK - 1566 sqft
Sukhwani Kingsley floor plan
Tower floor plans will have 4 flats & 2 lift 2 staircases on each floor
Maintenance -
Sukhwani Kingsley Pune Project maintenance varies with the configuration and the carpet area which are as follows-
2BHK - Rs (3000 - 3500) per month
3BHK - Rs (3600 - 4000) per month
4BHK - Rs 6300 per month
Sukhwani Kingsley project sample flat is ready to view at the site.
Sukhwani Kingsley Prices & its details can be found in the price section & Sukhwani Kingsley brochure can be downloaded from the link mentioned below. Project has been praised by the home buyers & Sukhwani Associates Thergaon review is 4 out of 5 from over all the clients who have visited the site.
Near Rahatani Link Road, Thergaon, Pune

Pros
Cons
Digital Lock
Video Door Phone
Vitrified Tiles
Granite Kitchen Platform
Safety Doors
CCTV Camera
Swimming Pool
Kids Play Area
Kids Pool
Open Gym
Amphitheater
Yoga Zone
Business Center
Indoor games
party lawn
Badminton Court
Gymnasium













| Carpet Area | All Inc. Price (Inc. of Taxes & Charges) | Min Downpayment (Inc. Taxes) | Parking | Unit Plan |
|---|---|---|---|---|
737 sqft | 92.76 Lacs All In | 14.00 Lacs | 1 | ![]() |
739 sqftSold Out | ![]() | - | - | ![]() |
750 sqft | 95.85 Lacs All In | 14.00 Lacs | 1 | ![]() |
776 sqft | 99.16 Lacs All In | 14.00 Lacs | 1 | ![]() |
782 sqft | 99.92 Lacs All In | 15.00 Lacs | 1 | ![]() |
785 sqft | 99.75 Lacs All In | 15.00 Lacs | 1 | ![]() |

Is there any litigation against this proposed project:
NoCommencement Certificate Sukhwani Kingsley
Legal Title Report Sukhwani Kingsley
Layout Plan Sukhwani Kingsley
Note: You can download more detailed documents by following this link
Sukhwani Associates

1 CityLocations
Pune


Special Akshay Tritiya Offers Avail Gold Vouchers Upto 50K
800 - 1110 sqft
Jhamtani Group
Developer
1248 - 1727 sqft
Royal Nisarg Ventures
Developer
Housiey Legal: Free Real Estate Legal Consultation
Get Expert Advice on RERA, Builder Refunds, Area Mismatch, Stuck Projects & More - at No Cost!