







Land Parcel
Towers
Floors
Config
Carpet Area
RERA NO.
Possession Status
Target Possession
RERA Possession
Litigation
Ravima Thergaon Project Overview
Ravima Royale will be constructed on 3 acres of land parcel, 6 towers with 2B+G+14 floors having 2BHK, 3BHK, 4BHK premium residences .
Ravima Royale location
Project is located Near Aditya Birla Hospital, Bijali Nagar, Thergaon, Pune with-
D-Mart - 3km
Mumbai Highway - 4.5km
Pimpri Railway Station - 4.5km
Ravima Royale Thergaon Project Amenities
First is Internal amenities -
Vetrified Tiles, RCC Structure, MS Grills, CP Fittings, CPVC Pipes, Aluminium Sliding Windows, Glazed Tiles, Video Door Phone, SS Sink & Many more
Ravima Group Thergaon External Amenities
Project has 25+ luxurious amenities with likes of -
Swimming Pool
Kids Pool
Multipurpose Court
Senior Citizen Sit-Out Area & Many More
Ravima Group Royale Thergaon Parking -
Project has One type of car parking facilities -
1) Ground
Ravima Royale Possession -
Rera Possession - December 2028
Target Possession - December 2028
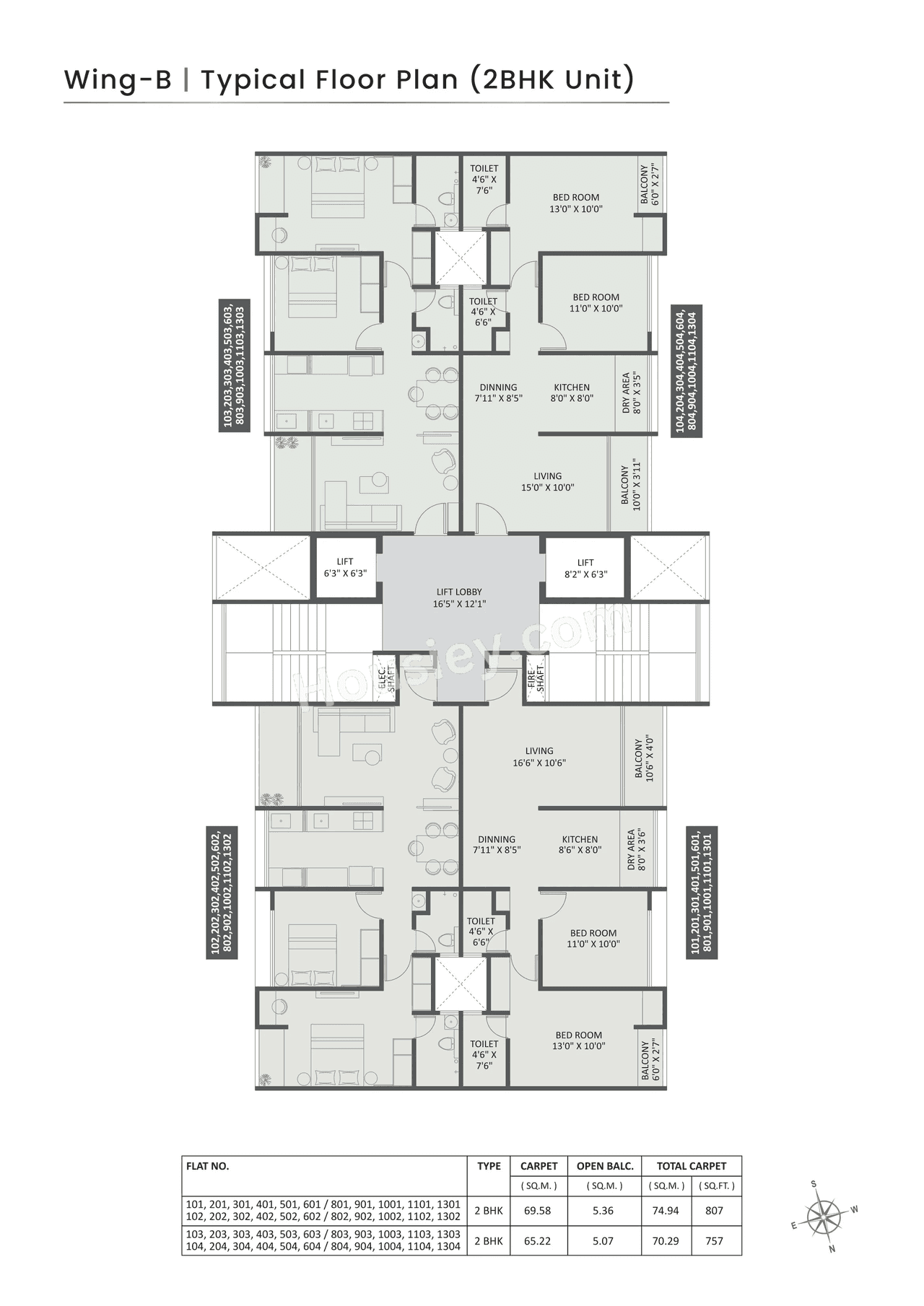
Carpet Area & Floor Plan
Ravima Royale Thergaon project has 2BHK, 3BHK, 4BHK premium residences with -
2BHK - (757 - 807) sqft
3BHK - (1014 - 1118) sqft
4BHK - 1251 sqft
Ravima Royale floor plans
All Tower floor plan will have 4 flats, 2 lifts & 2 staircases on each floor.
Maintenance -
Ravima Royale Pune Project maintaenance varies with the configuration and the carpet area which are as follows-
2BHK - Rs (3000 - 3300) per month
3BHK - Rs (4000 - 4500) per month
4BHK - Rs 5000 per month
Ravima Royale project sample flat is ready to view at the site.
Royale Thergaon Prices & its details can be found in the price section & Ravima Royale Thergaon brochure can be downloaded from the link mentioned below. Project has been praised by the home buyers & Ravima Group Thergaon review is 4 out of 5 from over all the clients who have visited the site."
Near Aditya Birla Hospital, Bijali Nagar, Thergaon, Pune
Pros
Cons
Video Door Phone
Vitrified Tiles
Stainless Steel Sink
Swimming Pool
Multi Purpose Court
Senior Citizen Area
Kids Pool
Outdoor Gym
Co Working Spaces
Amphitheater
Meditation Zone
Banquet Hall
Seating Area
Carrom
Table Tennis
Acupressure Pathway
Viewing Pavilion
Jacuzzi
+3 More





| Carpet Area | All Inc. Price (Inc. of Taxes & Charges) | Min Downpayment (Inc. Taxes) | Parking | Unit Plan |
|---|---|---|---|---|
757 sqft | 90.51 Lacs All In | 14.00 Lacs | 1 | ![]() |
807 sqft | 96.46 Lacs All In | 14.00 Lacs | 1 | ![]() |

Is there any litigation against this proposed project:
NoCommencement Certificate Ravima Royale
Legal Title Report Ravima Royale
Layout Plan Ravima Royale
Note: You can download more detailed documents by following this link
Ravima Ventures

1 CityLocations
Pune

737 - 1566 sqft
Sukhwani Associates
Developer

1248 - 1727 sqft
Royal Nisarg Ventures
Developer
Housiey Legal: Free Real Estate Legal Consultation
Get Expert Advice on RERA, Builder Refunds, Area Mismatch, Stuck Projects & More - at No Cost!