Last updated: Oct 29, 2025










Land Parcel
Towers
Floors
Config
Carpet Area
RERA NO.
Possession Status
Target Possession
RERA Possession
Litigation
Shreeji Kandivali West Project Overview
Shreeji Solitaire will be constructed on 0.30 acre of land parcel, 1 tower with G+1C+1P+19 floor having 1BHK, 1.5BHK, 2BHK, 2.5BHK, 3BHK premium residences.
Shreeji Solitaire location
Project is located Near Boraspada Rd, Charkop, Kandivali West, Mumbai with -
Kandivali West Metro - 1.8km
DMart - 2.1km
Raghuleela Mall - 3.0km
Shreeji Solitaire Kandivali West Project Amenities
First is Internal amenities -
Vitrified Tiles, Earthquake Resistant, Granite Platform, Stainless Steel Sink, CCTV & many more
Shreeji Construction Kandivali West External Amenities
Project has 15+ amenities with likes of -
Gymnasium
Kid Play Area
Senior Citizen Area
Yoga & Meditation Area & Many More
Shreeji Solitaire Kandivali West Parking -
Project has one type of car parking facility -
1) Podium
Shreeji Solitaire Possession -
Rera Possession - December 2026
Target Possession - December 2026
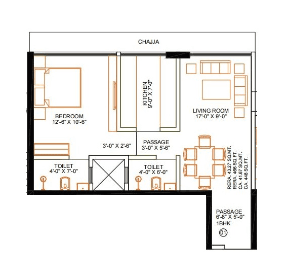
Carpet Area & Floor Plan
Solitaire project has 1BHK, 1.5BHK, 2BHK, 2.5BHK, 3BHK premium residences with -
1BHK - 466 sqft
1.5BHK - 566 sqft
2BHK - 673 sqft
2.5BHK - 685 sqft
3BHK - (807 to 832) sqft
Shreeji Solitaire floor plan
Tower floor plan will have 6 flats 3 lifts & 1 staircase on each floor
Maintenance -
Shreeji Solitaire Mumbai Project maintenance varies with the configuration and the carpet area which are as follows-
1BHK - Rs 4200 per month
1.5BHK - Rs 5100 per month
2BHK - Rs 6100 per month
2.5BHK - Rs 6200 per month
3BHK - Rs (7200 - 7500) per month
Solitaire Kandivali west sample flat is ready to view at site.
Solitaire Prices & its details can be found in the price section & Shreeji Solitaire Kandivali West brochure can be downloaded from the link mentioned below. Project has been praised by the home buyers & Shreeji Construction Kandivali West review is 4 out of 5 from over all the clients who have visited the site.
Near Boraspada Rd, Charkop, Kandivali West, Mumbai

Pros
Cons
Vitrified Tiles
Granite Kitchen Platform
Stainless Steel Sink
Kids Play Area
Senior Citizen Area
Yoga Zone
Meditation Zone
Seating Area
Table Tennis
Gazebo
Indoor games
Gymnasium


| Carpet Area | All Inc. Price (Inc. of Taxes & Charges) | Min Downpayment (Inc. Taxes) | Parking | Unit Plan |
|---|---|---|---|---|
466 sqftLimited | 1.26 Cr All In | 19.00 Lacs | 1 | ![]() |

Is there any litigation against this proposed project:
NoShreeji Solitaire Commencement Certificate
Shreeji Solitaire Legal Title Report
Shreeji Solitaire Layout Plan
Note: You can download more detailed documents by following this link
Shreeji Construction

3 CitiesLocations
Mumbai City, Mumbai suburban, Pune


















801 - 1883 sqft
Je and Vee Infrastructure
Developer

Housiey Legal: Free Real Estate Legal Consultation
Get Expert Advice on RERA, Builder Refunds, Area Mismatch, Stuck Projects & More - at No Cost!