Last updated: Mar 27, 2026





Land Parcel
Towers
Floors
Config
Carpet Area
RERA NO.
Possession Status
Target Possession
RERA Possession
Litigation
Shraddha Bhandup West Project Overview
Shraddha Evoque will be constructed on 1.5 acres of land parcel, 1 tower with G+40 floors having 1BHK, 2BHK premium residences.
Shraddha Evoque location
Project is Near Lake Road, Sonapur, Bhandup West, Mumbai with -
LBS Marg Road - 1.0km
D-Mart - 1.7km
Bhandup Railway Station - 3km
Shraddha Evoque Bhandup West Project Amenities
First is Internal amenities -
Modular kitchen, Granite Kitchen, Stainless steel sink, Vitrified tiles, CCTV & many more
Shraddha Landmark Bhandup West Amenities
Project has 10+ amenities with likes of -
Gymnasium
Kid's Play area & Many More
Shraddha Landmark Evoque Bhandup West Parking -
Project has one type of car parking facility -
1) Tower Parking
Shraddha Evoque Possession -
Rera Possession - July 2025
Target Possession - March 2025
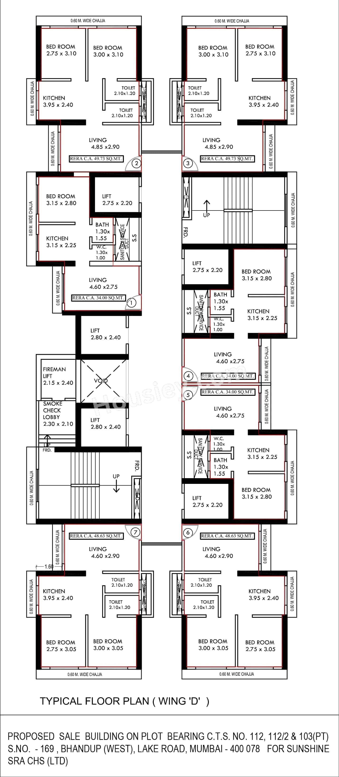
Carpet Area & Floor Plan
Evoque project has 1BHK, 2BHK premium residences with -
1BHK - (366 to 369) sqft
2BHK - (523 to 535) sqft
Maintenance -
Shraddha Evoque Mumbai Project maintenance varies with the configuration and the carpet area which are as follows-
1BHK - Rs (3600 - 3600) per month
2BHK - Rs (5200 - 5300) per month
Evoque Bhandup West project sample flat is ready to view at the site.
Evoque Bhandup West Prices & its details can be found in the price section & Shraddha Evoque brochure can be downloaded from the link mentioned below. Project has been praised by the home buyers & Shraddha Landmark Bhandup West review is 4 out of 5 from over all the clients who have visited the site.
Near Lake Road, Sonapur, Bhandup West, Mumbai

Pros
Cons
Vitrified Tiles
Granite Kitchen Platform
CCTV Camera
Modular Kitchen
Kids Play Area
Seating Area
Landscaped Garden
Gymnasium
Multi purpose hall


| Carpet Area | All Inc. Price (Inc. of Taxes & Charges) | Min Downpayment (Inc. Taxes) | Parking | Unit Plan |
|---|---|---|---|---|
366 sqftSold Out | ![]() | - | - | ![]() |
369 sqftSold Out | ![]() | - | - | ![]() |


Is there any litigation against this proposed project:
NoShraddha Landmark

1 CityLocations
Thane













490 - 1090 sqft
Mahesh Developers
Developer




316 - 698 sqft
Shreeji Lifespaces Group
Developer

392 - 715 sqft
Shreeji Lifespaces Group
Developer
Housiey Legal: Free Real Estate Legal Consultation
Get Expert Advice on RERA, Builder Refunds, Area Mismatch, Stuck Projects & More - at No Cost!