Last updated: Apr 10, 2025













Land Parcel
Towers
Floors
Config
Carpet Area
RERA NO.
Possession Status
Target Possession
RERA Possession
Litigation
Rustomjee Borivali East Project Overview
Rustomjee Summit Project will be constructed on 0,87 acres of land parcel, 1 towers with G+40 floors having 2 BHK, 3 BHK premium residences .
Rustomjee Summit Location
Project is located On Dattapada Road, Borivali East, Mumbai with -
Western Express Hwy - 800m
METRO Cash & Carry Mall - 1.0km
Borivali Railway Station - 1.1km
Rustomjee Summit Borivali East Project Amenities
First is Internal amenities -
Semi Modular Kitchen, Vitrified Tiles, Granite Platform, SS sink, CP fitting, Video door phone & many more
Rustomjee Borivali East External Amenities
Project has 25+ amenities with likes of -
Multipurpose hall
Gymnasium
Kid's play area
Swimming pool
Indoor games & many more
Rustomjee Summit Borivali East Parking -
Project has one type of car parking facility -
1) Podium
Rustomjee Summit Possession -
Rera Possession - December 2025
Target Possession - Ready To Move
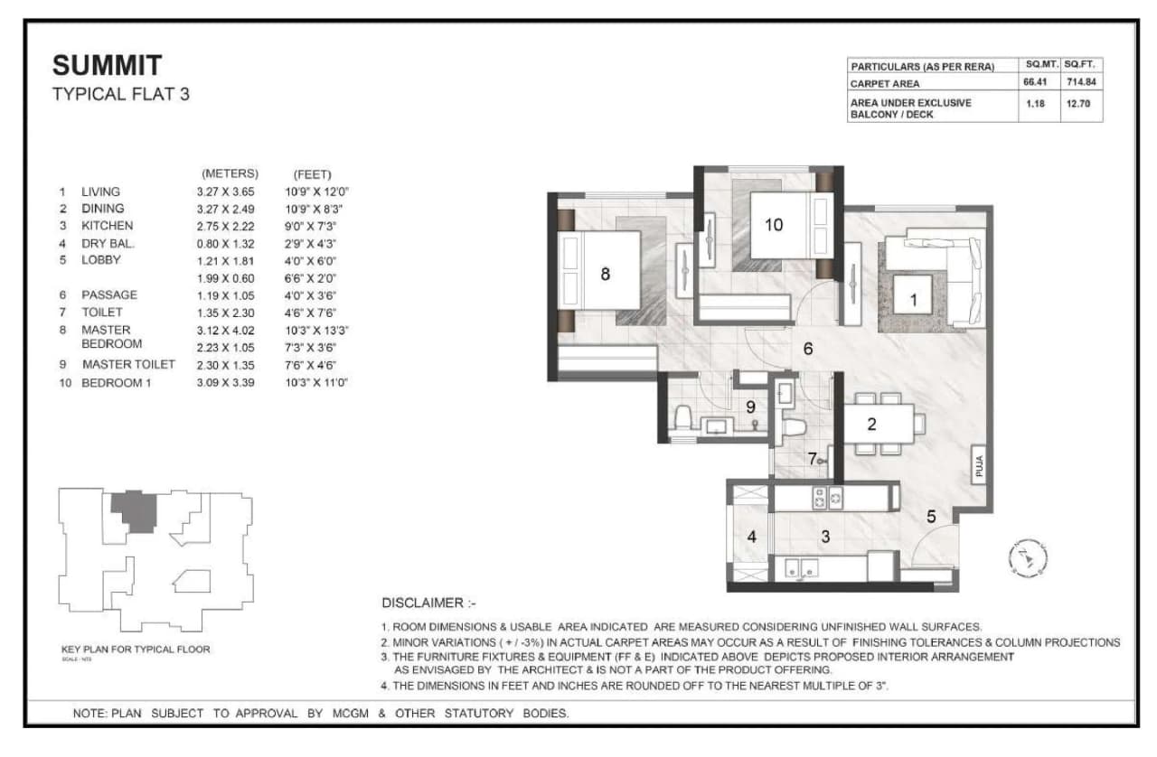
Carpet Area & Floor Plan
Summit Mumbai project has 2BHK & 3BHK premium residences with -
2BHK - (726 to 889) sqft
3BHK - (1007 to 1139) sqft
Rustomjee Summit floor plan
Tower floor plan will have 4 flats 3 lifts & 2 staircases on each floor
Maintenance -
Rustomjee Summit Borivali East Project maintenance varies with the configuration and the carpet area which are as follows-
3BHK - Rs (8000 - 9100) per month
4BHK - Rs (12000 - 13600) per month
Summit Borivali East project sample flat is ready to view at the site.
Summit Prices & its details can be found in the price section & Rustomjee Summit Borivali East brochure can be downloaded from the link mentioned below. Project has been praised by the home buyers & Oberoi Group Borivali East review is 4 out of 5 from over all the clients who have visited the site
On Dattapada Road, Borivali East, Mumbai

Pros
Cons
Video Door Phone
Vitrified Tiles
Granite Kitchen Platform
Stainless Steel Sink
Modular Kitchen
Jogging Track
Entrance Gate
Indoor games
Yoga Deck
Badminton Court
Landscaped Garden
Gymnasium
Kids Park
Multi purpose hall



| Carpet Area | All Inc. Price (Inc. of Taxes & Charges) | Min Downpayment (Inc. Taxes) | Parking | Unit Plan |
|---|---|---|---|---|
726 sqftSold Out | ![]() | - | - | ![]() |
759 sqftSold Out | ![]() | - | - | ![]() |
889 sqftSold Out | ![]() | - | - | ![]() |


Is there any litigation against this proposed project:
NoRustomjee

7 CitiesLocations
Ahmedabad, Bangalore Rural, Bangalore Urban, Mumbai City, Mumbai suburban, Pune, Thane

634 - 1278 sqft
CCI Projects Pvt Ltd
Developer





914 - 2630 sqft
Goodwill Developers
Developer
713 - 1114 sqft
CCI Projects Pvt Ltd
Developer
772 - 1263 sqft
CCI Projects Pvt Ltd
Developer

377 - 530 sqft
Haware Properties
Developer


450 - 1048 sqft
Dhariwal Developers
Developer

428 - 700 sqft
Shraddha Prime Projects
Developer


428 - 1032 sqft
Samarpan Homes and Developers
Developer
Housiey Legal: Free Real Estate Legal Consultation
Get Expert Advice on RERA, Builder Refunds, Area Mismatch, Stuck Projects & More - at No Cost!