Last updated: Feb 19, 2026





Land Parcel
Towers
Floors
Config
Carpet Area
RERA NO.
Possession Status
Target Possession
RERA Possession
Litigation
H Rishabraj Malad West Project Overview
Rishabraj Ceramont Project will be constructed on 0.7 Acres of land parcel, 1 Tower with G+1C+3P+16 floors having 2BHK, 3BHK, Jodi premium residences .
Rishabraj Ceramont Location
Project is located On Ramchandra Ln, Evershine Nagar, Malad West, Mumbai with -
New Link Rd - 200m
DMart - 500m
Malad Metro Station - 550m
Rishabraj Ceramont Malad West Project Amenities
First is Internal amenities -
Vitrified Tiles, Granite Platform, SS sink, Branded Fittings, Intercom Facility & many more
H Rishabraj Group Malad West External Amenities
Project has 15+ amenities with likes of -
Kids Play Area
Swimming pool
Terrace Garden
Jogging Track
Gymnasium
Yoga & Meditation Zone many more
H Rishabraj Group Ceramont Malad West Parking -
Project has one type of car parking facility -
1) Podium
Rishabraj Ceramont Possession -
Rera Possession - Dec 2029
Target Possession - Dec 2028
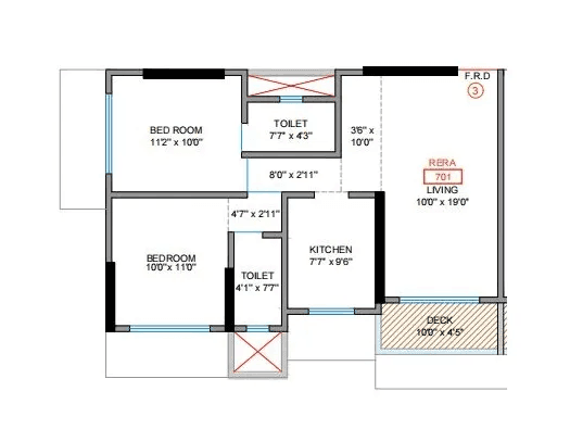
Carpet Area & Floor Plan
Rishabraj Ceramont Mumbai project has 2BHK, 3BHK, Jodi premium residences with -
2BHK - (667 to 701) sqft
3BHK - (933 to 1074) sqft
Jodi - (1339 to 1696) sqft
Rishabraj Ceramont floor plan
Rishabraj Ceramont floor plan will have 3 flats 2 lifts & 1 staircase on each floor
Ceramont Prices & its details can be found in the price section & Rishabraj Ceramont Malad West brochure can be downloaded from the link mentioned below. Project has been praised by the home buyers & H Rishabraj Group Malad West review is 4 out of 5 from over all the clients who have visited the site
On Ramchandra Ln, Evershine Nagar, Malad West, Mumbai

Pros
Cons
Vitrified Tiles
Granite Kitchen Platform
Stainless Steel Sink
Swimming Pool
Kids Play Area
Garden
Multi Purpose Court
Senior Citizen Area
Yoga Zone
Meditation Zone
Seating Area
Indoor games
Gymnasium
Terrace Garden
Fitness Deck





| Carpet Area | All Inc. Price (Inc. of Taxes & Charges) | Min Downpayment (Inc. Taxes) | Parking | Unit Plan |
|---|---|---|---|---|
667 sqft | 2.17 Cr All In | 33.00 Lacs | 1 | ![]() |
701 sqft | 2.27 Cr All In | 34.00 Lacs | 1 | ![]() |

Is there any litigation against this proposed project:
Yes| Court Name | City | Case Type | Petition | Case Number | Year | Case Status |
|---|---|---|---|---|---|---|
| City Civil Court Dindoshi | Mumbai | Civil | Suit | 977 | 2022 | Ongoing |
Rishabraj Ceramont Commencement Certificate
Rishabraj Ceramont Legal Title Report
Rishabraj Ceramont Layout Plan
Note: You can download more detailed documents by following this link

718 - 1068 sqft
Chandak Group
Developer



















Housiey Legal: Free Real Estate Legal Consultation
Get Expert Advice on RERA, Builder Refunds, Area Mismatch, Stuck Projects & More - at No Cost!