Last updated: May 19, 2026









Land Parcel
Towers
Floors
Config
Carpet Area
RERA NO.
Possession Status
Target Possession
RERA Possession
Litigation
Sheth Malad West Project Overview
Sheth Irene will be constructed on 2.5 acres of land parcel, 2 towers with 2B+G+10P+45 floors having 1 BHK, 2 BHK, Jodi premium residences.
Sheth Irene location
Project is Off New Link Rd, Malad West, Mumbai with -
Infiniti Mall - 1.0km
Malad Railway Station - 1.7km
Malad Metro Station - 1km
Sheth Irene Malad West Project Amenities
First is Internal amenities -
Vetrified Tiles, Branded Fittings, Kitchen Platform, Intercom System, DG Power Backup, Fire Safety Features As Per Norms, Fire Rated Main Door, Gas Detector In kitchen & many more
Sheth Creators Malad West External Amenities
Project has 50+ luxurious amenities with likes of -
Gymnasium
Amphitheatre
Swimming Pool
Kids Play Area
BBQ Deck & Many More
Sheth Creators Irene Malad West Parking -
Project has two types of car parking facilities -
1) Podium
2) Basement
Sheth Irene Possession -
Rera Possession - October 2028
Target Possession - December 2027
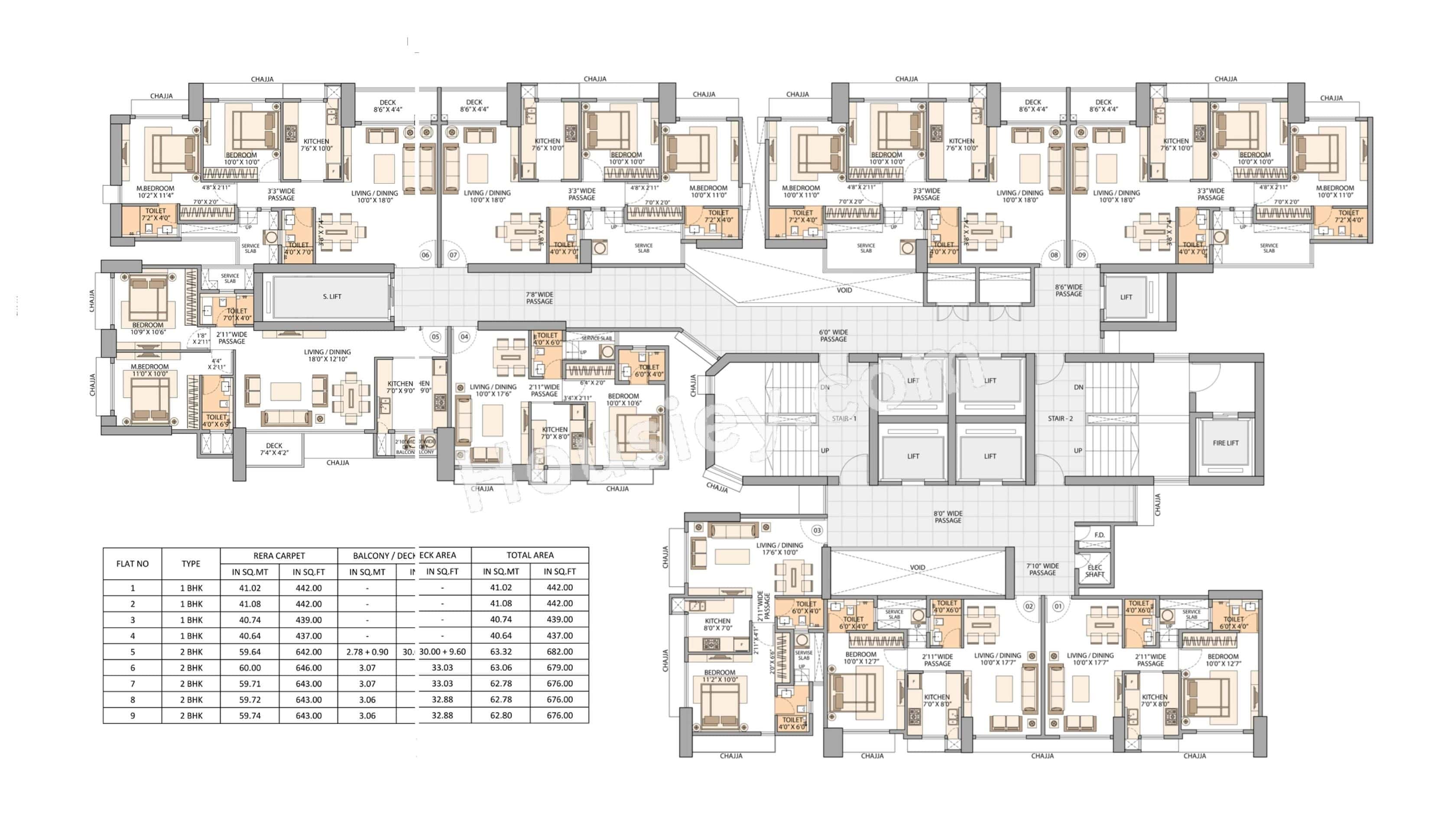
Carpet Area & Floor Plan
Irene project has 1BHK, 2BHK, Jodi premium residences with -
1BHK - 442 sqft
2BHK - 680 sqft
Jodi - (884 to 1355) sqft
Sheth Irene floor plan
Tower floor plan will have 4 flats 2 lifts & 2 staircases on each floor
Sheth Irene project sample flat is ready to view at the site.
Sheth Irene Mumbai Prices & its details can be found in the price section & Sheth Irene Malad West brochure can be downloaded from the link mentioned below. Project has been praised by the home buyers & Sheth Creators Malad West review is 4 out of 5 from over all the clients who have visited the site.
Off New Link Rd, Liberty Garden, Malad West, Mumbai

Pros
Cons
Intercom Facility
Vitrified Tiles
Granite Kitchen Platform
Branded Fittings
Gas Leak Detector
D.G Backup
Swimming Pool
Kids Play Area
Multi Purpose Court
Amphitheater
Seating Area
BBQ Lawn
Indoor games
party lawn
Yoga Deck
Landscaped Garden
Gymnasium
Walking Track




| Carpet Area | All Inc. Price (Inc. of Taxes & Charges) | Min Downpayment (Inc. Taxes) | Parking | Unit Plan |
|---|---|---|---|---|
442 sqft | 1.55 Cr All In | 23.00 Lacs | 1 | ![]() |

Is there any litigation against this proposed project:
Yes| Court Name | City | Case Type | Petition | Case Number | Year | Case Status |
|---|---|---|---|---|---|---|
| High Court | Civil | Writ Petition | 7190 | 2016 | ||
| City Civil Court | Civil | Suit | 1162 | 2016 | ||
| High Court | Civil | Writ Petition | 1016 | 2012 | ||
| City Civil Court | Civil | Suit | 331 | 2018 | ||
| High Court | Mumbai | Civil | Writ Petition | 7190 | 2016 | Ongoing |
Sheth Irene Commencement Certificate
Sheth Irene Legal Title Report
Sheth Irene Layout Plan
Note: You can download more detailed documents by following this link
Sheth Creators

3 CitiesLocations
Mumbai City, Mumbai suburban, Thane

718 - 1068 sqft
Chandak Group
Developer


















Housiey Legal: Free Real Estate Legal Consultation
Get Expert Advice on RERA, Builder Refunds, Area Mismatch, Stuck Projects & More - at No Cost!