








Land Parcel
Towers
Floors
Config
Carpet Area
RERA NO.
Possession Status
Target Possession
RERA Possession
Litigation
Qualitas Taloja Project Overview
Qualitas QA Riverfront will be constructed on 5 Acre of land parcel, 3 Tower with G+P+14 floors having 1BHK, 2BHK, premium residences.
Qualitas QA Riverfront location
Project is Located Near Ghot Road, Taloja, Navi Mumbai with -
Reliance Smart Point - 2.3km
Taloja Panchnand - 2.9km
Pethali Metro Station - 2.9km
Qualitas QA Riverfront Taloja Project Amenities
First is Internal amenities -
Vitrified tiles, Granite Kitchen, SS Sink, CCTV
Qualitas Taloja Amenities
Project has 10+ amenities with likes of -
Swimming Pool
Jogging Track
Kids Play Area
Sport Court Area & Many More
Qualitas Qualitas QA Riverfront Taloja Parking -
Project has one type of car parking facilities -
1) Podium
Qualitas QA Riverfront Possession -
Rera Possession - December 2029
Target Possession - December 2027
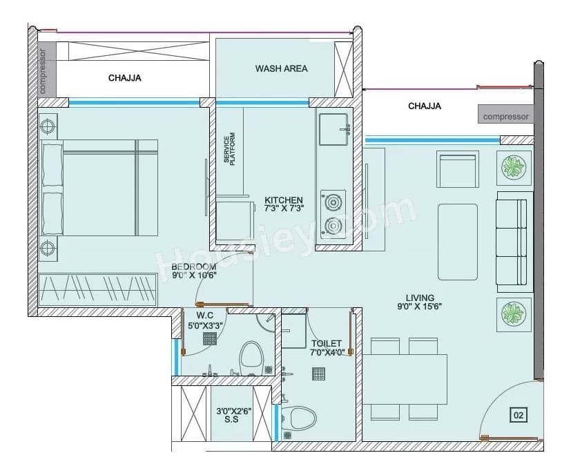
Carpet Area & Floor Plan
Qualitas QA Riverfront project has 1BHK, 2BHK premium residences with -
1BHK - (433 to 483) sqft
2BHK - (634 to 711) sqft
Qualitas QA Riverfront floor plan
Tower floor plan will have 8 flats 3 lifts & 2 staircase on each floor
QA Riverfront Taloja project sample flat is ready to view at the site.
QA Riverfront Prices & its details can be found in the price section & Qualitas QA Riverfront Taloja brochure can be downloaded from the link mentioned below. Project has been praised by the home buyers & Qualitas Taloja review is 4 out of 5 from over all the clients who have visited the site.
Near Ghot Road, Taloja, Navi Mumbai

Pros
Cons
Vitrified Tiles
Granite Kitchen Platform
Stainless Steel Sink
CCTV Camera
Swimming Pool
Kids Play Area
Jogging Track
Multi Purpose Court
Senior Citizen Area
Outdoor Chess
Seating Area
Indoor games
Community Hall
Mini Theatre




| Carpet Area | All Inc. Price (Inc. of Taxes & Charges) | Min Downpayment (Inc. Taxes) | Parking | Unit Plan |
|---|---|---|---|---|
433 sqftSold Out | ![]() | - | - | ![]() |
474 sqftSold Out | ![]() | - | - | ![]() |
483 sqftSold Out | ![]() | - | - | ![]() |
469 sqft | 40.26 Lacs All In | 6.00 Lacs | 3.5 Lacs | ![]() |


Is there any litigation against this proposed project:
NoQualitas QA Riverfront Proforma Sale Agreement
Qualitas QA Riverfront Proforma Allotment Letter
Qualitas QA Riverfront Layout Plan
Note: You can download more detailed documents by following this link
Qualitas Group

2 CitiesLocations
Mumbai City, Mumbai suburban

385 - 609 sqft
Siddharth Builders and Developers
Developer
344 - 556 sqft
Arihant Superstructures
Developer


339 - 578 sqft
Arihant Superstructures
Developer
461 - 693 sqft
Siddhivinayak Homes
Developer
Housiey Legal: Free Real Estate Legal Consultation
Get Expert Advice on RERA, Builder Refunds, Area Mismatch, Stuck Projects & More - at No Cost!