Last updated: Mar 12, 2026






















Land Parcel
Towers
Floors
Config
Carpet Area
RERA NO.
Possession Status
Target Possession
RERA Possession
Litigation
Piramal Byculla East Project Overview
Piramal Aranya Project will be constructed on 7 acres of land parcel, 3 towers with 3B+12P+G+41/45/72 floors having 2 BHK, 3 BHK, 4 BHK, 5 BHK premium residences .
Piramal Aranya Location
Project is located ON Rambhau Bhogle Marg, Naralwadi, Byculla East, Mumbai with -
Eastern Express Highway - 650m
Byculla Railway Station - 1.6km
Phoenix Mall - 4.2km
Piramal Aranya Byculla East Project Amenities
First is Internal amenities -
Vitrified Tiles, Granite Platform, SS sink & many more
Piramal Realty Byculla East External Amenities
Project has 40+ amenities with likes of -
Club House
Swimminpool
Gymnasium
Kids Play Area
Ampitheatre
Multipurpose sports court
Kid's pool
Game court & Many More
Piramal Realty Aranya Byculla East Aranyaing -
Project has Two type of car Aranyaing facility -
1) Basement
2) Podium
Piramal Aranya Possession -
Rera Possession - December 2027
Target Possession - December 2026
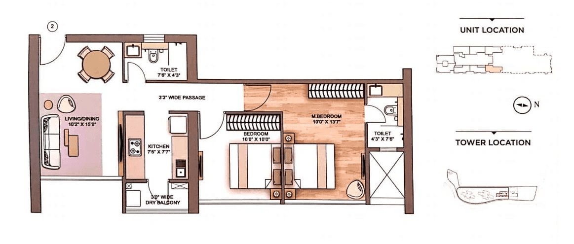
Carpet Area & Floor Plan
Aranya Mumbai project has 2BHK, 3BHK, 4BHK, 5BHK premium residences with -
2BHK - (675 to 762) sqft
3BHK - (877 to 1576) sqft
4BHK - 1670 sqft
5BHK - 1908 sqft
Piramal Aranya Hill floor plan
Tower floor plan will have 6 flats 8 lifts & 2 staircases on each floor
Maintenance -
Piramal Aranya Byculla East Project maintenance varies with the configuration and the carpet area which are as follows-
2BHK - Rs (13500 - 15200) per month
3BHK - Rs (17500 - 28400) per month
4BHK - Rs 33400 per month
5BHK - Rs 38100 per month
Aranya Byculla East project sample flat is ready to view at the site.
Aranya Prices & its details can be found in the price section & Piramal Aranya Byculla East brochure can be downloaded from the link mentioned below. Project has been praised by the home buyers & Piramal Realty Byculla East review is 4 out of 5 from over all the clients who have visited the site.
On Rambhau Bhogle Marg, Naralwadi, Byculla East, Mumbai

Pros
Cons
Vitrified Tiles
Granite Kitchen Platform
Stainless Steel Sink
Branded Fittings
Kids Play Area
Jogging Track
Multi Purpose Court
Kids Pool
Cricket Pitch
Amphitheater
Yoga Zone
Rock Climbing
Yoga Deck


| Carpet Area | All Inc. Price (Inc. of Taxes & Charges) | Min Downpayment (Inc. Taxes) | Parking | Unit Plan |
|---|---|---|---|---|
675 sqft | 3.80 Cr All In | 57.00 Lacs | 1 | ![]() |
724 sqft | 4.49 Cr All In | 67.00 Lacs | 1 | ![]() |
762 sqft | 4.59 Cr All In | 69.00 Lacs | 1 | ![]() |

Is there any litigation against this proposed project:
Yes| Court Name | City | Case Type | Petition | Case Number | Year | Case Status |
|---|---|---|---|---|---|---|
| Supreme Court | Mumbai | Civil | Other | 29408 | 2018 | |
| MAHARERA AUTHORITY | Mumbai | Civil | Other | CC006000000171890 | 2020 | |
| Bombay High Court | Mumbai | Civil | Other | 1 | 2019 | |
| Bombay High Court | Mumbai | Civil | Writ Petition | 491 | 2020 | |
| MAHARERA AUTHORITY | Mumbai | Civil | Other | CC006000000198423 | 2021 |
Piramal Aranya Proforma Sale Agreement
Piramal Aranya Layout Plan
Piramal Aranya Legal Title Report
Note: You can download more detailed documents by following this link
Piramal Realty

7 CitiesLocations
Ahmedabad, Bangalore Rural, Bangalore Urban, Mumbai City, Mumbai suburban, Pune, Hyderabad


567 - 1165 sqft
Redstone Group
Developer
Housiey Legal: Free Real Estate Legal Consultation
Get Expert Advice on RERA, Builder Refunds, Area Mismatch, Stuck Projects & More - at No Cost!