

Land Parcel
Towers
Floors
Config
Carpet Area
RERA NO.
Possession Status
Target Possession
RERA Possession
Litigation
Phanshul Balewadi Project Overview
Phanshul Homes will be constructed on 0.16 Acres, 1 Towers, G+P+6 Floors, 2BHK,4BHK premium residences.
Phanshul Homes location
Project is located Near Balewadi Highstreet, Balewadi, Pune. with -
D-Mart - 500m
Mumbai-Pune Highway - 1.5km
Balewadi Phata - 2.3km
Phanshul Homes Balewadi Amenities
First is Internal amenities -
All apartments are unfurnished with branded fittings and fixtures with
Video Door Phones, Vitrified tiles, Granite Kitchen, Earthquake Resistant, SS Sink, Ms Railing, Solar System, RCC, CP Fitting, Anti Skid tiles, & many more.
Phanshul Properties Balewadi External Amenities
Project has 15+ Amenities with likes of -
Swimming Pool With Deck Area
Club House
Barbeque
Gym Room
Party Area & many more.
Phanshul Properties Homes Parking
Project has two type of car parking facility which are as follows -
1)Ground
2)Podium
Phanshul Homes Balewadi Possession -
Rera Possession - December 24
Target Possession - December 24
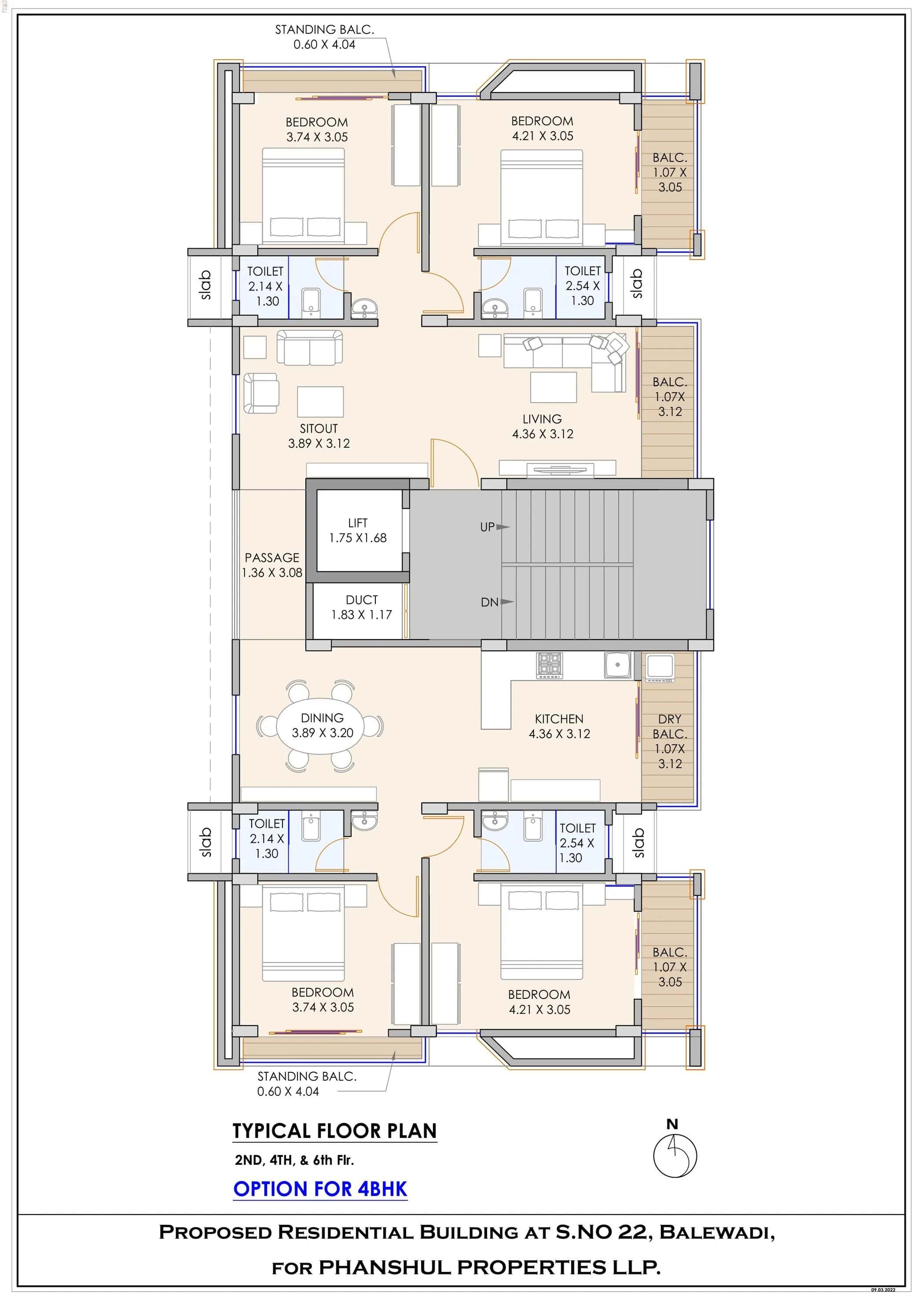
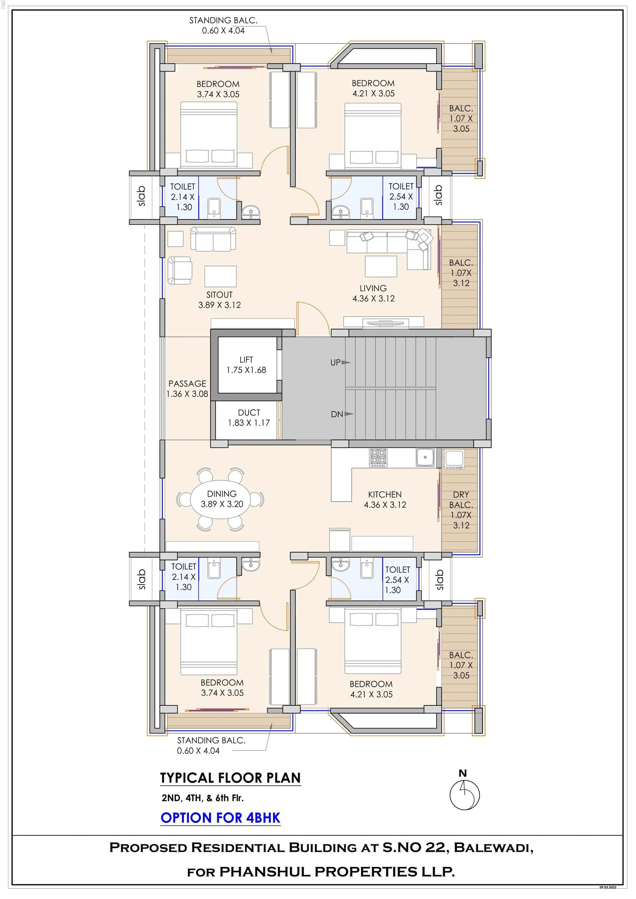
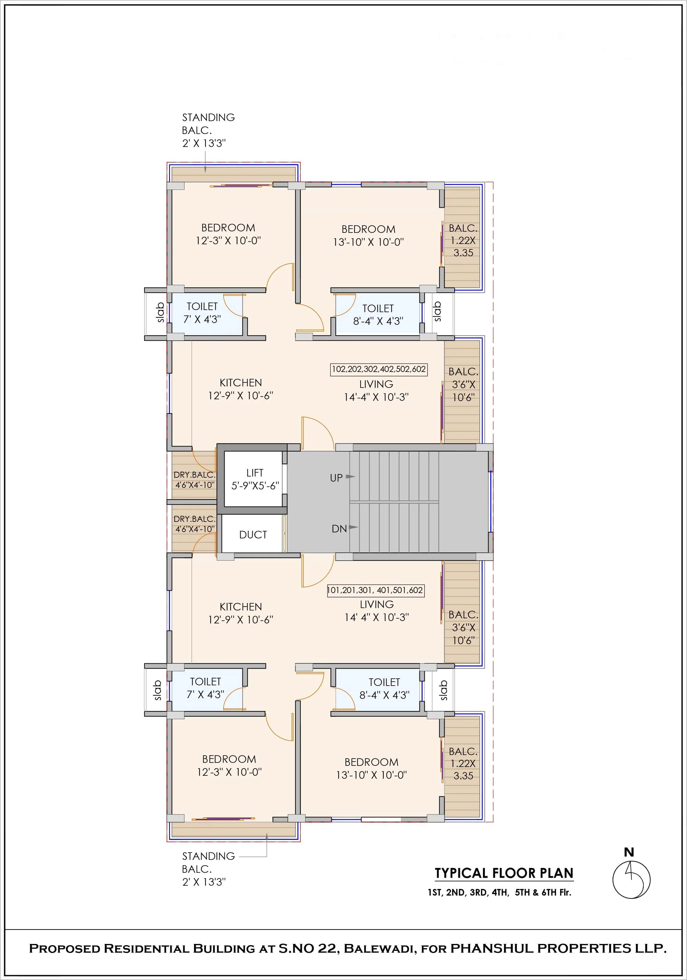
Carpet Area & Floor Plan
Phanshul Homes Balewadi 2BHK,4BHK Apartment with -
2BHK - 797 sqft
4BHK - 1594 sqft
Phanshul Homes floor plans
Project floor plan will have 2 flats, 1 lifts & 1 staircases on each floor.
Maintenance -
Phanshul Homes project maintenance varies with the configuration and the carpet area which are as follows-
2BHK - Rs 8400 per month
3BHK - Rs 16700 per month
Phanshul Homes Balewadi project sample flat is ready to view at the site.
Phanshul Homes price & its details can be known at the price section & Phanshul Homes brochure can be downloaded from the link mentioned below. Project has been praised by the home buyers & Phanshul Properties Balewadi reviews is 4 out of 5 from over all the clients who have visited the site.
Near Balewadi Highstreet, Balewadi, Pune.
Pros
Cons
Video Door Phone
Vitrified Tiles
Granite Kitchen Platform
Stainless Steel Sink
Swimming Pool
Club House
BBQ Lawn
party lawn
Landscaped Garden
Gymnasium



| Carpet Area | All Inc. Price (Inc. of Taxes & Charges) | Min Downpayment (Inc. Taxes) | Parking | Unit Plan |
|---|---|---|---|---|
797 sqftSold Out | ![]() | - | - | ![]() |


Is there any litigation against this proposed project:
NoPhanshul Properties LLP

1 CityLocations
Pune

811 - 1448 sqft
Majestique Landmarks
Developer

1377 - 4385 sqft
Kasturi Housing
Developer



821 - 1231 sqft
Majestique Landmarks
Developer
1883 - 2013 sqft
Almal Inspired Spaces
Developer

1102 - 2683 sqft
Vilas Javdekar Developers
Developer

1425 - 1425 sqft
Platinum Properties
Developer


1246 - 3742 sqft
Kasturi Housing
Developer


1350 - 1350 sqft
Varun Developers
Developer


Housiey Legal: Free Real Estate Legal Consultation
Get Expert Advice on RERA, Builder Refunds, Area Mismatch, Stuck Projects & More - at No Cost!