Last updated: Mar 20, 2026




Land Parcel
Towers
Floors
Config
Carpet Area
RERA NO.
Possession Status
Target Possession
RERA Possession
Litigation
Raj Malad West Project Overview
Nakul Raj Project will be constructed on 0.3 acres of land parcel, 1 tower with G+18 floors having 1 BHK, 2 BHK, 2.5 BHK premium residences .
Nakul Raj location
Project is located On Malad - Marve Road, Malad West, Mumbai with -
Malad West Metro Station - 1.3km
Infiniti Mall - 1.5km
Malad Railway Station - 2.8km
Nakul Raj Malad Project Amenities
First is Internal amenities -
Vitrified Tiles, Granite Platform, Exhaust fan, SS sink, Fire fighting, CCTV & many more
Raj Builders Malad West External Amenities
Project has 10+ luxurious amenities with likes of -
Gymnasium
Community hall & Many More
Raj Builders Pratap Nakul Malad West Parking -
Project has one type of car parking facility -
1) Ground
Nakul Raj Possession -
Rera Possession - October 2024
Target Possession - October 2023
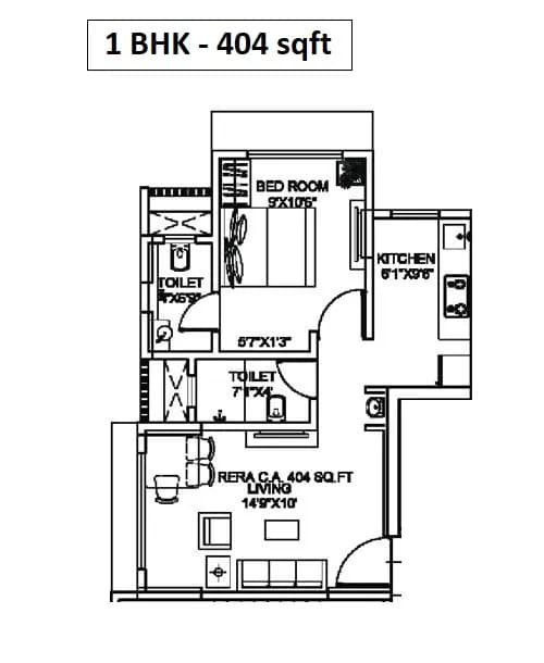
Carpet Area & Floor Plan
Nakul project has 1BHK, 2BHK premium residences with -
1BHK - (404 to 412) sqft
2BHK - 523 sqft
2.5BHK - 729 sqft
Nakul Raj floor plan
Tower floor plan will have 4 flats 1 lifts & 1 staircases on each floor
Maintenance -
Nakul Raj Mumbai Project maintenance varies with the configuration and the carpet area which are as follows-
1BHK - (2800 - 3000) per month
2BHK - 3700 per month
2.5BHK - 5100 per month
Nakul Malad West project sample flat is ready to view at the site.
Nakul Prices & its details can be found in the price section & Nakul Raj Malad West brochure can be downloaded from the link mentioned below. Project has been praised by the home buyers & Raj Builders Malad West review is 4 out of 5 from over all the clients who have visited the site.
On Malad - Marve Road, Malad West, Mumbai

Pros
Cons
Vitrified Tiles
Granite Kitchen Platform
Stainless Steel Sink
Exhaust Fan
CCTV Camera
Fire Fighting
Gymnasium
Community Hall



| Carpet Area | All Inc. Price (Inc. of Taxes & Charges) | Min Downpayment (Inc. Taxes) | Parking | Unit Plan |
|---|---|---|---|---|
404 sqftSold Out | ![]() | - | - | ![]() |
412 sqftSold Out | ![]() | - | - | ![]() |


Is there any litigation against this proposed project:
NoRaj Builders

2 CitiesLocations
Mumbai City, Mumbai suburban

718 - 1068 sqft
Chandak Group
Developer



















Housiey Legal: Free Real Estate Legal Consultation
Get Expert Advice on RERA, Builder Refunds, Area Mismatch, Stuck Projects & More - at No Cost!