Last updated: Oct 4, 2025










Land Parcel
Towers
Floors
Config
Carpet Area
RERA NO.
Possession Status
Target Possession
RERA Possession
Litigation
Kohinoor Ulhasnagar Project Overview
Kohinoor Anaya will be constructed on 0.70 Acres of land parcel, 1 Towers with G+18 floors having 1BHK, 2BHK premium residences.
Kohinoor Anaya location
Project is Located Off Shree Ram Chowk, Vitthalwadi, Ulhasnagar, Mumbai with -
Ulhasnagar Station - 800m
Vitthalwadi Station - 1.1km
Gajanand Market - 1.9km
Kohinoor Anaya Ulhasnagar Project Amenities
First is Internal amenities -
Vitrified tiles, Granite Kitchen, SS Sink, CCTV
Kohinoor Group Ulhasnagar Amenities
Project has 35+ amenities with likes of -
Gymnasium
Indoor Game
Cooking Space
yoga & Meditation
Acupressure Pathway & Many More
Kohinoor Group Anaya Ulhasnagar Parking -
Project has one type of car parking facilitiy -
1) Stack
Kohinoor Anaya Possession -
Rera Possession - December 2028
Target Possession - March 2027
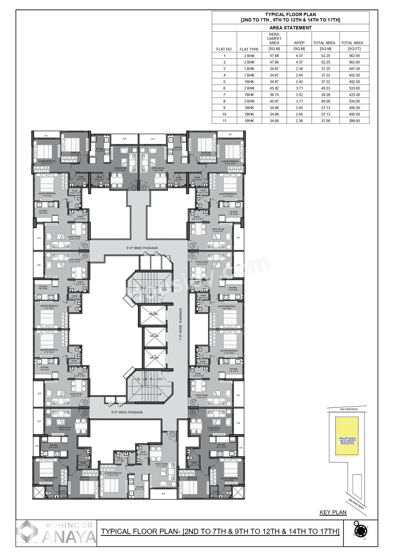
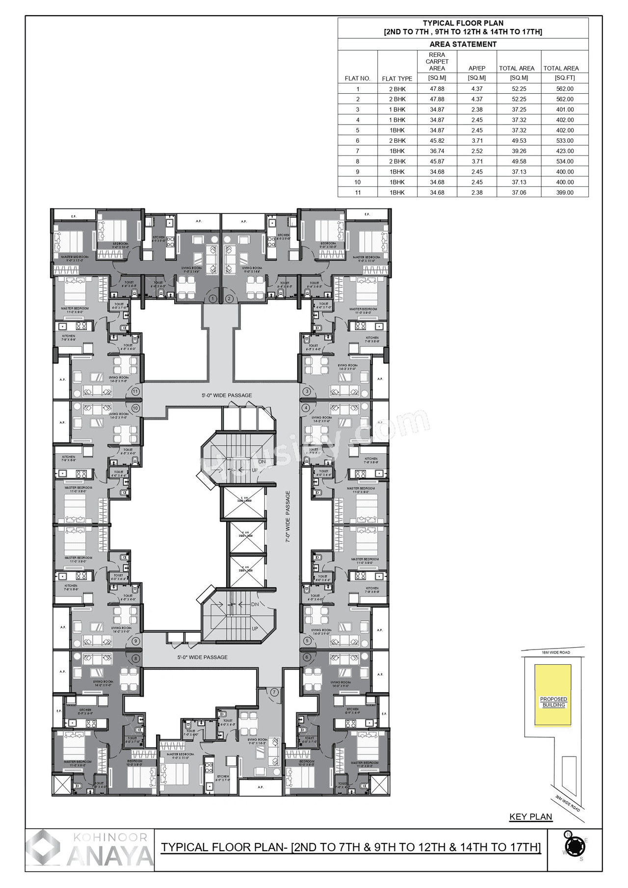
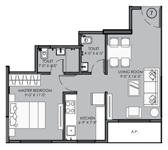
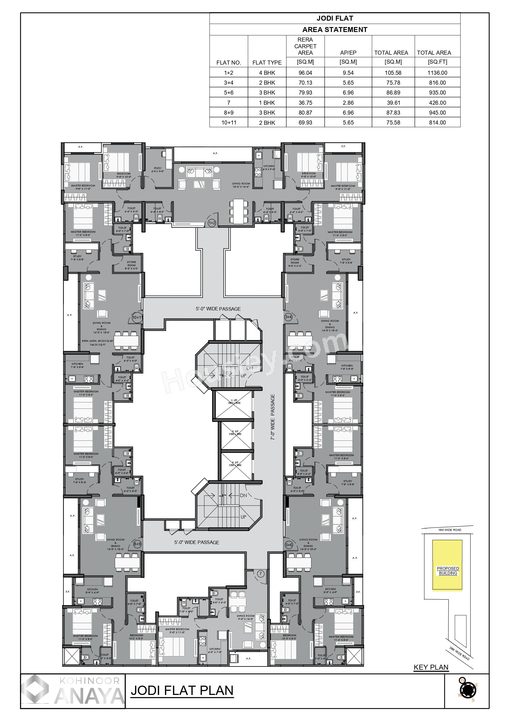
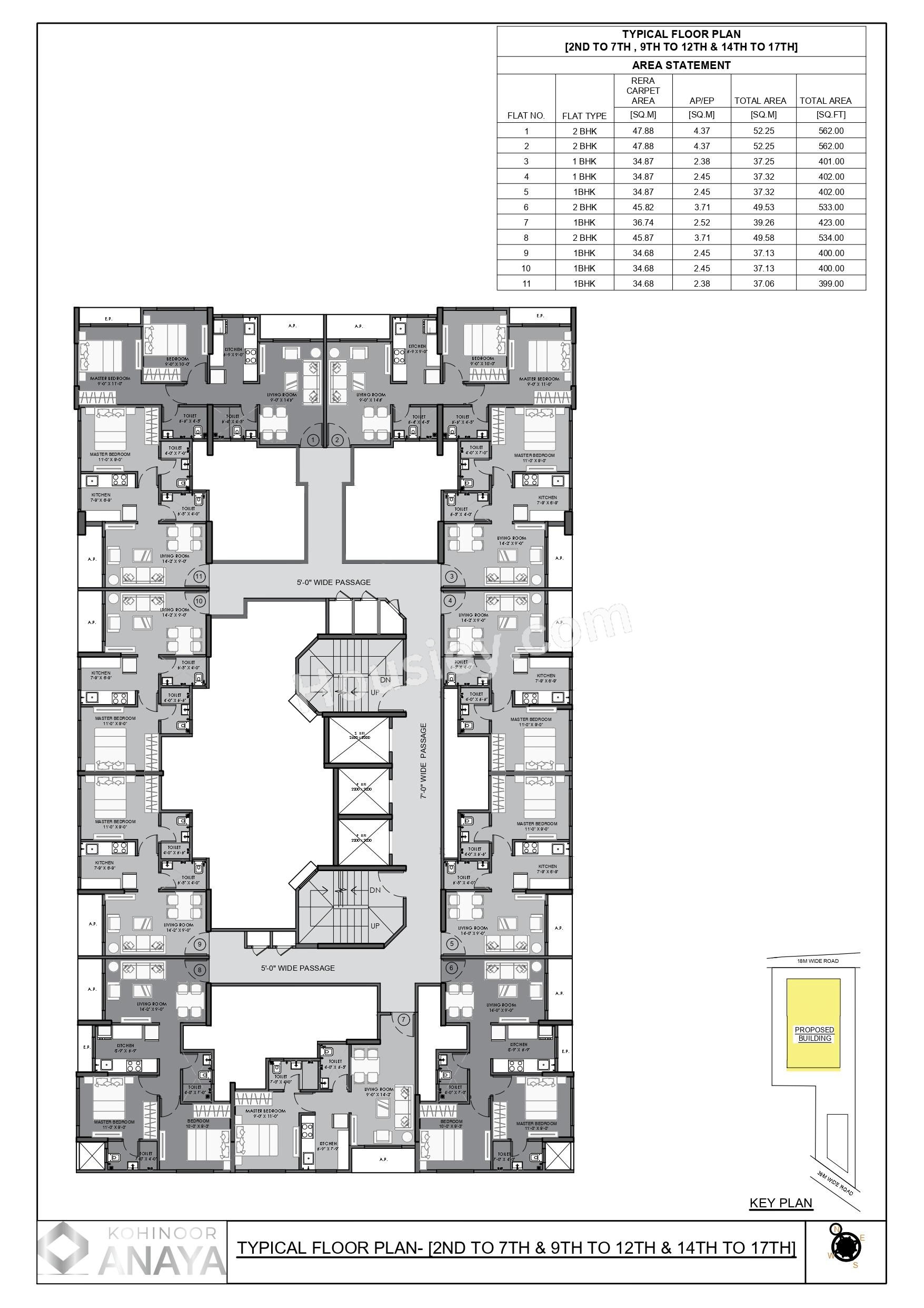
Carpet Area & Floor Plan
Anaya project has 1BHK, 2BHK premium residences with -
1BHK - 423 sqft
2BHK - 563 sqft
Kohinoor Anaya floor plan
Tower floor plan will have 11 flats 3 lifts & 2 staircase on each floor
Maintenance -
Kohinoor Anaya Mumbai Project maintenance varies with the configuration and the carpet area which are as follows-
1BHK - Rs 1500 per month
2BHK - Rs 2000 per month
Anaya Prices & its details can be found in the price section & Kohinoor Anaya Ulhasnagar brochure can be downloaded from the link mentioned below. Project has been praised by the home buyers & Kohinoor Group Ulhasnagar review is 4 out of 5 from over all the clients who have visited the site.
Off Shree Ram Chowk, Vitthalwadi, Ulhasnagar, Mumbai

Pros
Cons
Vitrified Tiles
Granite Kitchen Platform
Stainless Steel Sink
CCTV Camera
Jogging Track
Movie Theatre
Roof Top Sky Garden
Box Cricket
Yoga Zone
Meditation Zone
Barbeque Deck
Jacuzzi
Indoor games
Star Gazing
Gymnasium



| Carpet Area | All Inc. Price (Inc. of Taxes & Charges) | Min Downpayment (Inc. Taxes) | Parking | Unit Plan |
|---|---|---|---|---|
423 sqft | 41.00 Lacs All In | 6.00 Lacs | 3.5 Lacs | ![]() |

Is there any litigation against this proposed project:
NoKohinoor Anaya Proforma Sale Agreement
Kohinoor Anaya Proforma Allotment Letter
Kohinoor Anaya Layout Plan
Note: You can download more detailed documents by following this link
Kohiinoor Group

5 CitiesLocations
Bangalore Rural, Bangalore Urban, Mumbai City, Mumbai suburban, Pune


Housiey Legal: Free Real Estate Legal Consultation
Get Expert Advice on RERA, Builder Refunds, Area Mismatch, Stuck Projects & More - at No Cost!