Last updated: Mar 22, 2026









Land Parcel
Towers
Floors
Config
Carpet Area
RERA NO.
Possession Status
Target Possession
RERA Possession
Litigation
Hiranandani Group Kandivali West Project Overview
House Of Hiranandani Castalia Project will be constructed on 1.5 acres of land parcel, 1 tower with G+10P+37 floors having 2 BHK, 3 BHK premium residences.
House Of Hiranandani Castalia location
Project is located Opp. Dahanukarwadi Metro stn, Mahatma Gandhi Nagar, Kandivali West, Mumbai with -
Charkop Road - 1.7km
DMart - 2.2km
Kandivali Railway Station - 2.7km
House Of Hiranandani Castalia Kandivali West Project Amenities
First is Internal amenities -
Vitrified Tiles, Earthquake Resistant, Granite Platform, Stainless Steel Sink, RCC Frame Structure, Powder Coated Windows, Entrance Door In Veneer And Polish, Video Door Phone With Intercom Facility & many more
Hiranandani Group Kandivali West External Amenities
Project has 30+ luxurious amenities with likes of -
Gymnasium
Indoor Games
Reflexology Path
Amphitheatre
Party Lawn & Many More
Hiranandani Group Castalia Kandivali West Parking -
Project has one type of car parking facility -
1) Podium
House Of Hiranandani Castalia Possession -
Rera Possession - December 2025
Target Possession - October 2025
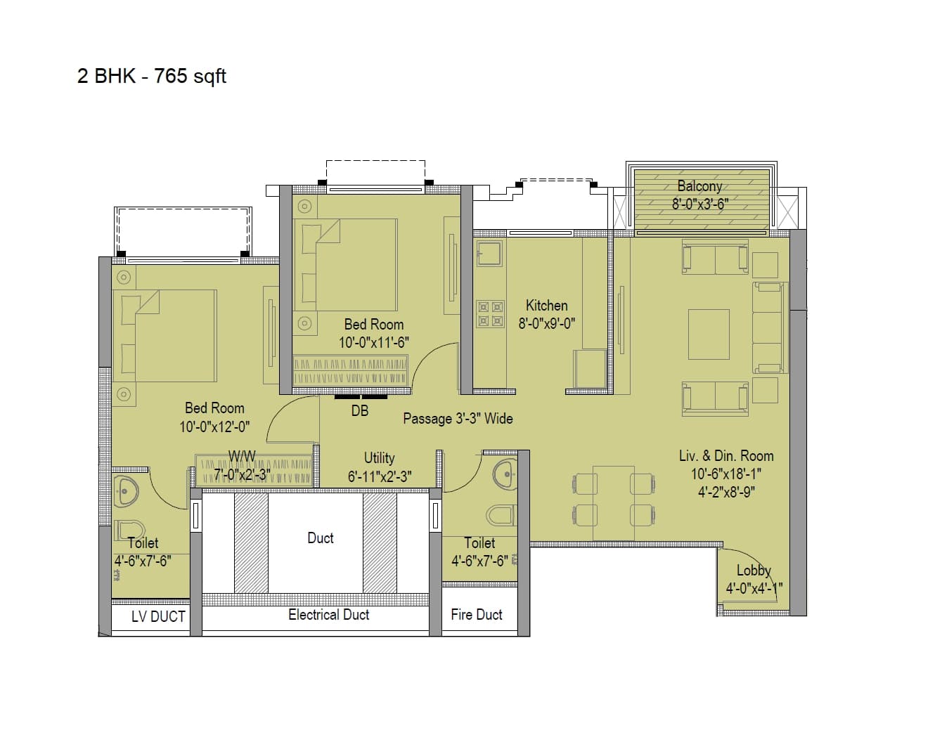
Carpet Area & Floor Plan
Hiranandani Castalia project has 2BHK, 3BHK premium residences with -
2BHK - 765 sqft
3BHK - 1055 sqft
House Of Hiranandani Castalia floor plan
Tower floor plan will have 8 flats 6 lifts & 2 staircases on each floor
Maintenance -
House Of Hiranandani Castalia Mumbai Project maintenance varies with the configuration and the carpet area which are as follows-
2BHK - 3100 per month
3BHK - 5400 per month
Hiranandani Castalia project sample flat is ready to view at the site.
Hiranandani Castalia Prices & its details can be found in the price section & House Of Hiranandani Castalia Kandivali West brochure can be downloaded from the link mentioned below. Project has been praised by the home buyers & Hiranandani Group Kandivali West review is 4 out of 5 from over all the clients who have visited the site.
Opp. Dahanukarwadi Metro stn, Mahatma Gandhi Nagar, Kandivali West, Mumbai

Pros
Cons
Video Door Phone
Intercom Facility
Vitrified Tiles
Granite Kitchen Platform
Stainless Steel Sink
Kids Pool
Squash Court
Multi Purpose Lawn
Amphitheater
Yoga Zone
Toddlers Play Area
Seating Area
Party Terrace
Table Tennis
Acupressure Pathway
Indoor games
party lawn
Badminton Court
Gymnasium
Multi purpose hall



| Carpet Area | All Inc. Price (Inc. of Taxes & Charges) | Min Downpayment (Inc. Taxes) | Parking | Unit Plan |
|---|---|---|---|---|
765 sqftSold Out | ![]() | - | - | ![]() |
701 sqftSold Out | ![]() | - | - | ![]() |


Is there any litigation against this proposed project:
NoHiranandani Group

5 CitiesLocations
Bangalore Rural, Bangalore Urban, Mumbai City, Mumbai suburban, Pune


















801 - 1883 sqft
Je and Vee Infrastructure
Developer

Housiey Legal: Free Real Estate Legal Consultation
Get Expert Advice on RERA, Builder Refunds, Area Mismatch, Stuck Projects & More - at No Cost!