Last updated: Apr 1, 2026













Land Parcel
Towers
Floors
Config
Carpet Area
RERA NO.
Possession Status
Target Possession
RERA Possession
Litigation
Godrej Aerospace Park Project Overview
Godrej Ananda Phase-2 will be constructed on 2.33acres of land parcel, 4towers with 3B+G+28 floors having 2 BHK, 3 BHK premium residences.
Godrej Ananda Phase-2 location
Project is located Near BK Halli Road, Aerospace Park, Bangalore with -
Bagalur Police Station - 2.6km
Shell India Market - 3.4km
Hunachur - 5.3km
Godrej Ananda Phase-2 Aerospace Park Project Amenities
First is Internal amenities -
Vitrified tiles, Branded Fittings, Kitchen Platform, SS Sink, Exhaust fan, Provision for power backup, Video door phones, CCTV, 3-tier security & many more
Godrej Properties Aerospace Park External Amenities
Project has 30+ luxurious amenities with likes of -
Clubhouse
Multipurpose hall
Gymnasium
Kid play area
Badminton court & Many More
Godrej Properties Ananda Phase-2 Aerospace Park Parking -
Project has only one type of car parking facility i.a Basement
Godrej Ananda Phase-2 Possession -
Rera Possession - December 2027
Target Possession - December 2024
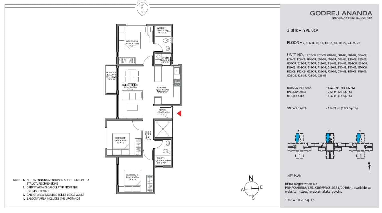
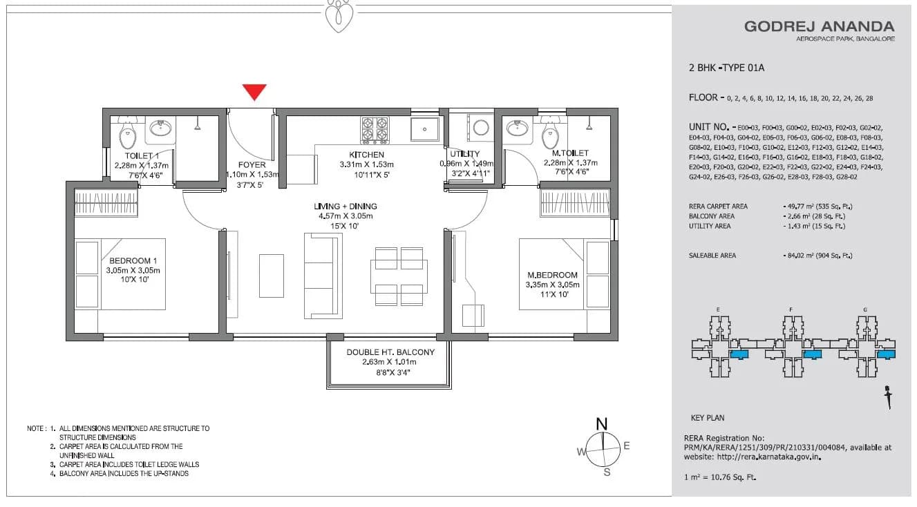
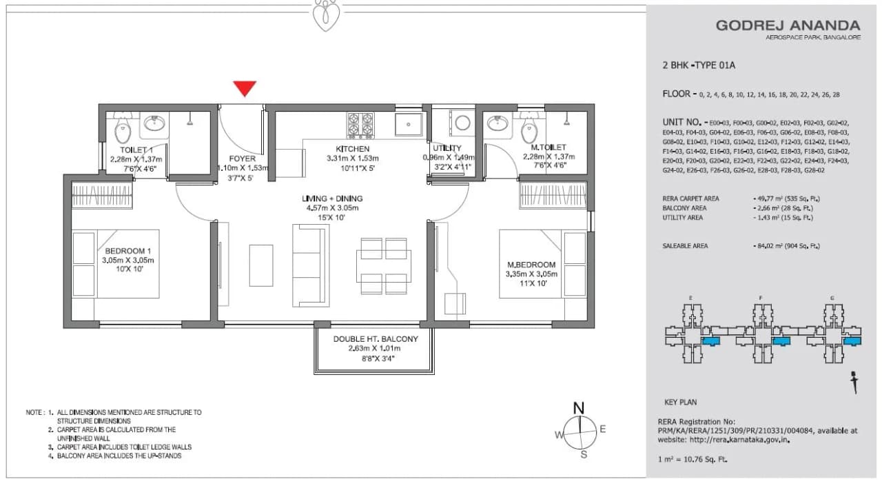
Built Up Area & Floor Plan
Ananda Phase-2 project has 2BHK, 3BHK premium residences with -
2BHK - 904 sqft
3BHK - (1229 to 1408) sqft
Godrej Ananda Phase-2 floor plan
Tower floor plans will have 6 flats & 2 lift 2 staircases on each floor
Maintenance -
Godrej Ananda Phase-2 Bangalore Project maintenance varies with the configuration and the carpet area which are as follows-
2BHK - 2500 per month
3BHK - (3500 - 4000) per month
Godrej Ananda Phase-2 project sample flat is ready to view at the site.
Godrej Ananda Phase-2 price & its details can be found in the price section & Godrej Ananda Phase-2 brochure can be downloaded from the link mentioned below. Project has been praised by the home buyers & Godrej Properties Aerospace Park review is 4 out of 5 from over all the clients who have visited the site.
Near BK Halli Road, Aerospace Park, Bangalore

Pros
1
Cons
1
Video Door Phone
Vitrified Tiles
Granite Kitchen Platform
Stainless Steel Sink
Exhaust Fan
3 Tier Security
CCTV Camera
Swimming Pool
Club House
Kids Play Area
Golf Course
Tennis Court
Yoga Zone
Creche Play Area
Indoor games
Badminton Court
Landscaped Garden
Skating Ring
Gymnasium
Multi purpose hall


| Build-up Area | Carpet Area | All Inc. Price (Inc. of Taxes & Charges) | Min Downpayment (Inc. Taxes) | Parking | Unit Plan |
|---|---|---|---|---|---|
904 sqft Sold Out | 569 sqftSold Out | ![]() | - | - | ![]() |


Is there any litigation against this proposed project:
NoGodrej Properties

7 CitiesLocations
Hyderabad, Ahmedabad, Bangalore Rural, Bangalore Urban, Mumbai City, Pune, Mumbai suburban

539 - 1793 sqft
Provident Housing
Developer

1059 - 2075 sqft
Genurise Builders
Developer
1662 - 2056 sqft
Genurise Builders
Developer

1097 - 4131 sqft
Puravankara Group
Developer
Housiey Legal: Free Real Estate Legal Consultation
Get Expert Advice on RERA, Builder Refunds, Area Mismatch, Stuck Projects & More - at No Cost!