















Land Parcel
Towers
Floors
Config
Carpet Area
RERA NO.
Possession Status
Target Possession
RERA Possession
Litigation
GHP Powai Project Overview
GHP Isle of Calm will be constructed on 3 acres of land parcel, 2 towers with 4B+G+30 floors having 1 BHK, 2 BHK premium residences.
GHP Isle of Calm location
Project is Located Near Vihar Lake Road, Mahatma Phule Nagar, Powai, Mumbai with -
Powai Garden - 1.7km
JVRL - 2.0km
Dmart - 4.6km
GHP Isle of Calm Powai Project Amenities
First is Internal amenities -
Granite Kitchen, Stainless steel sink, Vitrified tiles & many more
GHP Group Powai Amenities
Project has 35+ luxurious amenities with likes of -
Club house
Swimming Pool
Multipurpose Room
Mediation zone
Kids Play Area & Many More
GHP Group Isle of Calm Powai Parking -
Project has One type of car parking facility -
1) Basement
GHP Isle of Calm Possession -
Rera Possession - December 2029
Target Possession - December 2028
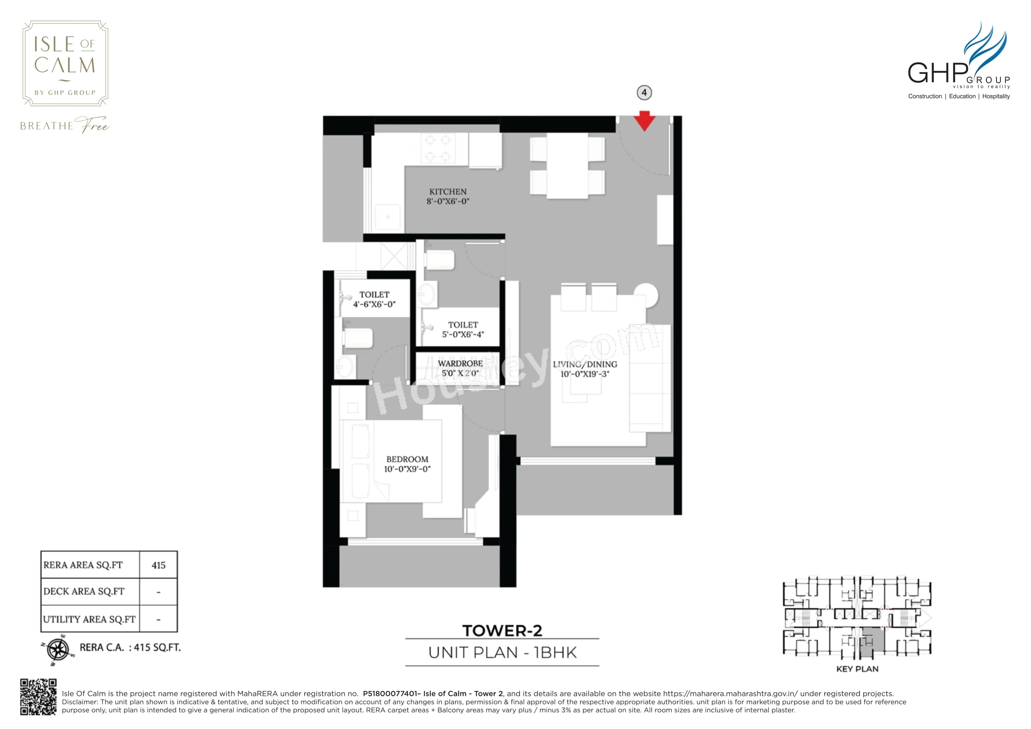
Carpet Area & Floor Plan
GHP Isle of Calm Powai project has 1BHK, 2BHK premium residences with -
1BHK - (415 to 463) sqft
2BHK - (717 to 759) sqft
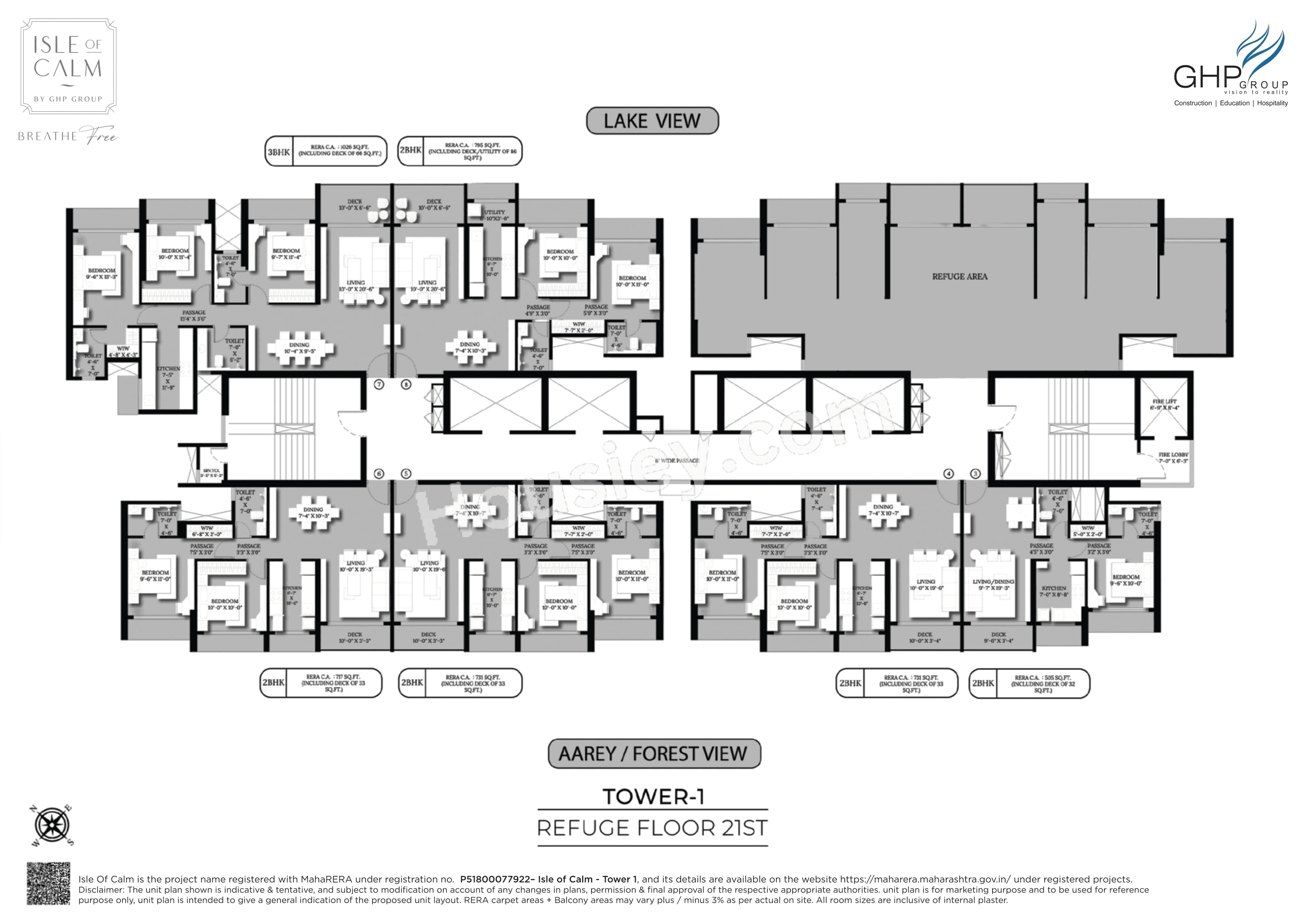
GHP Isle of Calm floor plan
Tower floor plan will have 8 flats 4 lifts & 2 staircases on each floor
Maintenance -
GHP Isle of Calm Mumbai Project maintenance varies with the configuration and the carpet area which are as follows-
1BHK - Rs (6200 - 6900) per month
2BHK - Rs (11000 - 11400) per month
Isle of Calm Powai project sample flat is ready to view at the site.
Isle of Calm Prices & its details can be found in the price section & GHP Isle of Calm Powai brochure can be downloaded from the link mentioned below. Project has been praised by the home buyers & GHP Group Powai review is 4 out of 5 from over all the clients who have visited the site.
Near Vihar Lake Road, Mahatma Phule Nagar, Powai, Mumbai

Pros
Cons
Vitrified Tiles
Granite Kitchen Platform
Stainless Steel Sink
CCTV Camera
Swimming Pool
Club House
Kids Play Area
Co Working Spaces
Library
Meditation Zone
Banquet Hall
Toddlers Play Area
Star Gazing
Badminton Court
Multi purpose hall










| Carpet Area | All Inc. Price (Inc. of Taxes & Charges) | Min Downpayment (Inc. Taxes) | Parking | Unit Plan |
|---|---|---|---|---|
415 sqftSold Out | ![]() | - | - | ![]() |
505 sqft | 1.45 Cr All In | 22.00 Lacs | 1 | ![]() |
463 sqftSold Out | ![]() | - | - | ![]() |


Is there any litigation against this proposed project:
NoGHP Isle of Calm Proforma Sale Agreement
GHP Isle of Calm Proforma Allotment Letter
GHP Isle of Calm Layout Plan
Note: You can download more detailed documents by following this link
GHP Group

2 CitiesLocations
Mumbai City, Mumbai suburban



1103 - 1679 sqft
Hiranandani Group
Developer






800 - 1000 sqft
Hiranandani Group
Developer

1850 - 2100 sqft
Hiranandani Group
Developer
Housiey Legal: Free Real Estate Legal Consultation
Get Expert Advice on RERA, Builder Refunds, Area Mismatch, Stuck Projects & More - at No Cost!