Last updated: May 13, 2026












Land Parcel
Towers
Floors
Config
Carpet Area
RERA NO.
Possession Status
Target Possession
RERA Possession
Litigation
DTG Kandivali West Project Overview
DTG Aspire will be constructed on 0.25 acre of land parcel, 1 tower with G+1C+2P+19 floor having 1 BHK, 2 BHK, 3 BHK premium residences.
DTG Aspire location
Project is located Near New Link Rd, Charkop, Kandivali West, Mumbai with -
Shimpoli Metro Station - 1.2km
DMart - 1.5km
Kandivali Railway Station - 3.4km
DTG Aspire Kandivali West Project Amenities
First is Internal amenities -
Vitrified Tiles, Earthquake Resistant, Granite Platform, Stainless Steel Sink, CCTV & many more
Dhariwal Thirani Group Kandivali West External Amenities
Project has 15+ amenities with likes of -
Gymnasium
Senior CItizen Area
Kids Play Area
Meditation Space & Many More
Dhariwal Thirani Group Aspire Kandivali West Parking -
Project has one type of car parking facility -
1) Podium Parking
DTG Aspire Possession -
Rera Possession - June 2029
Target Possession - June 2027
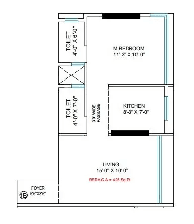
Carpet Area & Floor Plan
DTG Aspire project has 1BHK, 2BHK, 3BHK premium residences with -
1BHK - (373 to 425) sqft
2BHK - (550 to 602) sqft
3BHK - 800 sqft
DTG Aspire floor plan
Tower floor plan will have 5 flats 3 lifts & 1 staircase on each floor
Aspire Kandivali West sample flat is ready to view at site.
DTG Aspire Mumbai Prices & its details can be found in the price section & DTG Aspire Kandivali West brochure can be downloaded from the link mentioned below. Project has been praised by the home buyers & Dhariwal Thirani Group Kandivali West review is 4 out of 5 from over all the clients who have visited the site.
Near New Link Rd, Charkop, Kandivali West, Mumbai

Pros
Cons
Vitrified Tiles
Granite Kitchen Platform
Stainless Steel Sink
Kids Play Area
Garden
Senior Citizen Area
Meditation Zone
Seating Area
BBQ Lawn
Star Gazing
Gymnasium
Walking Track
Mini Theatre


| Carpet Area | All Inc. Price (Inc. of Taxes & Charges) | Min Downpayment (Inc. Taxes) | Parking | Unit Plan |
|---|---|---|---|---|
373 sqftSold Out | ![]() | - | - | ![]() |
425 sqftSold Out | ![]() | - | - | ![]() |


Is there any litigation against this proposed project:
NoDTG Aspire Commencement Certificate
DTG Aspire Legal Title Report
DTG Aspire Layout Plan
Note: You can download more detailed documents by following this link
Dhariwal Thirani Group

2 CitiesLocations
Mumbai City, Mumbai suburban

















801 - 1883 sqft
Je and Vee Infrastructure
Developer


Housiey Legal: Free Real Estate Legal Consultation
Get Expert Advice on RERA, Builder Refunds, Area Mismatch, Stuck Projects & More - at No Cost!