Last updated: Jan 18, 2026











Land Parcel
Towers
Floors
Config
Carpet Area
RERA NO.
Possession Status
Target Possession
RERA Possession
Litigation
Dem Andheri East Project Overview
Dem Panache Project will be constructed on 2 acres of land parcel, 3 towers with 1B+G+12 floors having 1 BHK, 2 BHK, 2.5 BHK, 3 BHK premium residences.
Dem Panache Location
Project is located Near Dr Karanjia Marg, Chakala, Andheri East, Mumbai with -
Chakala Metro Station - 800m
WEH - 1.2km
Chhatrapati Shivaji Maharaj International Airport - 2.2km
Dem Panache Andheri East Project Amenities
First is Internal amenities -
Vitrified Tiles, Granite Platform, SS sink & many more
Dem Infra Andheri East External Amenities
Project has 20+ amenities with likes of -
Swimming Pool
Gymnasium
Multipurpose Hall
Jogging Track & many more
Dem Infra Panache Andheri East Parking -
Project has one type of car parking facility -
1) Basement
Dem Panache Possession -
Rera Possession - June 2027
Target Possession - October 2026
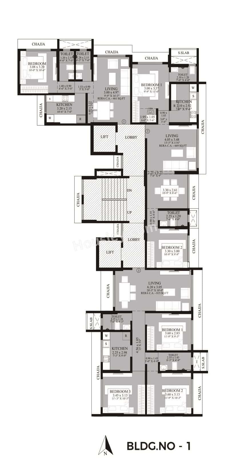
Carpet Area & Floor Plan
Panache project has 1BHK, 2BHK, 2.5BHK, 3BHK premium residences with -
1BHK - (409 to 461) sqft
2BHK - (532 to 669) sqft
2.5BHK - 816 sqft
3BHK - 969 sqft
Dem Panache floor plan
Tower floor plan will have 4 flats 3 lifts & 1 staircase on each floor
Maintenance -
Dem Panache Mumbai Project maintenance varies with the configuration and the carpet area which are as follows-
1BHK - Rs (4900 - 5500) per month
2BHK - Rs (6400 - 8000) per month
2.5BHK - Rs 9800 per month
3BHK - Rs 12000 per month
Panache project sample flat is not ready to view at the site.
Panache Andheri East Prices & its details can be found in the price section & Dem Panache Andheri East brochure can be downloaded from the link mentioned below. Project has been praised by the home buyers & Dem Infra Andheri East review is 4 out of 5 from over all the clients who have visited the site
Near Dr Karanjia Marg, Chakala, Andheri East, Mumbai

Pros
Cons
Vitrified Tiles
Granite Kitchen Platform
Stainless Steel Sink
Kids Play Area
Multi Purpose Court
Senior Citizen Area
Flower Garden
Seating Area
Indoor games
party lawn
Gymnasium
Fitness Deck
Mini Theatre
Multi purpose hall




| Carpet Area | All Inc. Price (Inc. of Taxes & Charges) | Min Downpayment (Inc. Taxes) | Parking | Unit Plan |
|---|---|---|---|---|
409 sqft | 1.63 Cr All In | 24.00 Lacs | 1 | ![]() |
423 sqft | 1.68 Cr All In | 25.00 Lacs | 1 | ![]() |
461 sqft | 1.82 Cr All In | 27.00 Lacs | 1 | ![]() |

Is there any litigation against this proposed project:
Yes| Court Name | City | Case Type | Petition | Case Number | Year | Case Status |
|---|---|---|---|---|---|---|
| Cooperative Court | Suit | 278 | 2023 | |||
| Bombay City Civil Court Dindoshi | Suit | 367 | 2024 | |||
| Bombay High Court | Commercial Arbitration Petition | 13474 | 2024 |
Dem Panache Commencement Certificate
Dem Panache Legal Title Report
Dem Panache Layout Plan
Note: You can download more detailed documents by following this link
Dem Infra

2 CitiesLocations
Mumbai City, Mumbai suburban





















Housiey Legal: Free Real Estate Legal Consultation
Get Expert Advice on RERA, Builder Refunds, Area Mismatch, Stuck Projects & More - at No Cost!