













Land Parcel
Towers
Floors
Config
Carpet Area
RERA NO.
Possession Status
Target Possession
RERA Possession
Litigation
Continental World Nerul Project Overview
Continental Signature Project will be constructed on 0.66 acre of land parcel, 1 tower with G+P4+24 floors having 3 BHK premium residences .
Continental Signature Nerul location
Project is located On Savitri bai Phule Marg, Sector 19, Nerul, Navi Mumbai -
Dmart - 600m
Nerul Railway Station - 1km
Nexus Seawoods Mall - 1.8km
Continental Signature Nerul Project Amenities
First is Internal amenities -
Vitrified Tiles, Stainless Steel Sink, CCTV, Fire Fighter & many more
Continental World Nerul External Amenities
Project has 20+ amenities with likes of -
Swimming Pool
Fitness Center
Turf (Net Cricket)
Kids Play Area
Amphitheater & Many More
Continental World Continental Signature Nerul Parking -
Project has one type of car parking facility -
1) Podium
Continental Signature Possession -
Rera Possession - December 2029
Target Possession - December 2026
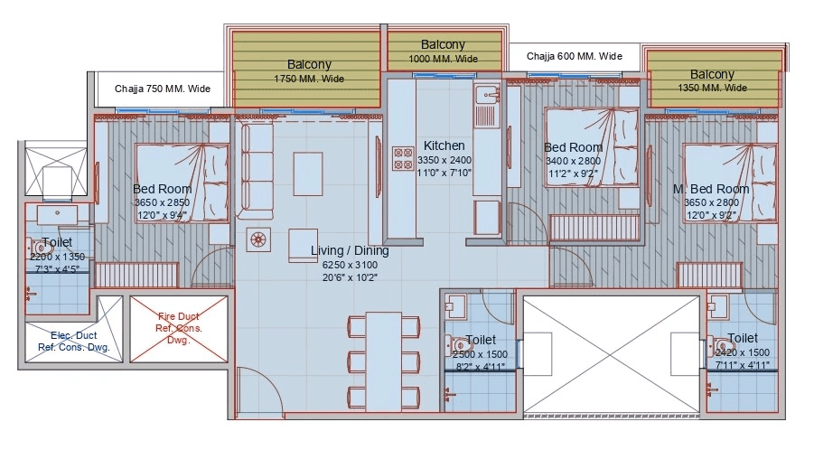
Carpet Area & Floor Plan
Continental Signature project has 3 BHK premium residences with -
3BHK - (929 to 1153) sqft
Continental Signature floor plan
Tower floor plan will have 3 flats 2 lifts & 2 staircases on each floor
Maintenance -
Continental Signature Navi Mumbai Project maintenance varies with the configuration and the carpet area which are as follows-
3BHK - Rs (13000 - 16000)per month
Signature Prices & its details can be found in the price section & Continental Signature Nerul brochure can be downloaded from the link mentioned below. Project has been praised by the home buyers & Continental World Nerul review is 4 out of 5 from over all the clients who have visited the site.
On Savitri bai Phule Marg, Sector 19, Nerul, Navi Mumbai

Pros
Cons
Vitrified Tiles
Stainless Steel Sink
CCTV Camera
Fire Fighting
Swimming Pool
Kids Play Area
Net Cricket
Outdoor Chess
Amphitheater
Seating Area
Creche Play Area
Gazebo
Indoor games
party lawn
Fitness Deck







| Carpet Area | All Inc. Price (Inc. of Taxes & Charges) | Min Downpayment (Inc. Taxes) | Parking | Unit Plan |
|---|---|---|---|---|
929 sqft | 2.70 Cr All In | 41.00 Lacs | 10 lacs | ![]() |
1153 sqft | 3.24 Cr All In | 49.00 Lacs | 10 lacs | ![]() |

Is there any litigation against this proposed project:
NoContinental Signature Proforma Sale Agreement
Continental Signature Proforma Allotment Letter
Continental Signature Layout Plan
Note: You can download more detailed documents by following this link
Continental World

2 CitiesLocations
Mumbai City, Mumbai suburban







1067 - 1067 sqft
Platinum Group
Developer

677 - 677 sqft
Kamdhenu Realities
Developer
Housiey Legal: Free Real Estate Legal Consultation
Get Expert Advice on RERA, Builder Refunds, Area Mismatch, Stuck Projects & More - at No Cost!