



Land Parcel
Towers
Floors
Config
Carpet Area
RERA NO.
Possession Status
Target Possession
RERA Possession
Litigation
Balwadkar Balewadi Project Overview
Balwadkar Marqis will be constructed on 1 acre of land parcel, 5 towers with B+G+11 floors having 3BHK premium residences.
Balwadkar Marqis location
Project is located Near Patil Wasti, Patil Nagar, Balewadi, Pune with -
Radha Chowk - 1.9km
D-Mart Baner - 2.8km
Balewadi Phata - 3.9km
Balwadkar Marqis Balewadi Project Amenities
First is Internal amenities -
Vitrified Tiles, Granite Kitchen Platform, Anti-Skid Ceramic Tiles, Earthquake RCC Resistant, SS Sink, MS Grills, SS Glass Railing, Power Backup For Common Areas, Gypsum Finish Internal Walls, Provision For Mosquito Mesh & many more
Balwadkar Housing Corp Balewadi External Amenities
Project has 15+ amenities with likes of -
Multipurpose Community Hall
Indoor Games Area
Kids’ Play Zone
Meditation Area & Many More
Balwadkar Housing Corp Marqis Balewadi Parking -
Project has two types of car parking facilities -
1) Basement
2) Ground
Balwadkar Marqis Possession -
Rera Possession - December 2029
Target Possession - June 2029
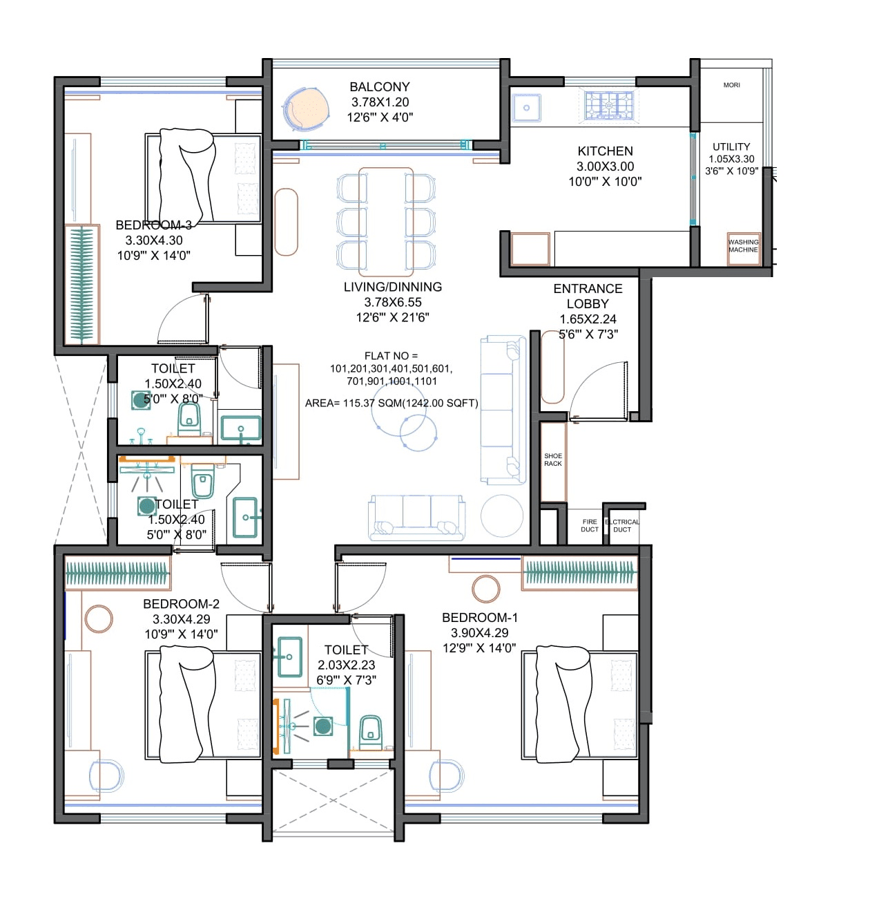
Carpet Area & Floor Plan
Balwadkar Marqis Balewadi project has 3BHK premium residences with -
3BHK - (1242 to 1249) sqft
Balwadkar Marqis floor plan
Tower floor plan will have 2 flats 2 lifts & 2 staircases on each floor
Maintenance -
Balwadkar Marqis Pune Project maintenance varies with the configuration and the carpet area which are as follows-
3BHK - Rs (5700 - 5800) per month
Marqis Balewadi Prices & its details can be found in the price section & Balwadkar Marqis Balewadi brochure can be downloaded from the link mentioned below. Project has been praised by the home buyers & Balwadkar Housing Corp Balewadi review is 4 out of 5 from over all the clients who have visited the site.
Near Patil Wasti, Patil Nagar, Balewadi, Pune.
Pros
Cons
Vitrified Tiles
Granite Kitchen Platform
Stainless Steel Sink
Mosquito Mesh Windows
Kids Play Area
Jogging Track
Garden
Meditation Zone
Indoor games
Yoga Deck
Landscaped Garden
Walking Track
Fitness Studio
Multi purpose hall


| Carpet Area | All Inc. Price (Inc. of Taxes & Charges) | Min Downpayment (Inc. Taxes) | Parking | Unit Plan |
|---|---|---|---|---|
1242 sqft | 1.93 Cr All In | 29.00 Lacs | 1 | ![]() |
1249 sqft | 1.94 Cr All In | 29.00 Lacs | 1 | ![]() |

Is there any litigation against this proposed project:
NoCommencement Certificate Balwadkar Marqis
Legal Title Report Balwadkar Marqis
Layout Plan Balwadkar Marqis
Note: You can download more detailed documents by following this link
Balwadkar Housing Corp

1 CityLocations
Pune

811 - 1448 sqft
Majestique Landmarks
Developer

1377 - 4385 sqft
Kasturi Housing
Developer



821 - 1231 sqft
Majestique Landmarks
Developer
1883 - 2013 sqft
Almal Inspired Spaces
Developer

1102 - 2683 sqft
Vilas Javdekar Developers
Developer

1425 - 1425 sqft
Platinum Properties
Developer


1246 - 3742 sqft
Kasturi Housing
Developer


1350 - 1350 sqft
Varun Developers
Developer


Housiey Legal: Free Real Estate Legal Consultation
Get Expert Advice on RERA, Builder Refunds, Area Mismatch, Stuck Projects & More - at No Cost!