







Land Parcel
Towers
Floors
Config
Carpet Area
RERA NO.
Possession Status
Target Possession
RERA Possession
Litigation
Balaji Baner Project Overview
Balaji Oriana Nest Project will be constructed on 0.41 acre of land parcel, 1 tower with G+7 floors having 2BHK, 3BHK premium residences .
Balaji Oriana Nest Location
Project is located Near Madhavbaug Society, Balewadi Phata, Baner, Pune with-
Jupiter Hospital - 750m
Radha Chowk - 2.4km
D-Mart Baner - 3.3km
Balaji Oriana Nest Baner Project Amenities
First is Internal amenities -
Vitrified tiles, Anti - Skid Ceramic, CP Fittings Jaquar, Exhaust fan, Power backup, Digital Lock, Video Door Phone, CP Sanitary Fittings, Granite Kitchen Platform, SS Sink, powder coated aluminium windows, Rain Water Harvesting, Earthquake Resistant, Solarwater Connection, Mosquito Mesh & many more
Balaji Builders Baner External Amenities
Project has 15+ luxurious amenities with likes of -
Gymnasium,
Kids Play Area
Multipurpose Hall
Senior Citizens Sit out
Party Lawn & Many More
Balaji Builders Oriana Nest Baner Parking -
Project has one type of car parking facility -
1) Ground
Balaji Oriana Nest Possession -
Rera Possession - December 2025
Target Possession - March 2025
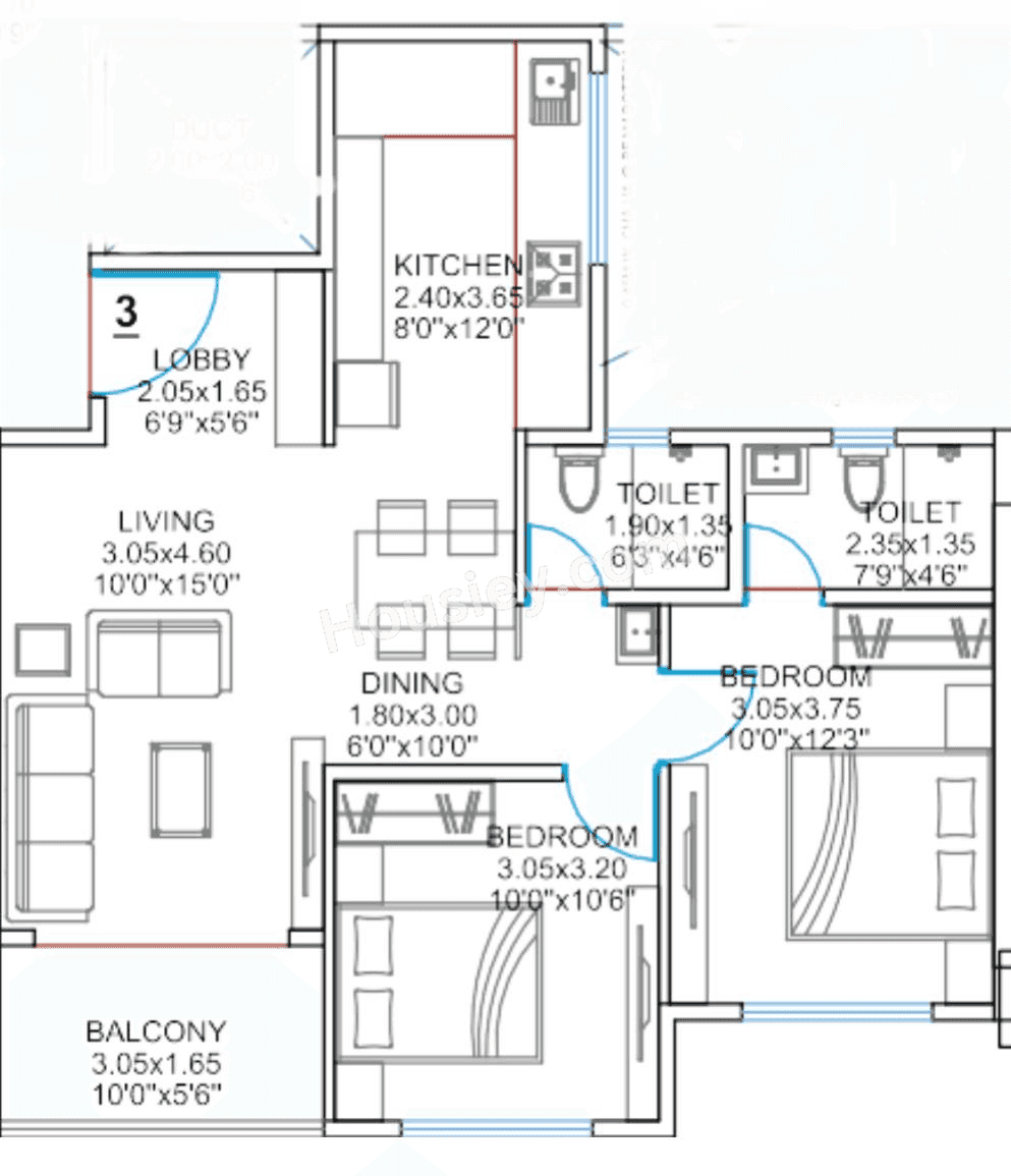
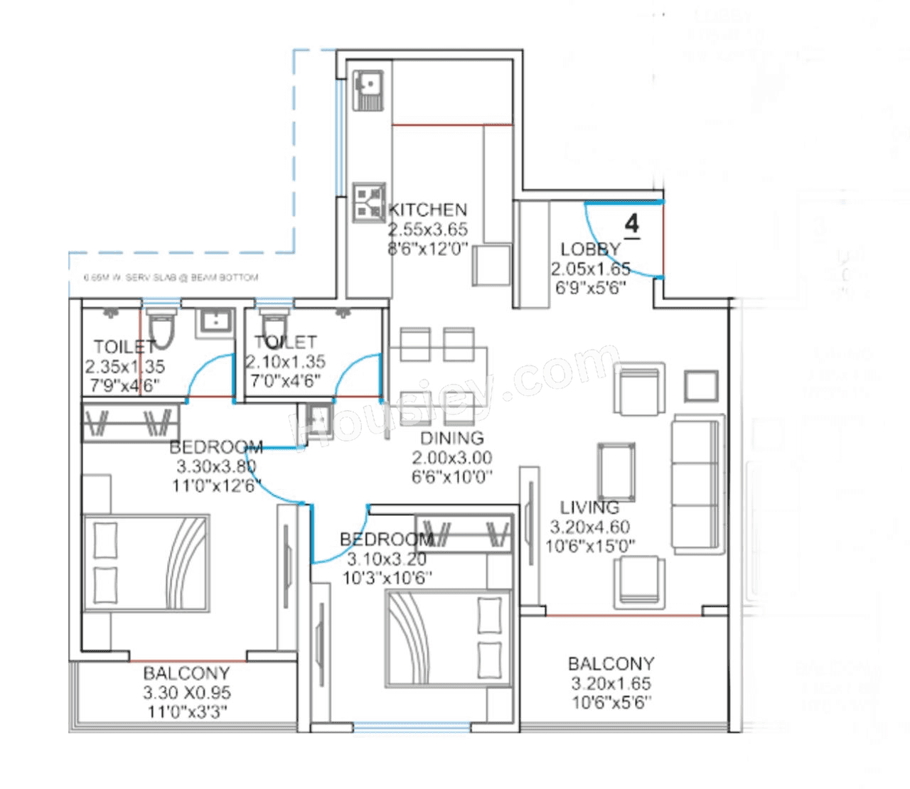
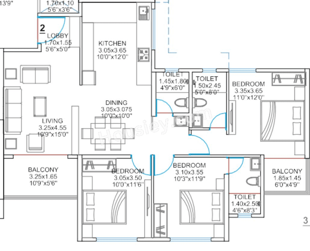
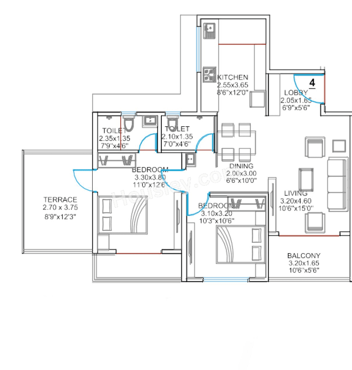
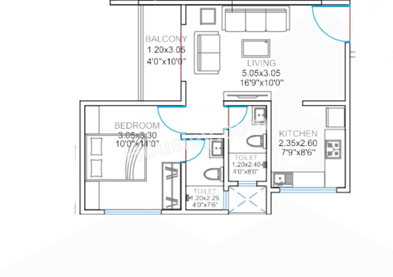
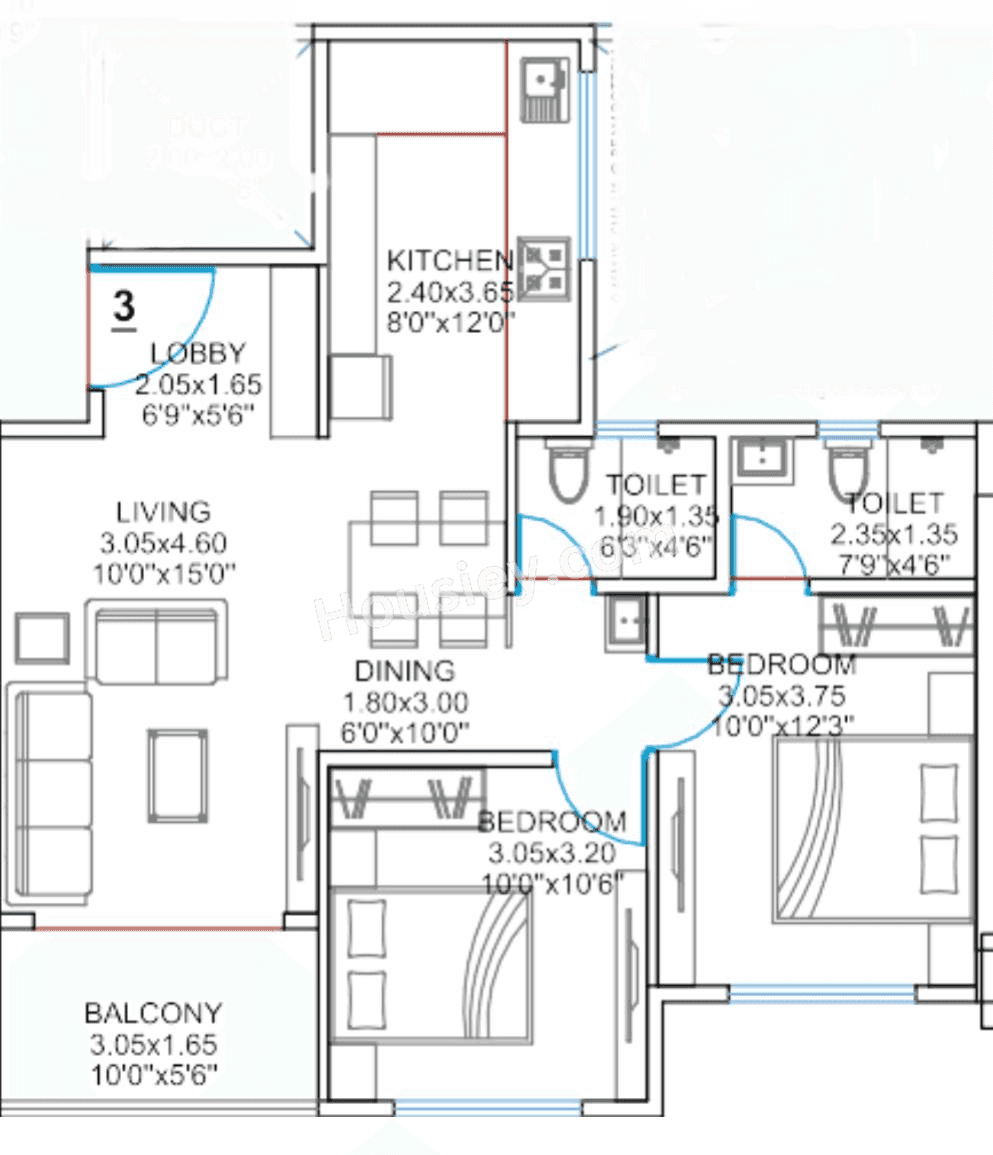
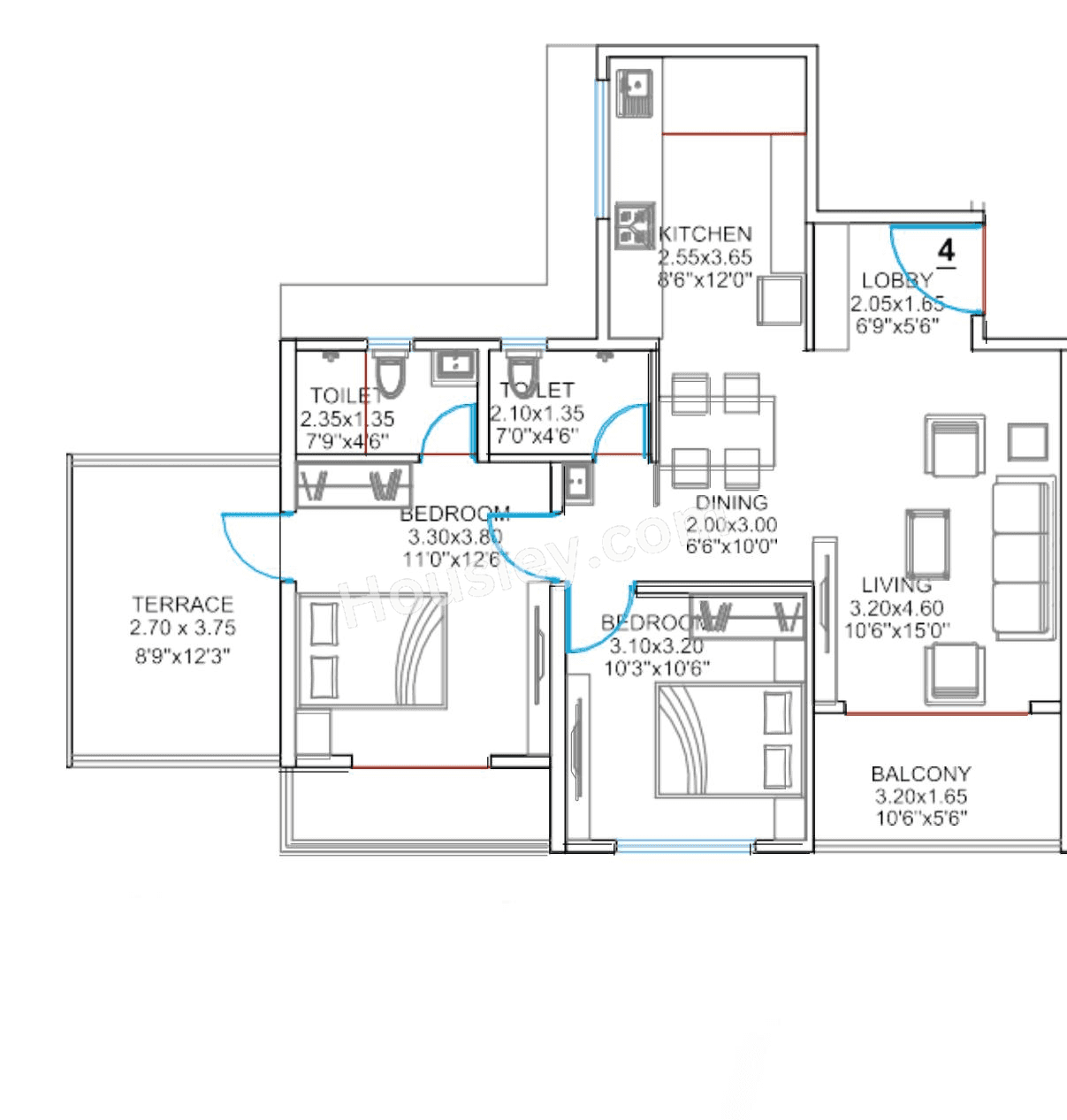
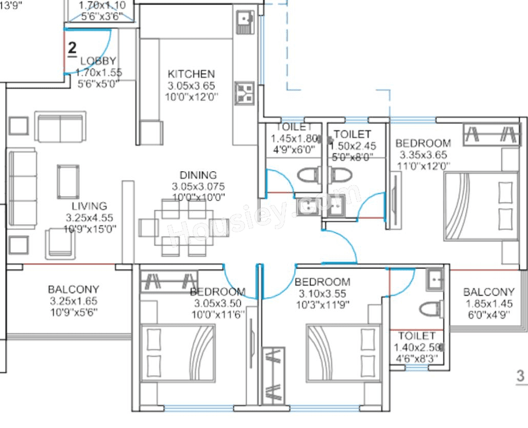
Carpet Area & Floor Plan
Balaji Oriana Nest Baner project has 2BHK, 3BHK premium residences with -
2BHK - (704 to 931) sqft
3BHK - 1121 sqft
Balaji Oriana Nest floor plan
Tower floor plan will have 4 flats 1 lift & 1 staircases on each floor
Maintenance -
Balaji Oriana Nest Pune Project maintenance varies with the configuration and the carpet area which are as follows-
2BHK - Rs (2800 - 3700) per month
3BHK - Rs 4500 per month
Oriana Nest Baner Prices & its details can be found in the price section & Balaji Oriana Nest Baner brochure can be downloaded from the link mentioned below. Project has been praised by the home buyers & Balaji Builders Baner review is 4 out of 5 from over all the clients who have visited the site.
Near Madhavbaug Society, Balewadi Phata, Baner, Pune

Pros
Cons
Digital Lock
Video Door Phone
Vitrified Tiles
Jaguar Fittings
Granite Kitchen Platform
Stainless Steel Sink
Exhaust Fan
+2 More
Kids Play Area
Jogging Track
Senior Citizen Area
Indoor games
party lawn
Gymnasium
Multi purpose hall












| Carpet Area | All Inc. Price (Inc. of Taxes & Charges) | Min Downpayment (Inc. Taxes) | Parking | Unit Plan |
|---|---|---|---|---|
704 sqft | 1.01 Cr All In | 15.00 Lacs | 1 | ![]() |
725 sqft | 1.04 Cr All In | 16.00 Lacs | 1 | ![]() |
858 sqftSold Out | ![]() | - | - | ![]() |
931 sqft | 1.33 Cr All In | 20.00 Lacs | 1 | ![]() |

Is there any litigation against this proposed project:
NoCommencement Certificate Balaji Oriana Nest
Legal Title Report Balaji Oriana Nest
Layout Plan Approval Balaji Oriana Nest
Note: You can download more detailed documents by following this link
Balaji Builders

1 CityLocations
Pune


1140 - 1841 sqft
Majestique Landmarks
Developer






1434 - 1434 sqft
Sukhwani Associates
Developer
350 - 1189 sqft
Kalpataru Group
Developer

1136 - 1733 sqft
Kolte Patil Developers
Developer
934 - 1460 sqft
Bluepearl Group
Developer


1343 - 1949 sqft
Space Builders Group
Developer




Housiey Legal: Free Real Estate Legal Consultation
Get Expert Advice on RERA, Builder Refunds, Area Mismatch, Stuck Projects & More - at No Cost!