Last updated: May 6, 2026







Land Parcel
Towers
Floors
Config
Carpet Area
RERA NO.
Possession Status
Target Possession
RERA Possession
Litigation
Avhad Mahim West Project Overview
Avhad Bayline will be constructed on 1 Acre of land parcel, 1 tower with G+9P+33 floors having 2 BHK, 3 BHK premium residences.
Avhad Bayline location
Project is Located On Lady Jamshedji Rd, Mahim West, Mumbai with -
Metro Stn - 170m
Mahim Railway Stn - 850m
Mahim-Sion Link Rd - 1.6km
Avhad Bayline Mahim West Project Amenities
First is Internal amenities -
Vitrified Tiles, Branded Fittings, Kitchen Platform, Anodised Aluminium Windows Powder Coated Finish & many more
Avhad Group Mahim West External Amenities
Project has 10+ amenities with likes of -
Landscaped Garden
Swimming Pool
Gymnasium
Walking Track & Many More
Avhad Group Bayline Mahim West Parking -
Project has one type of car parking facility -
1) Podium
Avhad Bayline Possession -
Rera Possession - April 2031
Target Possession - April 2030
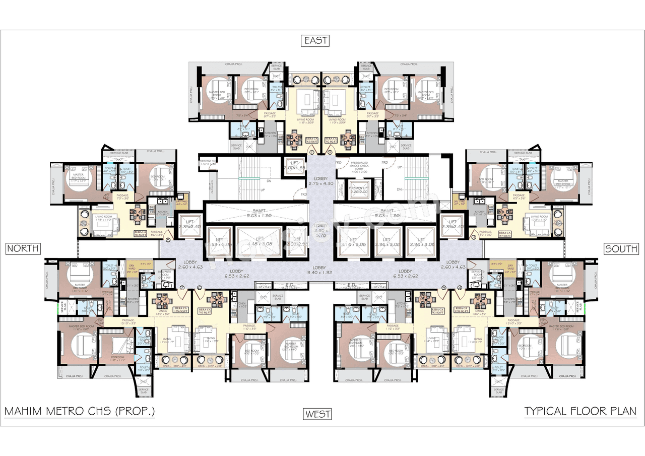
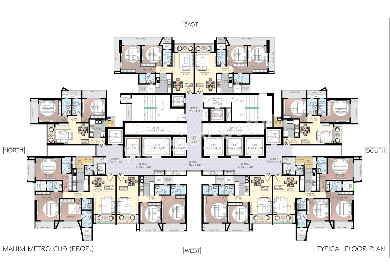
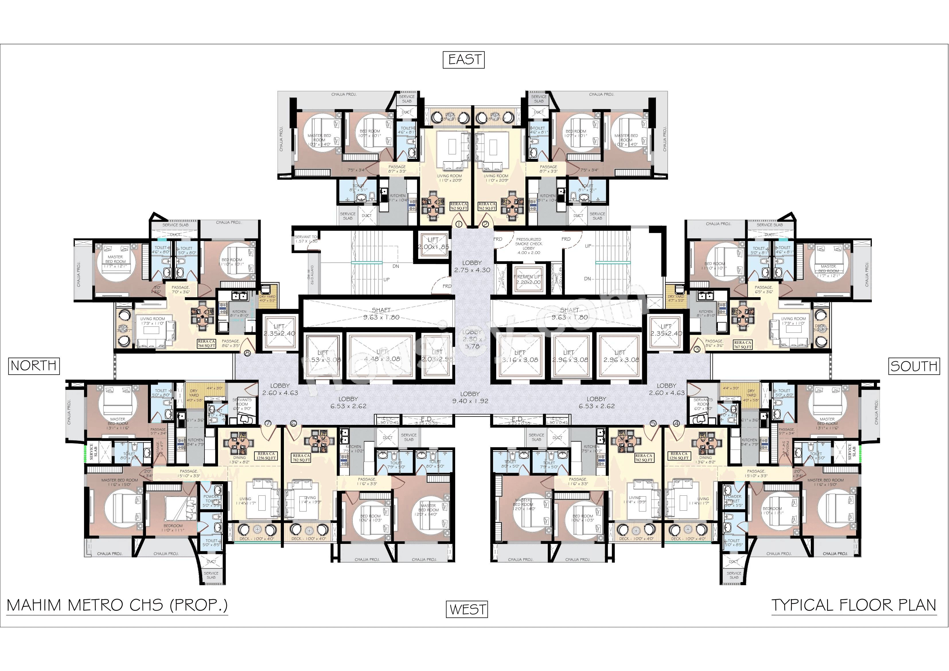
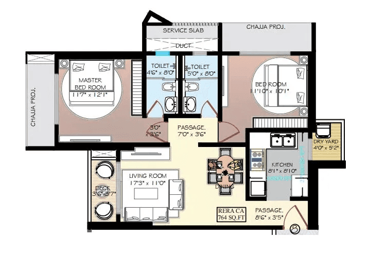
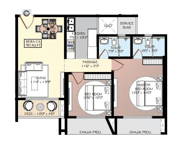
Carpet Area & Floor Plan
Bayline project has 2BHK, 3BHK premium residences with -
2BHK - (762 to 782) sqft
3BHK - 1256 sqft
Avhad Bayline floor plan
Tower floor plan will have 8 flats 10 lifts & 2 staircases on each floor
Avhad Bayline Mumbai Prices & its details can be found in the price section & Avhad Bayline Mahim West brochure can be downloaded from the link mentioned below. Project has been praised by the home buyers & Avhad Group Mahim West review is 4 out of 5 from over all the clients who have visited the site.
On Lady Jamshedji Rd, Mahim West, Mumbai
Pros
Cons
Vitrified Tiles
Granite Kitchen Platform
Branded Fittings
Swimming Pool
Kids Play Area
Garden
Senior Citizen Area
Meditation Zone
Seating Area
Indoor games
Yoga Deck
Gymnasium


| Carpet Area | All Inc. Price (Inc. of Taxes & Charges) | Min Downpayment (Inc. Taxes) | Parking | Unit Plan |
|---|---|---|---|---|
762 sqft | 3.81 Cr All In | 57.00 Lacs | 1 | ![]() |
764 sqft | 3.82 Cr All In | 57.00 Lacs | 1 | ![]() |
767 sqft | 3.83 Cr All In | 57.00 Lacs | 1 | ![]() |
782 sqft | 3.91 Cr All In | 59.00 Lacs | 1 | ![]() |

Is there any litigation against this proposed project:
Yes| Court Name | City | Case Type | Petition | Case Number | Year | Case Status |
|---|---|---|---|---|---|---|
| CITY CIVIL COURT MUMBAI | Mumbai | Civil | Suit | 101882 | 2023 | Ongoing |
Avhad Bayline Commencement Certificate
Avhad Bayline Legal Title Report
Avhad Bayline Layout Plan
Note: You can download more detailed documents by following this link
Avhad Group

2 CitiesLocations
Mumbai City, Mumbai suburban














Housiey Legal: Free Real Estate Legal Consultation
Get Expert Advice on RERA, Builder Refunds, Area Mismatch, Stuck Projects & More - at No Cost!