Last updated: Mar 25, 2026




















Land Parcel
Towers
Floors
Config
Carpet Area
RERA NO.
Possession Status
Target Possession
RERA Possession
Litigation
Asmita Mira Road East Project Overview
Asmita Grand Maison will be constructed on 1.35 Acres of land parcel, 2 towers with G+6P+27 floors having 1 BHK, 2 BHK, Jodi premium residences.
Asmita Grand Maison location
Project is located Off Naya Nagar Road, Naya Nagar, Mira Road East, Mumbai with -
Mira Road Railway Station - 900m
Maxus Mall - 3.0km
DMart - 3.0km
Asmita Grand Maison Mira Road East Project Amenities
First is Internal amenities -
Vitrified Tiles, Branded Fittings, Kitchen Platform & many more
Asmita Group Mira Road East External Amenities
Project has 20+ amenities with likes of -
Kids Pool
Table Tennis Play Ares
Carrom Play Area
Gymnasium
Yoga Centre & Many More
Asmita Group Grand Maison Mira Road East Parking -
Project has one type of car parking facility i.a
1) Podium
Asmita Grand Maison Possession -
Rera Possession - December 2027
Target Possession - December 2026
Carpet Area & Floor Plan
Sky Park project has 1BHK, 2BHK, Jodi premium residences with -
1BHK - (487 to 493) sqft
2BHK - (702 to 728) sqft
Jodi - 986 sqft
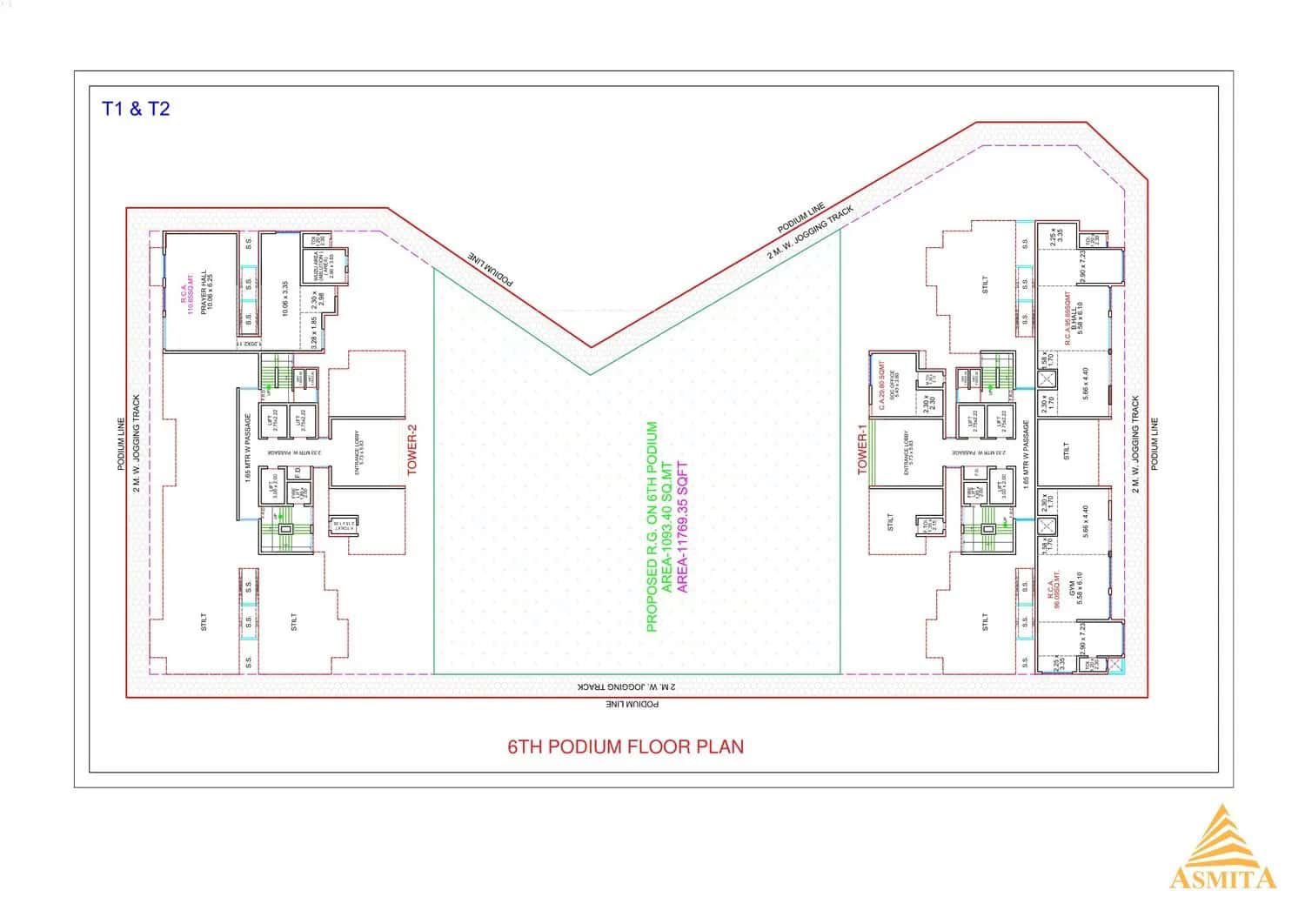
Asmita Grand Maison floor plan
Tower floor plan will have 8 flats 4 lifts & 2 staircases at each floor
Grand Maison Mira Road East sample flat is ready to view at the site
Asmita Grand Maison Mumbai Prices & its details can be found in the price section & Asmita Grand Maison brochure can be downloaded from the link mentioned below. Project has been praised by the home buyers & Asmita Group Mira Road East review is 4 out of 5 from over all the clients who have visited the site.
Off Naya Nagar Rd, Naya Nagar, Mira Road East, Mumbai

Pros
Cons
Vitrified Tiles
Car charging Point
Granite Kitchen Platform
Branded Fittings
Kids Play Area
Senior Citizen Area
Kids Pool
Tennis Court
Rooftop Deck
Basketball Court
Yoga Zone
Banquet Hall
Seating Area
Carrom
Table Tennis
Indoor games
Badminton Court
Gymnasium
Walking Track



| Carpet Area | All Inc. Price (Inc. of Taxes & Charges) | Min Downpayment (Inc. Taxes) | Parking | Unit Plan |
|---|---|---|---|---|
487 sqftSold Out | ![]() | - | - | ![]() |
493 sqftSold Out | ![]() | - | - | ![]() |


Is there any litigation against this proposed project:
NoAsmita Grand Maison Commencement Certificate
Asmita Grand Maison Legal Title Report
Asmita Grand Maison Layout Plan
Note: You can download more detailed documents by following this link
Asmita Group

2 CitiesLocations
Mumbai suburban, Mumbai City



425 - 1029 sqft
Sanghvi S Group
Developer


394 - 1610 sqft
Kalpataru Group
Developer










400 - 670 sqft
Sahakar Group
Developer


Housiey Legal: Free Real Estate Legal Consultation
Get Expert Advice on RERA, Builder Refunds, Area Mismatch, Stuck Projects & More - at No Cost!