












Land Parcel
Towers
Floors
Config
Carpet Area
RERA NO.
Possession Status
Target Possession
RERA Possession
Litigation
Ankuraa Kadugodi Project Overview
Ankuraa Meridian will be constructed on 3.38 acres of land parcel, 4 towers with B+G+14 floors having 2BHK, 2.5BHK, 3BHK premium residences.
Ankuraa Meridian location
Project is located Off Whitefield - Hoskote Rd, Belathur, Kadugodi, Bangalore with -
Belathur Main Road - 500m
Whitefield (Kadugodi) Metro Station - 2.4 km
Park Square Mall - 4.5 km
Ankuraa Meridian Kadugodi Project Amenities
First is Internal amenities -
Vitrified Tiles, Branded Fittings, Kitchen Platform, SS Sink, CCTV & many more
Ankuraa Group Kadugodi External Amenities
Project has 35+ luxurious amenities with likes of -
Basketball
Badminton
Gymnasium
Kids Play Area
Swimming Pool & Many More
Ankuraa Group Meridian Kadugodi Parking -
Project has two types of car parking facilities which are as follows
Ground & Basement
Ankuraa Meridian Kadugodi Possession -
Rera Possession - June 2027
Target Possession - December 2026
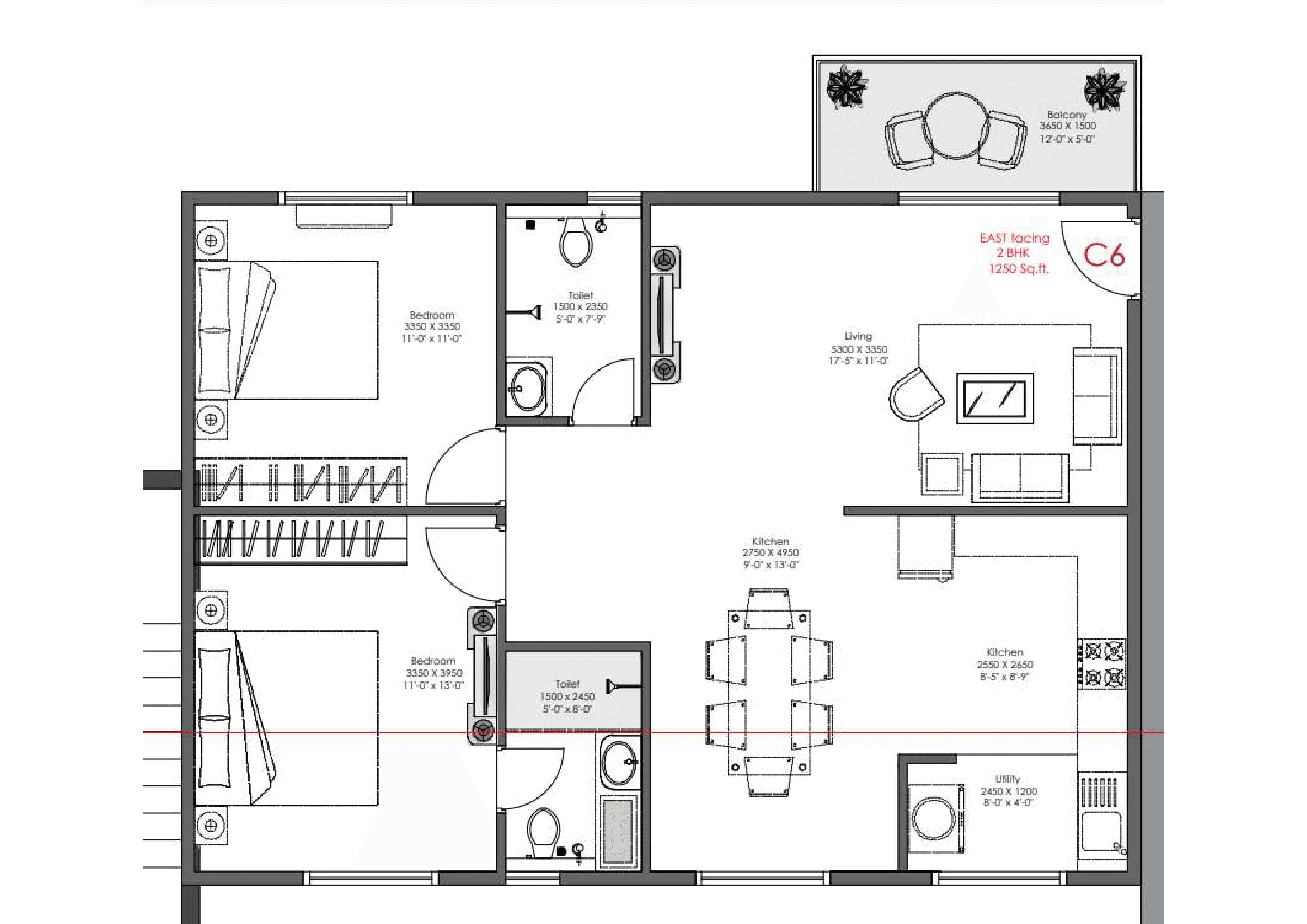
Built-up Area & Floor Plan
Meridian project has 2BHK, 2.5BHK, 3BHK premium residences with -
2BHK - (1250 to 1280) sqft
2.5BHK - (1390 to 1535) sqft
3BHK - (1645 to 1765) sqft
Ankuraa Meridian floor plan
Tower floor plans will have 6 flats & 3 lifts, 2 staircases on each floor
Maintenance -
Ankuraa Meridian Bangalore Project maintenance varies with the configuration and the carpet area which are as follows-
2BHK - Rs (5000 - 5100) per month
2.5BHK - Rs (5600 - 6100) per month
3BHK - Rs (6600 - 7100) per month
Ankuraa Meridian Prices & it's details can be found in the price section & Ankuraa Meridian brochure can be downloaded from the link mentioned below. Project has been praised by the home buyers & Ankuraa Group Kadugodi review is 4 out of 5 from over all the clients who have visited the site.
Off Whitefield - Hoskote Rd, Belathur, Kadugodi, Bangalore

Pros
Cons
Vitrified Tiles
Granite Kitchen Platform
Stainless Steel Sink
Branded Fittings
CCTV Camera
Swimming Pool
Kids Play Area
Senior Citizen Area
Outdoor Gym
Steam Room
Cricket Pitch
Library
Basketball Court
Banquet Hall
Business Center
Pet Park
Indoor games
Badminton Court
Skating Ring
Community Hall
+2 More



| Build-up Area | Carpet Area | All Inc. Price (Inc. of Taxes & Charges) | Min Downpayment (Inc. Taxes) | Parking | Unit Plan |
|---|---|---|---|---|---|
1250 sqft | 938 sqft | 1.23 Cr All In | 12.00 Lacs | 1 | ![]() |
1270 sqft Limited | 953 sqftLimited | 1.25 Cr All In | 13.00 Lacs | 1 | ![]() |
1280 sqft Limited | 960 sqftLimited | 1.26 Cr All In | 13.00 Lacs | 1 | ![]() |

Is there any litigation against this proposed project:
NoAnkuraa Meridian Commencement Certificate
Ankuraa Meridian Legal Title Report
Ankuraa Meridian Layout Plan
Note: You can download more detailed documents by following this link
Ankuraa Group

2 CitiesLocations
Bangalore Rural, Bangalore Urban



Housiey Legal: Free Real Estate Legal Consultation
Get Expert Advice on RERA, Builder Refunds, Area Mismatch, Stuck Projects & More - at No Cost!