Last updated: Mar 24, 2026
















Land Parcel
Towers
Floors
Config
Carpet Area
RERA NO.
Possession Status
Target Possession
RERA Possession
Litigation
Agarwal Vasai East Project Overview
Agarwal Sky Heights Project will be constructed on 2.50 acres of land parcel, 6 towers with G+3P+29 floors having 1BHK, 2BHK, 3BHK premium residences .
Agarwal Sky Heights location
Project is located Near I Global School, Vasai East, Mumbai with -
Gokhivare Naka - 1.6km
Ambadi Road - 1.8km
Vasai Station - 3.8km
Agarwal Sky Heights Vasai Project Amenities
First is Internal amenities -
Vitrified Tiles, Granite Kitchen, SS sink, Anti skid tile, Modular Kitchen & many more
Agarwal Group Vasai East External Amenities
Project has 15+ amenities with likes of -
Kid's play area
Senior citizen zone & Many More
Agarwal Group Sky Heights Vasai East Parking -
Project has one type of car parking facility -
1) Podium
Agarwal Sky Heights Possession -
Rera Possession - December 2029
Target Possession - December 2027
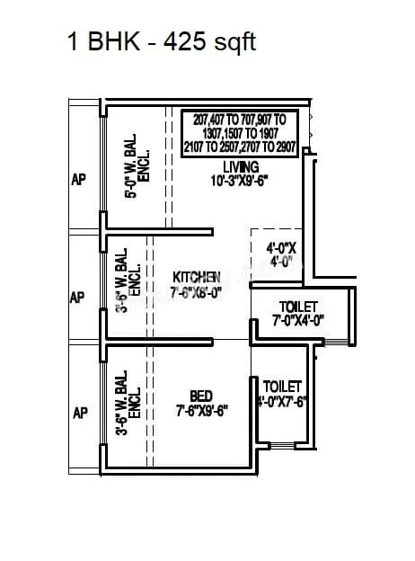
Carpet Area & Floor Plan
Marvel Heights project has 1BHK, 2BHK premium residences with -
1BHK - (425 to 451) sqft
2BHK - (561 to 648) sqft
3BHK - 714 sqft
Agarwal Sky Heights floor plan
Tower floor plan will have 8 flats 4 lifts & 2 staircases on each floor
Maintenance -
Agarwal Sky Heights Mumbai Project maintenance varies with the configuration and the carpet area which are as follows-
1BHK - Rs 3500 per month
2BHK - Rs 4500 per month
3BHK - Rs 5500 per month
Agarwal Sky Heights Vasai East project sample flat is ready to view at the site.
Agarwal Sky Heights Prices & its details can be found in the price section & Agarwal Sky Heights Vasai East brochure can be downloaded from the link mentioned below. Project has been praised by the home buyers & Agarwal Group Vasai East review is 4 out of 5 from over all the clients who have visited the site.
Near I Global School, Vasai East, Mumbai

Pros
Cons
Vitrified Tiles
Granite Kitchen Platform
Stainless Steel Sink
Modular Kitchen
Kids Play Area
Garden
Senior Citizen Area
Seating Area
Walking Track







| Carpet Area | All Inc. Price (Inc. of Taxes & Charges) | Min Downpayment (Inc. Taxes) | Parking | Unit Plan |
|---|---|---|---|---|
425 sqft | 46.00 Lacs All In | 6.00 Lacs | 5 Lacs | ![]() |
451 sqft | 48.00 Lacs All In | 7.00 Lacs | 5 Lacs | ![]() |

Is there any litigation against this proposed project:
NoAgarwal Group

2 CitiesLocations
Mumbai City, Mumbai suburban



375 - 520 sqft
Suraksha Smart City
Developer
455 - 892 sqft
Imperial Lifestyle
Developer



475 - 484 sqft
Shree Krishna Construction
Developer







460 - 655 sqft
Skyland Structures
Developer
260 - 585 sqft
Shantee Group
Developer

Housiey Legal: Free Real Estate Legal Consultation
Get Expert Advice on RERA, Builder Refunds, Area Mismatch, Stuck Projects & More - at No Cost!