
















Land Parcel
Towers
Floors
Config
Carpet Area
RERA NO.
Possession Status
Target Possession
RERA Possession
Litigation
AG Gota Project Overview
AG Highline Project will be constructed on 3.83 acres of land parcel, 3 tower with 3B+G+35 floors having 3 BHK, 4 BHK, 5 BHK premium residences .
AG Highline location
Project is located Near S.G.Highway, Gota, Ahmedabad with -
Ognaj Circle - 4.3km
D-Mart - 4.4km
Chandlodiya Station - 4.9km
AG Highline Gota Project Amenities
First is Internal amenities -
Vitrified Tiles, Anti-Skid Tiles, Ceramic Tiles, Glazed Tiles, SS Sink, Aluminum Sliding Windows, Video Door Phone, CCTV & many more
AG Group Gota External Amenities
Project has 55+ luxurious amenities with likes of -
Multipurpose court
Swimming Pool
Kids Play Area
Indoor Games
Banquet Hall
Mini Theatre & Many More
AG Group Highline Gota Parking -
Project has Two types of car parking facilities -
1) Basement
2) Ground
AG Highline Possession -
Rera Possession - March 2028
Target Possession - October 2026
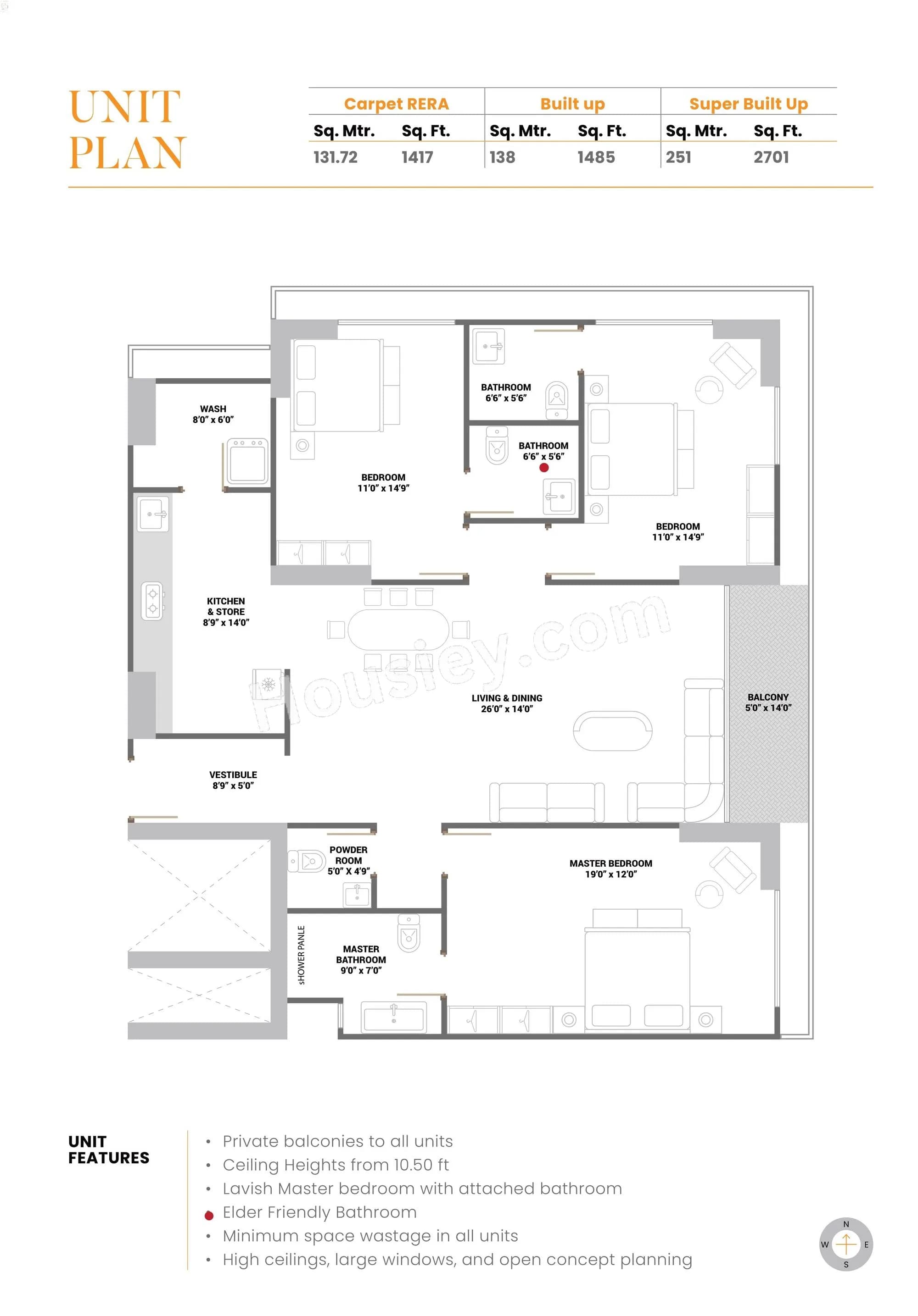
Carpet Area & Floor Plan
AG Highline project has 3BHK, 4BHK, 5BHK premium residences with -
3BHK - 2701 sqft
4BHK - 9978 sqft
5BHK - 10920 sqft
AG Highline floor plan
Tower floor plan will have 4 flats 6 lifts & 2 staircases on each floor
Maintenance -
AG Highline Ahmedabad Project maintenance varies with the configuration and the carpet area which are as follows-
3BHK - Rs 5700 per month
4BHK - Rs 21400 per month
5BHK - Rs 23500 per month
Highline Gota project sample flat is ready to view at the site.
Highline Gota Prices & its details can be found in the price section & AG Highline Gota brochure can be downloaded from the link mentioned below. Project has been praised by the home buyers & AG Group Gota review is 4 out of 5 from over all the clients who have visited the site.
Near S.G.Highway, Gota, Ahmedabad

Pros
Cons
Video Door Phone
Vitrified Tiles
Granite Kitchen Platform
Stainless Steel Sink
CCTV Camera
Swimming Pool
Kids Play Area
Jogging Track
Garden
Multi Purpose Court
Senior Citizen Area
Box Cricket
Library
Basketball Court
Yoga Zone
Banquet Hall
Seating Area
Gazebo
Indoor games
Badminton Court
+3 More






| Build-up Area | Carpet Area | All Inc. Price (Inc. of Taxes & Charges) | Min Downpayment (Inc. Taxes) | Parking | Unit Plan |
|---|---|---|---|---|---|
2701 sqft | 1417 sqft | 2.17 Cr All In | 33.00 Lacs | 2 | ![]() |

Is there any litigation against this proposed project:
NoAG Group

1 CityLocations
Ahmedabad



3861 - 3861 sqft
Ascent Sky Infracon
Developer

1299 - 1299 sqft
Aaryan Procon
Developer



1890 - 1890 sqft
Mount Group
Developer
3550 - 3550 sqft
Festival Group
Developer
2012 - 2012 sqft
Status Infra
Developer


1755 - 1755 sqft
Satyamev Developers
Developer
2268 - 2286 sqft
Dobariya and CO
Developer

Housiey Legal: Free Real Estate Legal Consultation
Get Expert Advice on RERA, Builder Refunds, Area Mismatch, Stuck Projects & More - at No Cost!