Last updated: Mar 22, 2026










Land Parcel
Towers
Floors
Config
Carpet Area
RERA NO.
Possession Status
Target Possession
RERA Possession
Litigation
Adani Shantigram Project Overview
Adani Ikaria Project will be constructed on 1.03 acres of land parcel, 1 tower with G+13 floors having 1BHK & 2BHK premium residences .
Adani Ikaria location
Project is located On Shantigram Road, Aangan Road, Shantigram, Ahmedabad, Gujarat with -
Khodiyar - Jaspur Road - 2.3km
Khodiyar Railway Station - 2.4km
Vaishnodevi Circle - 4.0km
Adani Ikaria Shantigram Project Amenities
First is Internal amenities -
Vitrified tiles, Granite Kitchen, MS Railing, SS sink, Anti-skid floors, Panic Alarm, Heat, Smoke & Gas Sensors, & many more
Adani Realty Shantigram External Amenities
Project has 30+ luxurious amenities with likes of -
Club house
Gymnasium
Multipurpose court
Multipurpose hall
Swimming pool & Many More
Adani Realty Ikaria Shantigram Parking -
Project has Two types of car parking facilities -
1)Ground
2)Basement
Adani Ikaria Possession -
Rera Possession - RTMI
Target Possession - RTMI
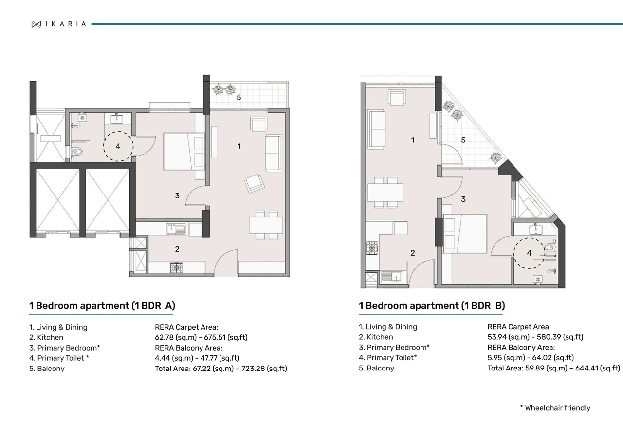
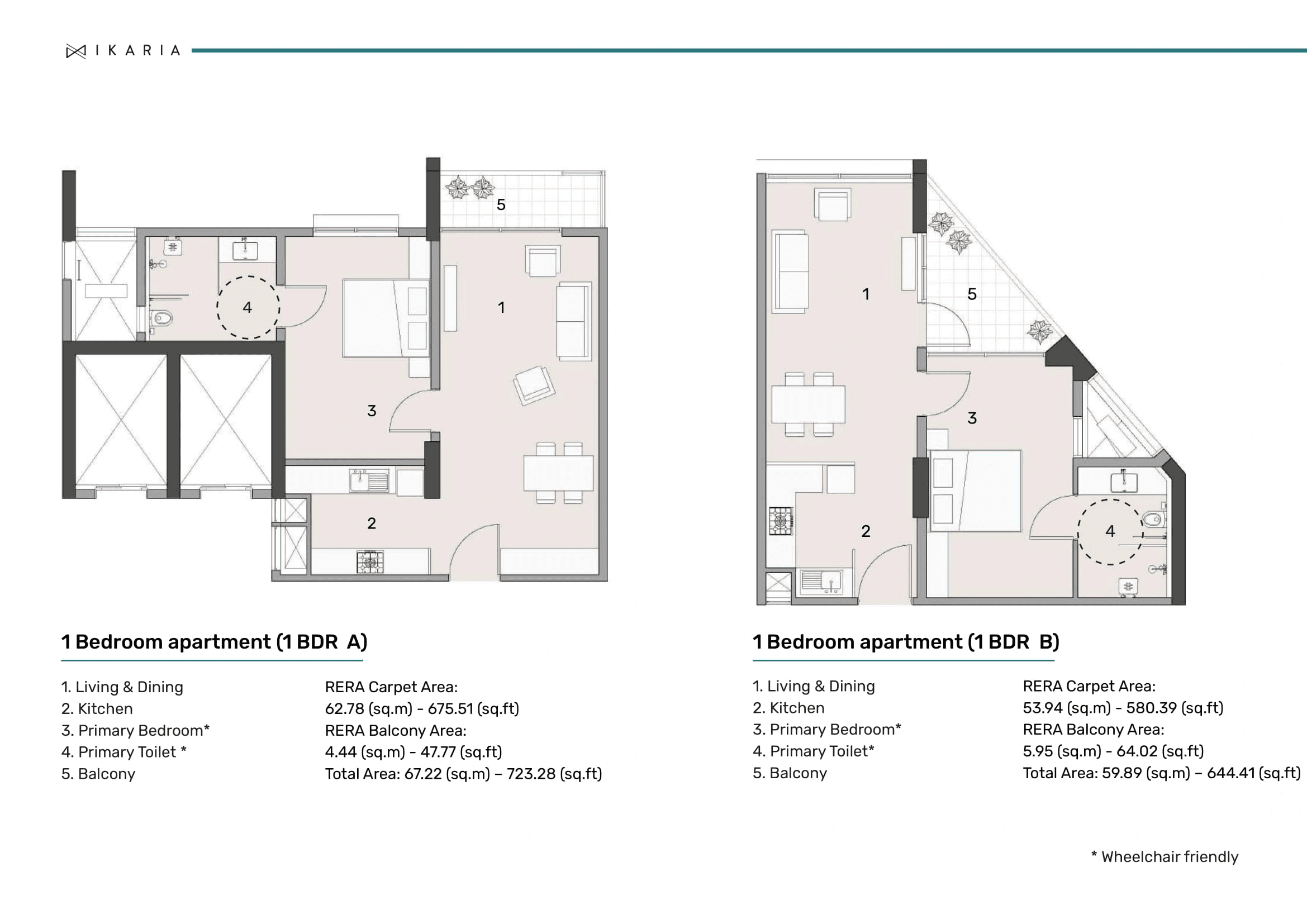
Carpet Area & Floor Plan 1BHK & 2BHK premium residences with -
1BHK - (1098 to 1332) sqft
2BHK - 1638 sqft
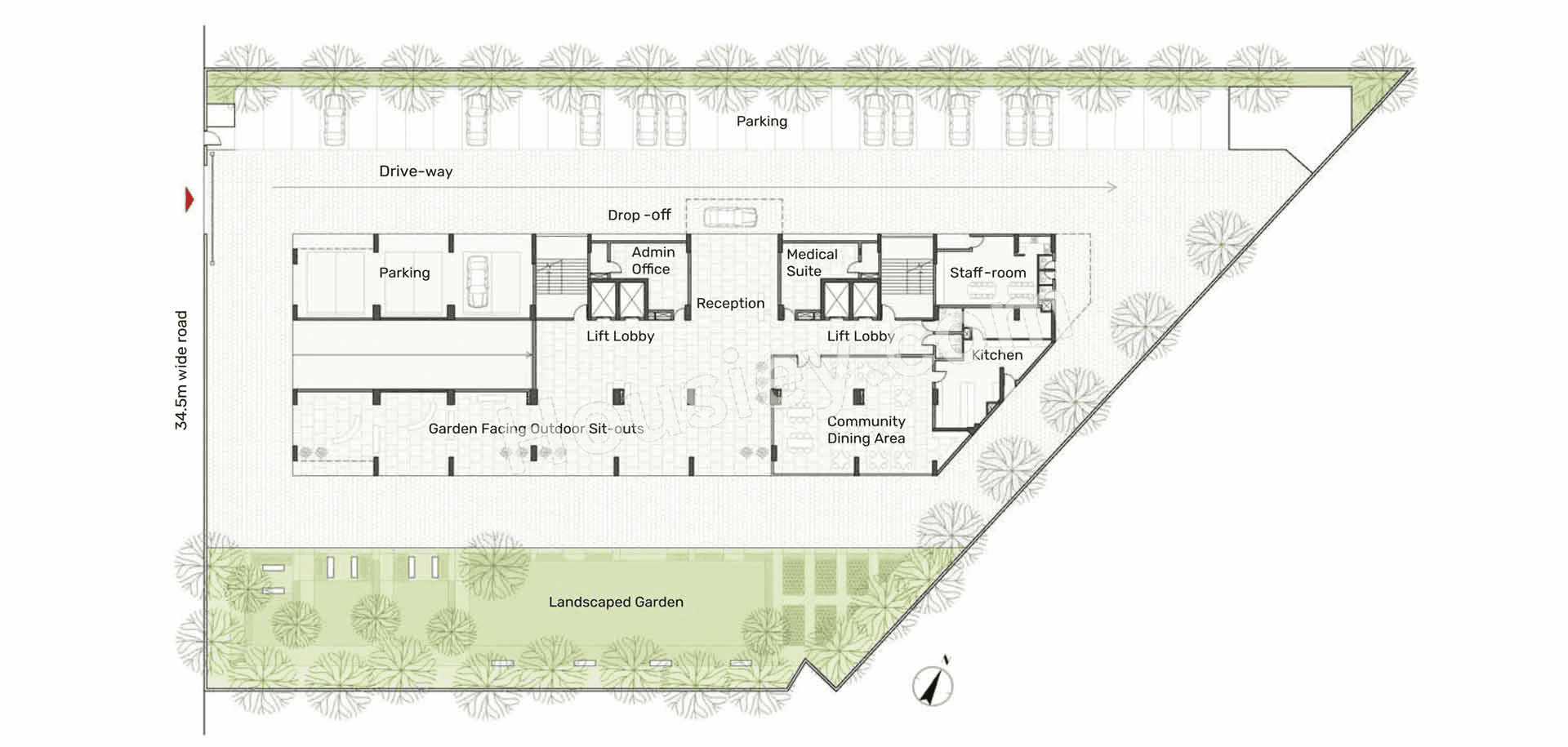
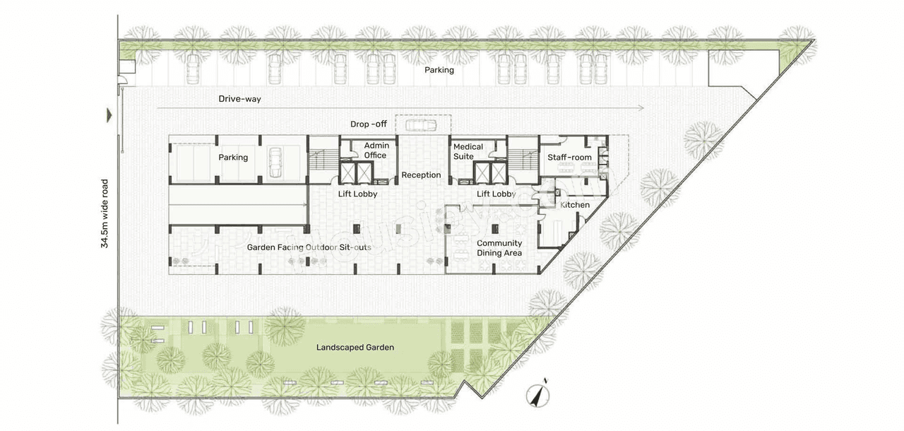
Adani Ikaria floor plan
Tower floor plan will have 4 flats 2 lifts & 1 staircases on each floor
Maintenance -
Adani Ikaria Ahmedabad Project maintenance varies with the configuration and the carpet area which are as follows-
1BHK - Rs (3000- 4000) per month
2BHK - Rs 4500 per month
Adani Ikaria Shantigram project sample flat is ready to view at the site.
Adani Ikaria Prices & its details can be found in the price section & Adani Ikaria Shantigram brochure can be downloaded from the link mentioned below. Project has been praised by the home buyers & Adani Realty Shantigram review is 4 out of 5 from over all the clients who have visited the site
On Shantigram Road, Aangan Rd, Shantigram, Ahmedabad

Pros
Cons
Vitrified Tiles
Granite Kitchen Platform
Stainless Steel Sink
Branded Fittings
CCTV Camera
Swimming Pool
Club House
Kids Play Area
Jogging Track
Kids Pool
Seating Area
Barbeque Deck
Indoor games
party lawn
Yoga Deck
Gymnasium



| Build-up Area | Carpet Area | All Inc. Price (Inc. of Taxes & Charges) | Min Downpayment (Inc. Taxes) | Parking | Unit Plan |
|---|---|---|---|---|---|
1098 sqft | 604 sqft | 1.00 Cr All In | 12.00 Lacs | 1 | ![]() |
1332 sqft | 733 sqft | 1.10 Cr All In | 14.00 Lacs | 1 | ![]() |

Is there any litigation against this proposed project:
NoAdani Ikaria Commencement Certificate
Adani Ikaria Legal Title Report
Adani Ikaria Layout Plan
Note: You can download more detailed documents by following this link
Adani Realty

7 CitiesLocations
Hyderabad, Ahmedabad, Bangalore Rural, Bangalore Urban, Mumbai City, Mumbai suburban, Pune

1205 - 1205 sqft
Adani Realty
Developer


2234 - 2234 sqft
Shilp Group
Developer
6440 - 7407 sqft
Adani Realty
Developer
3230 - 3230 sqft
Adani Realty
Developer
2652 - 2652 sqft
Shivalik Group
Developer

Housiey Legal: Free Real Estate Legal Consultation
Get Expert Advice on RERA, Builder Refunds, Area Mismatch, Stuck Projects & More - at No Cost!