






Land Parcel
Towers
Floors
Config
Carpet Area
RERA NO.
Possession Status
Target Possession
RERA Possession
Litigation
Shewani Baner Project Overview
33 West Avenue will be constructed on 1.10 Acres of land parcel, 2 towers with G+2P+14 floors having 3BHK premium residences.
Shewani 33 West Avenue location
Project is located Near Pan Card Club Road, Baner Gaon, Baner, Pune with -
Mumbai-Bangalore Highway - 750m
D-Mart Baner - 1.6km
Baner Road - 2.1km
Shewani 33 West Avenue Baner Project Amenities
First is Internal amenities -
Vitrified Tiles, Granite Kitchen, SS sink, powder coated aluminum slidin windows, MS Safety grills, Fire fighting system, Video door phone, CCTV, Earthquake Resistant structure, Multi detectors, smoke detectors, Video Door Phone, Digital Lock & many more
Shewani Properties Baner External Amenities
Project has luxurious amenities with likes of -
Club House
Multipurpose hall
Swimming Pool
Children's Play Area
Gymnasium & Many More
Shewani Properties 33 West Avenue Baner Parking -
Project has one type of car parking facility
1) Podium
Shewani 33 West Avenue Possession -
Rera Possession - April 2024
Target Possession - April 2023
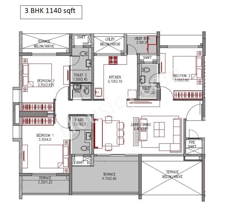
Carpet Area & Floor Plan
Shewani 33 West Avenue Baner project has 3BHK premium residences with -
3BHK - (1140 to 1737)sqft
Shewani 33 West Avenue floor plan
Tower floor plans will have 2 flats & 2 lift 2 staircases on each floor
Maintenance -
Shewani 33 West Avenue Pune Project maintenance varies with the configuration and the carpet area which are as follows-
3BHK - (4500 - 5700) per month
33 West Avenue Baner sample flat is ready to view at the site.
33 West Avenue Prices & its details can be found in the price section & Shewani 33 West Avenue Baner brochure can be downloaded from the link mentioned below. Project has been praised by the home buyers & Shewani Properties Baner review is 4 out of 5 from over all the clients who have visited the site.
Near Pan Card Club Road, Baner Gaon, Baner, Pune

Pros
Cons
Digital Lock
Video Door Phone
Vitrified Tiles
Granite Kitchen Platform
Stainless Steel Sink
Safety Doors
CCTV Camera
+2 More
Swimming Pool
Club House
Kids Play Area
Senior Citizen Area
Kids Pool
Toddlers Play Area
Seating Area
party lawn
Yoga Deck
Landscaped Garden
Gymnasium
Walking Track
Multi purpose hall




| Carpet Area | All Inc. Price (Inc. of Taxes & Charges) | Min Downpayment (Inc. Taxes) | Parking | Unit Plan |
|---|---|---|---|---|
1140 sqft | 2.61 Cr All In | 39.00 Lacs | 1 | ![]() |
1182 sqft | 2.32 Cr All In | 35.00 Lacs | 1 | ![]() |
1438 sqftLimited | 2.49 Cr All In | 37.00 Lacs | 1 | ![]() |
1737 sqftLimited | 3.00 Cr All In | 45.00 Lacs | 1 | ![]() |

Is there any litigation against this proposed project:
NoCommencement Certificate 33 west avenue
Legal Title Report 33 west avenue
Layout Plan 33 west avenue
Note: You can download more detailed documents by following this link
Shewani Properties
1 CityLocations
Pune


1140 - 1841 sqft
Majestique Landmarks
Developer





1434 - 1434 sqft
Sukhwani Associates
Developer
350 - 1189 sqft
Kalpataru Group
Developer

1136 - 1733 sqft
Kolte Patil Developers
Developer
934 - 1460 sqft
Bluepearl Group
Developer


1343 - 1949 sqft
Space Builders Group
Developer




Housiey Legal: Free Real Estate Legal Consultation
Get Expert Advice on RERA, Builder Refunds, Area Mismatch, Stuck Projects & More - at No Cost!